EasyManua.ls Logo

Notifier AUTOPULSE IQ-318 - Page 13

Notifier AUTOPULSE IQ-318
62 pages
Print Icon
To Next Page IconTo Next Page
To Next Page IconTo Next Page
To Previous Page IconTo Previous Page
To Previous Page IconTo Previous Page
Loading...
IQ-318/E/C Installation Manual P/N 52864:J3 9/29/15 13
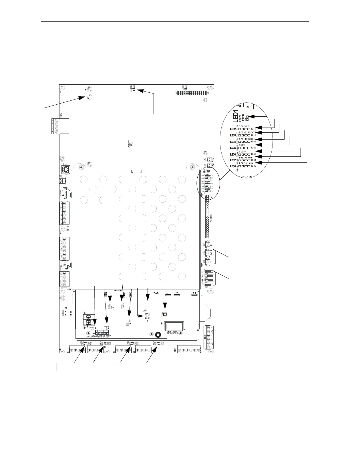
System Components System Overview
NAC
LEDs
Disable - Enable Switches
for Backup Alarm
(Figure 3.12 on page 26)
LED10 – SLC Loop
Ground Fault LED
LED5 - Supervisory LED
LED7 - Pre-Alarm LED
LED6 - Security LED
LED3 - Point Disabled LED
LED2 - Signals Silenced LED
LED4 - System Trouble LED
LED8 - Fire Alarm LED
LED1 - Power-on LED (AC or battery)
System Switches - ‘No
Keyboard Operation’
SW5 - Acknowledge
SW6 - Silence
SW7 - Reset
CPU320-KAPS-291809.wmf, CPU2-640-
JP1 - SLC Ground
Fault Jumper
SW1 - Ground Fault Detection Enable/Disable
LED3 - Earth Fault LED (general board ground fault)
Figure 2.3 IQ318 and Power-Supply: Jumpers, LEDs and Switches
LED5 - +24V Aux LED
LED6 - +5V Aux LED
LED6 - +5V Aux LEDLED1 - Logic Power LED
LED2 - Trouble LED
LED4 - AC Power LED
F4- AC Fuse

Related product manuals