EasyManua.ls Logo

NTI Matrix - Page 32

Default Icon
72 pages
Print Icon
To Next Page IconTo Next Page
To Next Page IconTo Next Page
To Previous Page IconTo Previous Page
To Previous Page IconTo Previous Page
Loading...
Installation and Operation Instructions Matrix
32
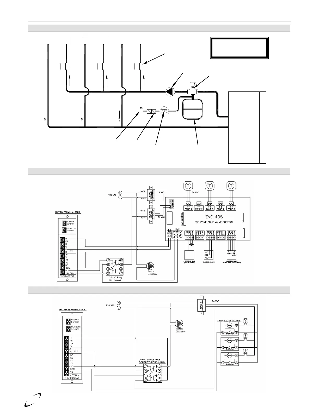
Zone #3
Zone #2
Zone #1
Zone
Valve
System
Circulator
Air
Separator
NTI
Make Up
Water
Backflow
Preventer
Pressure
Reducing
Valve
Expansion
Tank
High Temperature
Zones Only
Figure 10-3(a) Plumbing High Temperature Zones (w/ Zone Valves)
Figure 10-3(b) Wiring Zones (w/ Zone Valve Controller)
Figure 10-3(c) Wiring Zones (w/o Zone Valve Controller)

Related product manuals