EasyManua.ls Logo

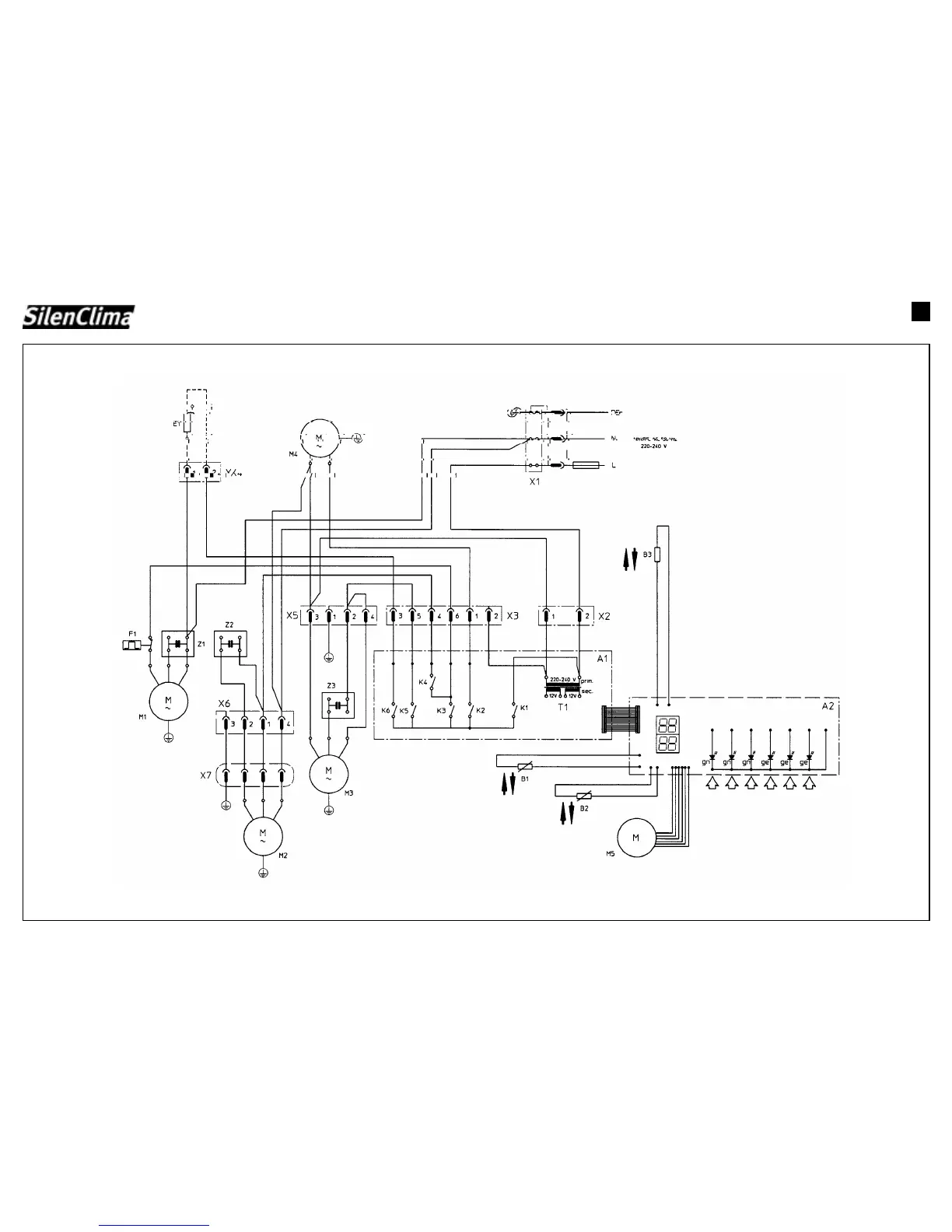
Olimpia splendid SILENCLIMA - Electrical Wiring Diagram; Diagram of Electrical Connections

Olimpia splendid SILENCLIMA
28 pages
Print Icon
To Next Page IconTo Next Page
To Next Page IconTo Next Page
To Previous Page IconTo Previous Page
To Previous Page IconTo Previous Page
Loading...
27