EasyManua.ls Logo

Omron C200HX Series - Page 179

Omron C200HX Series
241 pages
To Next Page IconTo Next Page
To Next Page IconTo Next Page
To Previous Page IconTo Previous Page
To Previous Page IconTo Previous Page
Loading...
Appendix BSpecifications
167
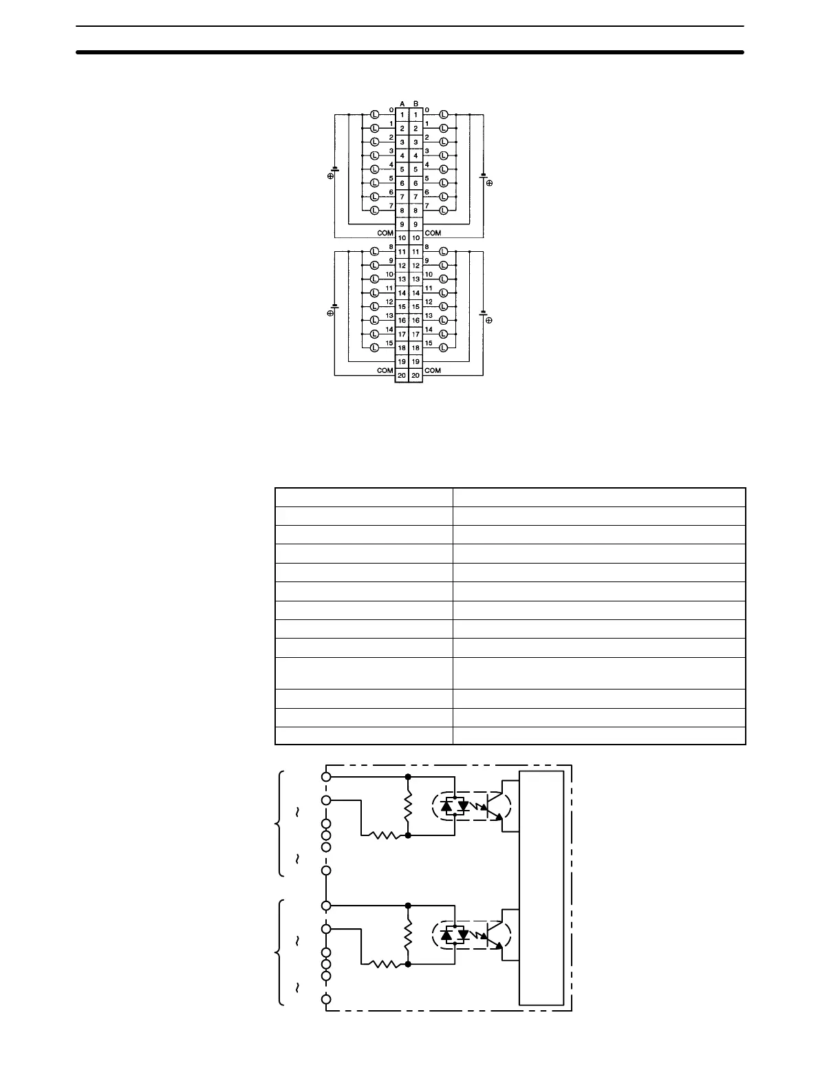
Terminal Connections
I/O word “m” I/O word “m+1”
24 VDC
24 VDC
24 VDC
24 VDC
High-density I/O Units (Special I/O Units)
TTL Input Unit C200H-ID501 (32 Points)
Rated Input Voltage 5 VDC
Operating Input Voltage 4.5 to 5.5 VDC
Input Impedance
1.1 kW
Input Current 3.5 mA (at 5 VDC)
ON Voltage 3.0 VDC min.
OFF Voltage 1.0 VDC max.
ON Response Time 2.5 ms/15 ms max. (switchable; at 24 VDC, 25°C)
OFF Response Time 2.5 ms/15 ms max. (switchable; at 24 VDC, 25°C)
No. of Circuits 4 (8 points/common)
High-speed Inputs 8 points (connector 2 terminals 8 to 15, when set)
Pulse width: 1 ms/4 ms min. (switchable)
Internal Current Consumption 130 mA 5 VDC max.
Weight 300 g max.
Dimensions 130×34.5×100.5 (H×W×D, in millimeters)
Circuit Configuration
2.4 kW
1.1 kW
COM0
IN00
IN07
COM1
IN08
IN15
CN1
Internal
Circuit
COM2
IN00
IN07
COM3
IN08
IN15
CN2
2.4 kW
1.1 kW

Table of Contents

Other manuals for Omron C200HX Series

Related product manuals