EasyManua.ls Logo

Omron CS CJ1W-ETN21 - Page 156

Omron CS CJ1W-ETN21
242 pages
Print Icon
To Next Page IconTo Next Page
To Next Page IconTo Next Page
To Previous Page IconTo Previous Page
To Previous Page IconTo Previous Page
Loading...
132
Using Socket Services by Manipulating Dedicated Control Bits Section 6-7
Basic Operations
CIO 000000 is turned ON to request opening a UDP socket from the
Ethernet Unit.
CIO 000001 is turned ON to request closing the UDP socket from the
Ethernet Unit.
CIO 000002 is turned ON to request sending data from the Ethernet Unit.
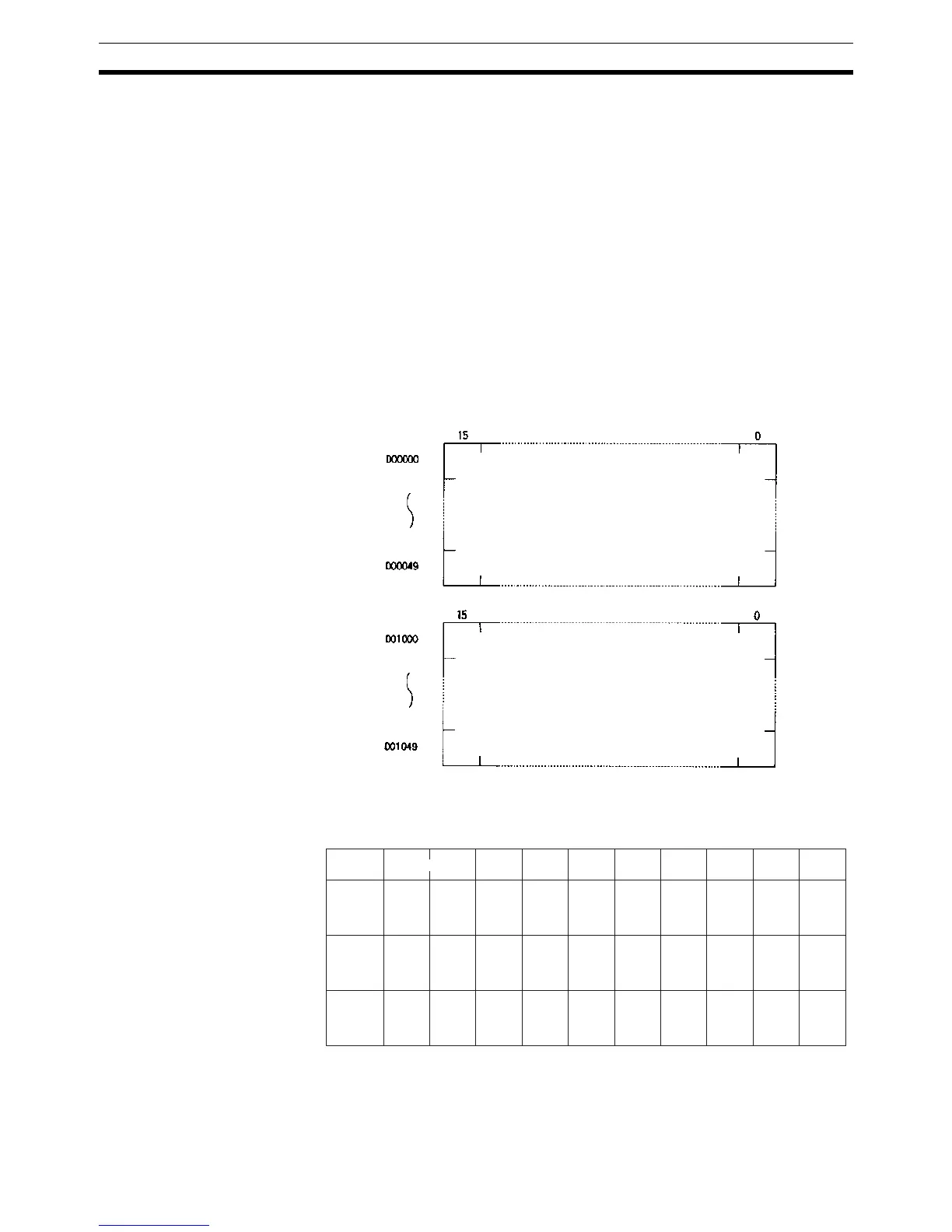
The data is sent (100 bytes) beginning from word D00000.
CIO 000003 is turned ON to request receiving data from the Ethernet
Unit. The data that is received (100 bytes) is stored beginning at D01000.
One of the bits between CIO 000100 and CIO 000103 will turn ON if an
error occurs. Refer to 6-7-5 Socket Service Request Switches for informa-
tion on errors.
Program Memory Map The send and receive data and bits (flags) used by the program are shown in
the following diagram.
DM Area
CIO Area
Send data, 100 bytes (100 = 0064 Hex)
Receive data, 100 bytes (100 = 0064 Hex)
76543210
CIO 0000
CIO 0001
15 to 8
CIO 0002
UDP
Send
Bit
UDP
Close
Bit
UDP
Open
Bit
UDP
Receive
Error
Flag
UDP
Send
Error
Flag
UDP
Close
Error
Flag
UDP
Open
Error
Flag
UDP
Receiving
Flag
UDP
Sending
Flag
UDP
Closing
Flag
UDP
Opening
Flag
UDP
Receive
Bit

Table of Contents

Related product manuals