EasyManua.ls Logo

Omron E5GC - Page 73

Omron E5GC
440 pages
Print Icon
To Next Page IconTo Next Page
To Next Page IconTo Next Page
To Previous Page IconTo Previous Page
To Previous Page IconTo Previous Page
Loading...
2 - 35
2 Preparations
E5@C Digital Temperature Controllers User’s Manual (H174)
2-2 Using the Terminals
2
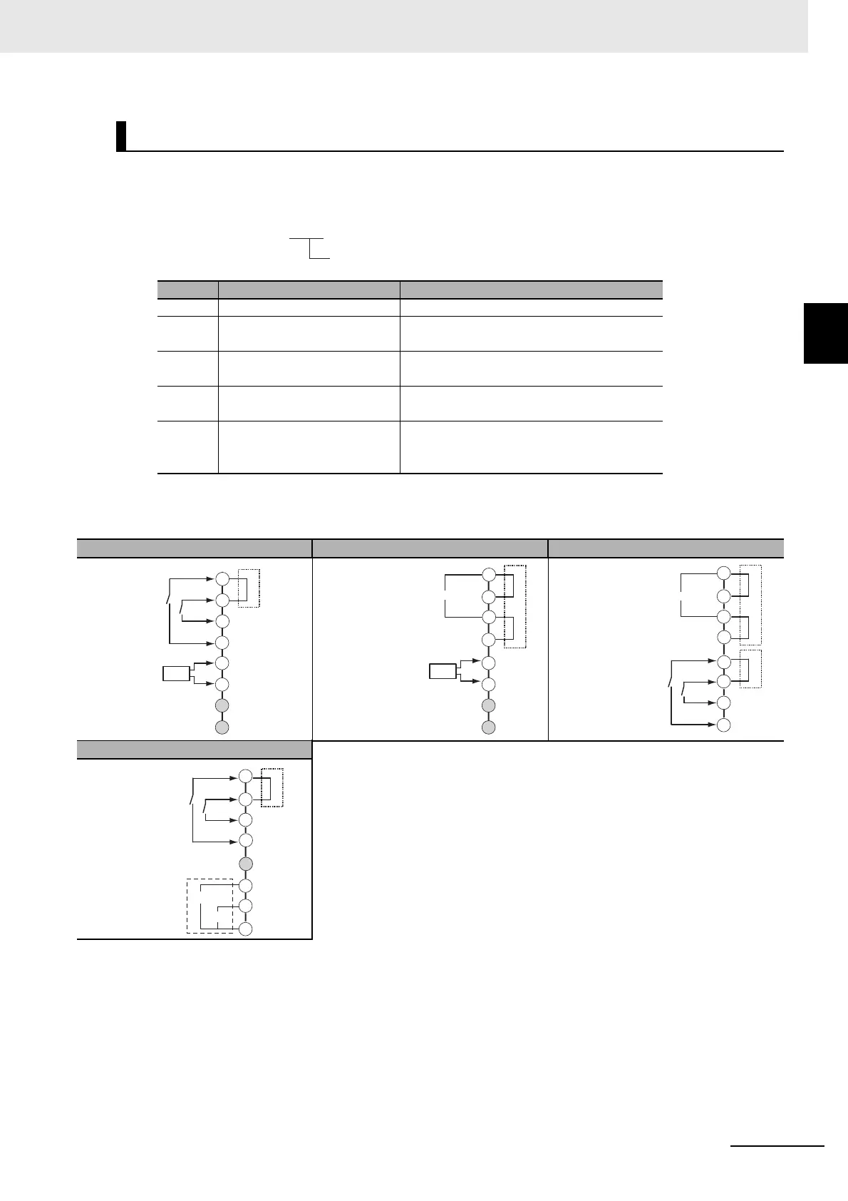
2-2-3 E5CC-B Terminal Block Wiring Example
Model Numbers
The options specification of the E5CC-B is given in the following location in the model number.
Terminal Details
Do not connect anything to the terminals that are shaded gray.
* Common terminals are indicated with asterisks (*).
You can use communications common terminals for crossover wiring.
Note: Use non-voltage inputs for the event inputs.
The polarity for a non-contact input is indicated by “(-).”
Options
Code Specification Remarks
000 None
001 Event inputs 1 and 2, and
CT1
002 Communications (RS-485)
and CT1
004 Communications (RS-485),
and event inputs 3 and 4
006 Event inputs 1 and 2, and
transfer output
Transfer output:
Current: 4 to 20 mA DC
Voltage: 1 to 5 VDC
001 002 004
006
E5CC-@@ @ @ B M-@@@
Options
17
EV1
EV2
CT1
Event
inputs
CT
(−)
(−)
*
18
19
21
22
23
24
20
CT1
CT
*
*
B(+)
A()
RS-485
Communications
17
18
19
21
22
23
24
20
*
*
*
B(+)
A()
RS-485
Communications
EV3
EV4
Event inputs
(−)
(−)
17
18
19
20
21
22
23
24
*
+
+
I
V
EV1
EV2
(−)
(−)
Transfer output
Event inputs
17
18
19
20
21
22
23
24

Table of Contents

Other manuals for Omron E5GC

Related product manuals