EasyManua.ls Logo

Omron F3SG-SR/PG - Page 48

Omron F3SG-SR/PG
75 pages
Print Icon
To Next Page IconTo Next Page
To Next Page IconTo Next Page
To Previous Page IconTo Previous Page
To Previous Page IconTo Previous Page
Loading...
F3SG-SR/PG
48
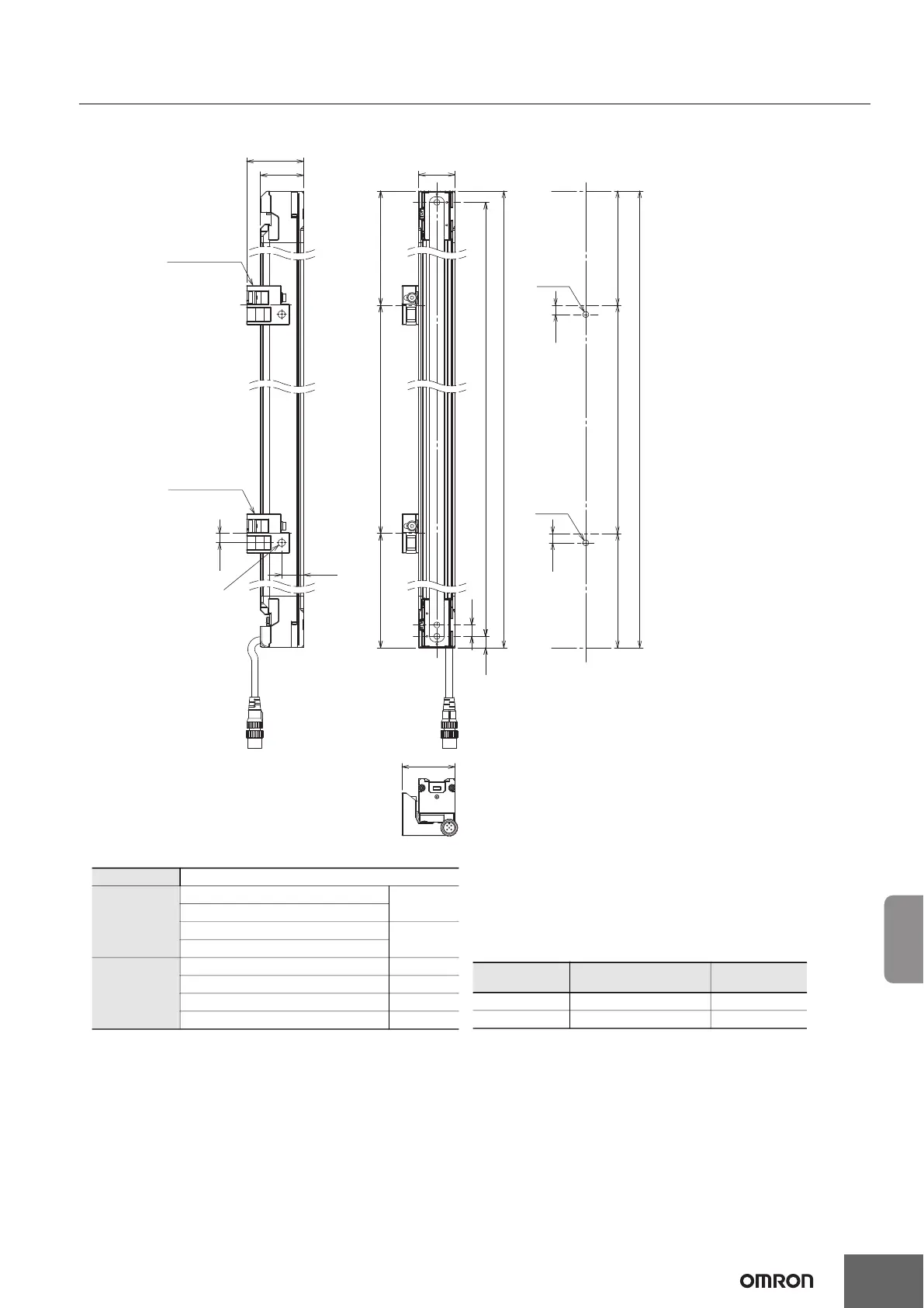
Dimensions
Side Mounting
Protective height
(Dimension C)
Number of Side-Mount
Bracket *
Dimension F
0160 to 1440 2 1000 mm max.
1520 to 2480 3 1000 mm max.
6.3 dia.
Side-Mont
Bracket
(F39-LSGF)
Side-Mont
Bracket
(F39-LSGF)
250 max. 250 max. F
10
P
D
250 max. F 250 max.
C
8.2
8.2
<Screw: M5 or M6>
38
50
8.2
19.4
46.7
C(Protective height)
32
2-M5
or M6
2-M5
or M6
* The number of brackets required to mount either one of emitter and receiver. The side-mount brackets (intermediate brackets)
are included with the light curtain.
Dimension C 4-digit number of the type name (Protective height: )
Dimension D
F3SG-SR-14
C-20
F3SG-SR-25
F3SG-SR-45
C-40
F3SG-SR-85
Dimension P
F3SG-SR-14 10
F3SG-SR-25 20
F3SG-SR-45 40
F3SG-SR-85 80

Related product manuals