EasyManua.ls Logo

Omron F3SJ-E P25 Series - Page 84

Omron F3SJ-E P25 Series
152 pages
Print Icon
To Next Page IconTo Next Page
To Next Page IconTo Next Page
To Previous Page IconTo Previous Page
To Previous Page IconTo Previous Page
Loading...
68
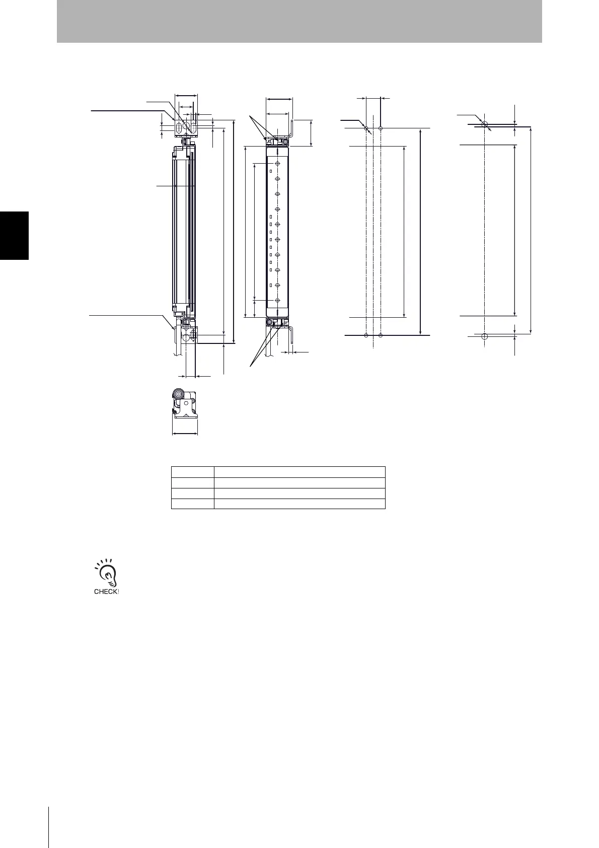
Chapter3 Dimensions
F3SJ-E/B
User’s Manual
Wiring/Installation
Side mounting
- The protective height of the F3SJ-E/B series that supports the contact mount bracket is limited.
Protective height allowed for mounting: 185 mm to 1,105 mm.
- Brackets of other models such as F39-LJB1 cannot be used simultaneously.
33
D
34.5
30
35
5
22.5
12
10.75 B
7
3.25
30
6.5
A
30
Dia. 9
19
C
B
3.25
2-M8
3.25
C
B
19
4-M5
<M5 screw fixed> <M8 screw fixed>
Contact Mount
Bracket
(F39-LJB5)
Contact Mount
Bracket
(F39-LJB5)
M3 x 6
screw
M3 x 6 screw
Dimensions A to D
A C+69
B C+47.5
C 4-digit number in the Model name (protective height)
D C - 45

Table of Contents

Related product manuals