EasyManua.ls Logo

Omron SYSMAC C28K - 2-1 Introduction; 2-2 Indicators; 2-3 PC Configuration

Omron SYSMAC C28K
92 pages
Print Icon
To Next Page IconTo Next Page
To Next Page IconTo Next Page
To Previous Page IconTo Previous Page
To Previous Page IconTo Previous Page
Loading...
13
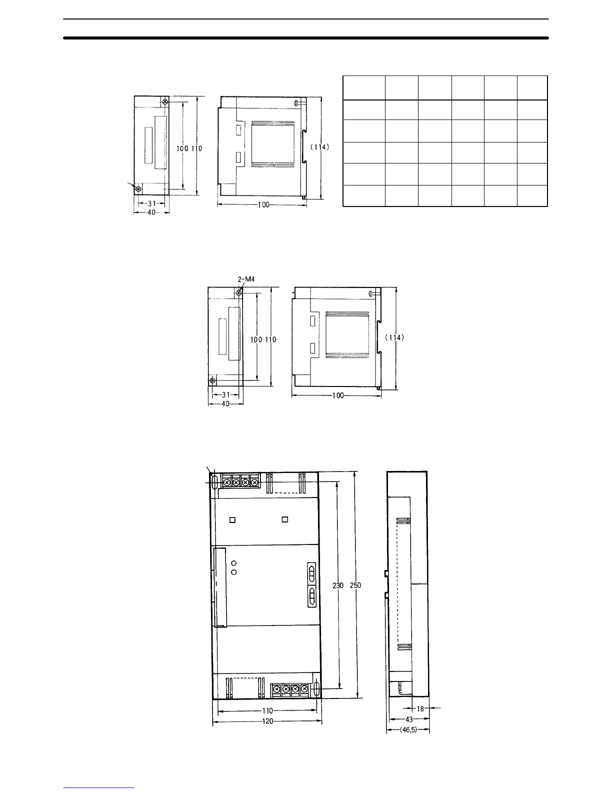
Expansion I/O Units cont.
Model
C16P
C20P
C28P
C40P
C60P
A
145
240
240
290
340
B
155
250
250
300
350
C
100
100
100
100
120
D
110
110
110
110
140
E
5
5
5
5
15
2–M4
C4K
Analog Timer Units C4K–TM
I/O Link Units C20–LK011(–P)
Two M4 holes
Dimensions and Installation Section 2–3

Other manuals for Omron SYSMAC C28K

Related product manuals