EasyManua.ls Logo

Onkyo TX-NR1009

Onkyo TX-NR1009
100 pages
To Next Page IconTo Next Page
To Next Page IconTo Next Page
To Previous Page IconTo Previous Page
To Previous Page IconTo Previous Page
Loading...
69
En
To control the AV receiver with the remote controller
while you’re in Zone, you’ll need a commercially
available multiroom remote control kit for each zone.
Multiroom kits are made by Niles and Xantech.
These kits can also be used when there isn’t a clear line of
sight to the AV receiver’s remote sensor, such as when it’s
installed inside a cabinet.
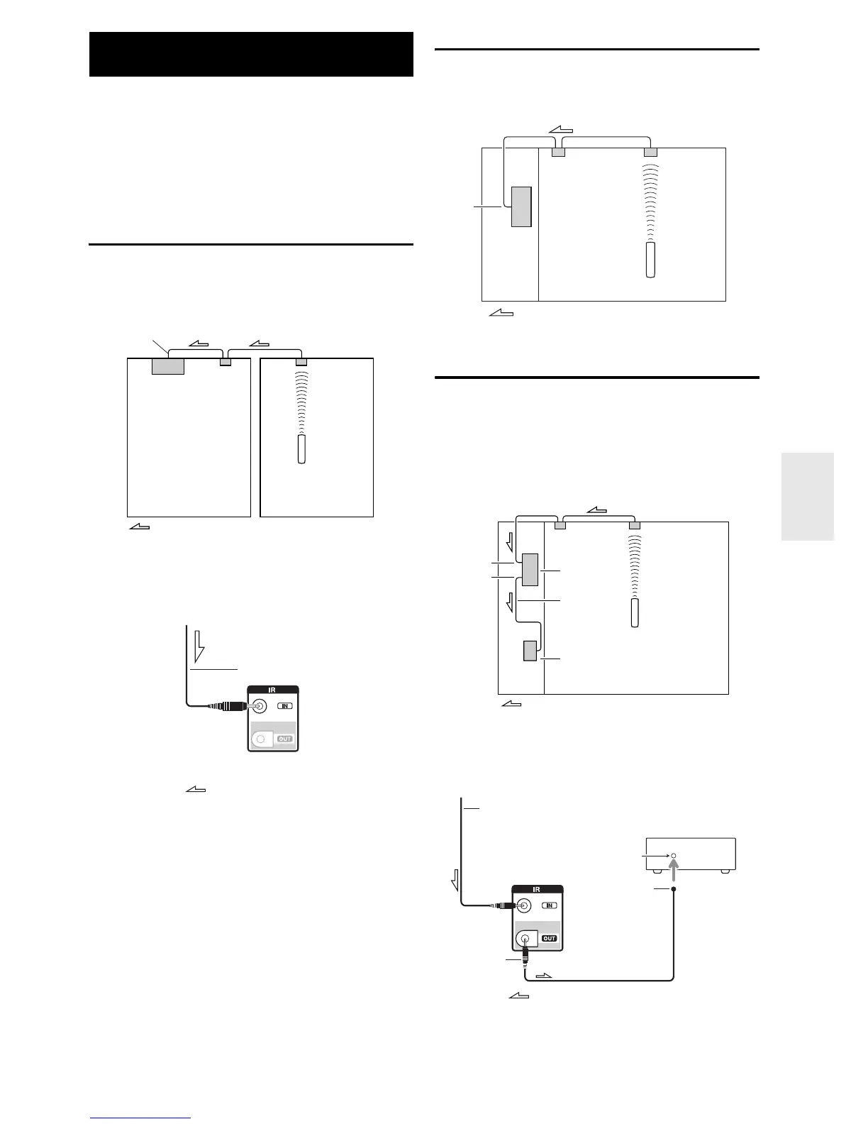
Using a Multiroom Kit with Zone
In this setup, the IR receiver in Zone picks up the infrared
signals from the remote controller and feeds them through
to the AV receiver in the main room via the connecting
block.
The miniplug cable from the connecting block should be
connected to the AV receiver’s IR IN jack, as shown
below.
Using a Multiroom Kit with a Cabinet
In this setup, the IR receiver picks up the infrared signals
from the remote controller and feeds them to the AV
receiver located in the cabinet via the connecting block.
Using a Multiroom Kit with Other
Components
In this setup, an IR emitter is connected to the AV
receiver’s IR OUT jack and placed in front of the other
component’s remote control sensor. Infrared signals
received at the AV receiver’s IR IN jack are fed through to
the other component via the IR emitter. Signals picked up
by the AV receiver’s remote control sensor are not output.
The IR emitter should be connected to the AV receiver’s
IR OUT jack, as shown below.
Using the Remote Controller in
Zone and Multiroom Control Kits
IR IN
Connecting
block
Remote controller
IR
receiver
Main room Zone
Signal flow
From the connecting block
Miniplug cable
AV receiver
Signal flow
IR IN
Connecting
block
Remote controller
IR
receiver
Inside
cabinet
Signal flow
IR IN
IR OUT
Connecting
block
IR receiver
Remote controller
Signal flow
IR Emitter
Other component
AV receiver
Remote control sensor
Other component
Emitter
Signal flow
Miniplug
Miniplug cable
AV receiver
From the connecting block
IR Emitter

Table of Contents

Other manuals for Onkyo TX-NR1009

Related product manuals