EasyManua.ls Logo

Onkyo TX-RZ830

Onkyo TX-RZ830
192 pages
To Next Page IconTo Next Page
To Next Page IconTo Next Page
To Previous Page IconTo Previous Page
To Previous Page IconTo Previous Page
Loading...
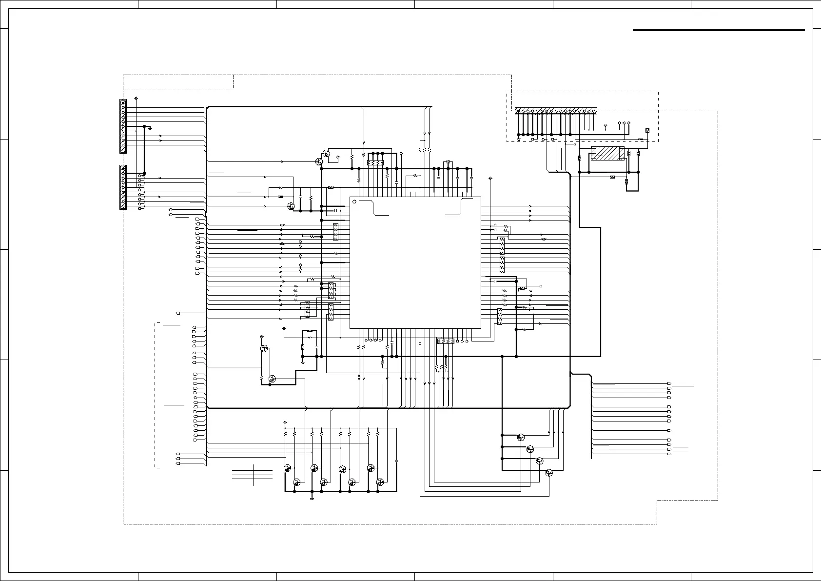
VMPU SECTION
TX-NR787/RZ630/RZ730/RZ830,DRX-3.2/4.2/5.2
1
A
B
C
D
E
2 3 4 5 6
1 2 3 4 5 6
A
B
C
D
E
VM_MIVO
VM_MOVI
Xin
Xout
VS100TX_SDA
VS100TX_SCL
SF_3.3V
MN787_SDA0
MN787_SCL0
MN787_FHOLD
MN787_CS
DBG_RST
SWD_DATA
SWD_DATA
DBG_RXD
SWD_CLK
SWD_CLK
ETM_DATA0
ETM_DATA1
ETM_DATA2
ETM_DATA3
ETM_DATA0
ETM_CLK
HPD_IN1
HPD_IN2
HPD_IN3
HPD_IN4
DBG_RST
VM_HPD
DBG_TXD
VS2KTX_DBG
VS100TX_SDA
VS100TX_SCL
MN787_SCK
MN787_MIVO
HDMI_MRQ
VM_CLK
HP_CTRLC
HP_CTRLA
HP_CTRLB
HPD_IN3
HPD_IN2
HPD_IN1
MN787_RST
MN787_NIRQ0
MN787_NOSDIRQ
+5.2VDC
HPD_IN4
788A_TX_HPD
DBG_TXD
DBG_RXD
HDMIZ2_MRQ
MN788A_RST
VS2KTX_DBG
BOOT
LOADER_RDY
ETM_DATA2
ETM_DATA3
SWD_CLK
ETM_CLK
ETM_DATA0
ETM_DATA1
SWD_DATA
DEC_PDN
DEC_SDA
DEC_SCL
DEC_RST
MN787_5VDET0
788A_5V
MN788_5V1
788A_5V
VM_HPDI
DBG_RST
VM_RST
CON_C_M
CON_C_M
CON_B_M
CON_B_M
CON_A_M
CON_A_M
4053_INH_M
4053_INH_M
CONA
CONB
CONC
4053INH
HP_CTRLC
HP_CTRLB
HP_CTRLA
MN788A_SDA
MN788A_SCL
MN788A_NIRQ1
DBG_RST
+3.3V_HDBT
MN787_MOVI
788A_HPD_CTLD
788A_HPD_CTLE
788A_HPD_CTLF
788A_HPD_CTLI
788A_HPD_CTLI
MN788A_SDA
MN788A_SCL
MN788A_RST
DEC_SDA
788A_HPD_CTLF
DEC_SCL
788A_TX_HPD
788A_HPD_CTLE
788A_HPD_CTLD
MN788A_NIRQ1
DEC_RST
DEC_PDN
eARC_INT
eARC_MUTE
eARC_SDA
eARC_SCL
MN787_UPD
PON_eARC
eARC_RST
PON_eARC
GNDDG
DBG_RXD
DBG_TXD
VM_RDY
R8723
4.7k
CONB
4053INH
CONA
CONC
R8727
220
Q7017
KRC402E
Q8730
KRC402E
Q8731
KRC402E
Q8732
KRC402E
Q8733
KRC402E
Q8716
KRC402E
Q8713
KRC402E
Q8709
KRC402E
Q8712
KRC402E
Q8702
KRC402E
Q8710
KRC402E
Q8705
KRC402E
Q8725
KRC402E
Q8727
KRC402E
Q8729
KRC402E
D8701
DA2J10100
NM
Q8701
TMPM361F10FG
AVSS
1
SDA3
9
INT0
8
PM0/SCLK2/TB1IN0/CTS2n
14
DVSS1
13
INT1
12
SCL3
10
MODE
4
RESETn
3
PL2
7
SCL0
6
VREFH
2
SDA0
5
PL6
11
PM1/TXD2/TB1IN1
15
PM2
16
INT2
17
SCLK3
18
TXD3
19
RXD3
20
INT3
21
TXD4
22
RXD4
23
PN2
24
INT4
25
PP0
26
PP1
27
SPDO
28
SPDI
29
SPCLK
30
SPFSS
31
PP6/ALEn
32
DVDD3B1
33
DVSS2
34
PA0
35
PA1
36
PA2
37
PA3
38
PA4
39
PA5
40
PA6
41
PA7
42
PB0
43
PB1
44
PB2
45
PB3
46
PB4
47
PB5
48
PB6
49
PB7
50
PE0
51
PE1
52
PE2
53
PE3
54
TXD0
55
RXD0
56
SCLK0
57
PE7
58
DVDD3B2
59
DVSS3
60
SWDIO
61
SWCLK
62
TRACECLK
63
TRACEDATA0
64
TRACEDATA1
65
TRACEDATA2
66
TRACEDATA3
67
SDA1
68
SCL1
69
PG2
70
INT6
71
PG4
72
PG5
73
PG6
74
PG7
75
RVDD3
76
XT1
77
XT2
78
DVDD3A
79
X1
80
DVSS4
81
X2
82
DVDD3B3
83
DVSS5
84
D+
85
D-
86
NMIn
87
TEST1
88
TEST2
89
PI0/BOOTn
90
PI1
91
AVDD3
92
PJ0
93
PJ1
94
PJ2
95
PJ3
96
PJ4
97
PJ5
98
PJ6
99
PJ7
100
BLM15PX181SN1D
L8702
L8701
NM
P8703
NSCT-11P2474
NM
1234567891011
*P8701A
NSCT-17P2480
1 2 3 4 5 6 7 8 9 1011121314151617
P8702
NSCT-9P2472
NM
123456789
104K
C8710
104K
*C8700
105K
C8705
104K
C8701
104K
C8707
104K
C8702
104K
C8706
104K
C8704
104K
C8703
C8708
NM
106K
C8709
R8701
10k
NM
R8713 100
R8745
10k
R8712 47
R8728
10k
R8742
10k
R8720
10k
R8733
10k
R8734
47
R8718
2.2k
R8719
2.2k
R8738
10k
R8737
4.7k
R8790
22
R8791
22
R8736
1k
R8740
10k
R8739
1k
R8743
10k
R8741
1k
R8746
47
R8711
10k
R8710
1k
R8726
10k
R8750 47
R8709 47
R8729
220
R8730
47
R8732 220
R8755
10k
R8725
47
R8703
10k
R8758
10k
R8700
10k
NM
R8705
47k
R8702
220
R8707
10000
R8721
47
R8752
47
R8753
47
R8757
100
R8731
10000
R8704
10000
X8701
CSTCE8M00G55-R0
GNDDG
GNDDG
GNDDG
GNDDG
MN787_SDA0
VM_RST
MN787_NIRQ0
MN787_SCK
HDMI_MRQ
HDMIZ2_MRQ
MN787_MOVI
VM_CLK
SF_3.3V
VM_MOVI
VM_HPD
LOADER_RDY
HDMI_MRQ
MN787_NOSDIRQ
HP_CTRLA
MN787_RST
MN787_SCL0
MN787_CS
MN787_FHOLD
HP_CTRLB
MN787_MIVO
HP_CTRLC
MN787_UPD
HDMIZ2_MRQ
VM_RDY
VM_MIVO
MN787_5VDET2
MN787_5VDET1
MN787_5VDET0
+5.0VHT
+5.2VDC
+3.3V_VMPU
+3.3VHT
+5.0VHT
+3.3VHT
+3.3V_VMPU
Q8704
KRA302E
Q8715
KRA302E
C8713
NM
C8712
NM
R8792
NM
C8711
NM
Q8734
FP6861C-B1AS5CTR
NM
VOUT
1
GND
2
OC
3
EN
4
VIN
5
C8714
NM
*R8793
0
788A_HPD_CTLF
788A_HPD_CTLI
788A_HPD_CTLD
788A_HPD_CTLE
DEC_SDA
788A_TX_HPD
DEC_SCL
MN788A_NIRQ1
MN788A_RST
MN788A_SDA
MN788A_SCL
DEC_RST
DEC_PDN
R8706 47
R8708 47
R8714
10k
R8716 3.3k
R8715
3.3k
eARC_RST
eARC_MUTE
eARC_INT
eARC_SCL
eARC_SDA
R8724
100
PON_eARC
R8717
10k
+3.3VHT
DBG_RXD
DBG_TXD
R8722 47
8.00MHz
VSP SECT.
MMPU SECT.
For Debug
RX2 SECT.
HDBaseT
MAIN_RDY
MAIN_CLK
VMPU write
MAIN_SDMOVI
MAIN_SDMIVO
HP_CTRLA IN1
HP_CTRLB IN2
HP_CTRLC IN3
PART-13
BAHDM-2424
(788A_TX0)
Only D4/D5
BAPRC-2605 (2/12)
NU
MN787_NIRQA0
MN787_NIRQA1
788A_TX_HPD 788A_TX0
C8700:Pioneer:103K
ONKYO:104K
Schematic Diagrams

Other manuals for Onkyo TX-RZ830

Related product manuals