EasyManua.ls Logo

Opacmare 1992 - Page 25

Opacmare 1992
50 pages
Print Icon
To Next Page IconTo Next Page
To Next Page IconTo Next Page
To Previous Page IconTo Previous Page
To Previous Page IconTo Previous Page
Loading...
USE AND MAINTENANCE INSTRUCTIONS
MANUALE DI USO E MANUTENZIONE
24
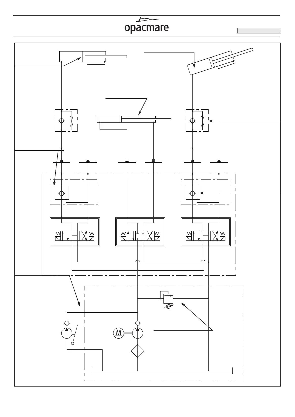
Hydraulic diagram gangway mod. 3800 (picture 14) / Diagramma idraulico passerella mod. 3800 (fig. 14)
Lifting cylindres
Cilindro di sollevamento
Pantograph
lifting cylinder
Cilindri di sollevamento
pantografo
Relief valve (180 bar)
Valvola di massima pressione
(180 bar)
Flow regulator valves
Valvole regolatrici di flusso
Emergency manual pump
Pompa a mano emergenza
Block valve
Valvola di blocco
Block valve
Valvola di blocco
Transom gangway
Passerella esterna
EDITION OF 08/2008
Extension cylinder
Cilindro di sfilo

Related product manuals