EasyManua.ls Logo

Opal-RT OP5650 - Installation and Configuration

Opal-RT OP5650
26 pages
Print Icon
To Next Page IconTo Next Page
To Next Page IconTo Next Page
To Previous Page IconTo Previous Page
To Previous Page IconTo Previous Page
Loading...
OP5600/OP5650 User Manual OPAL-RT Technologies 10
OP5600 Series/OP5650 Simulator
Installation and Configuration
INSTALLATION AND CONFIGURATION
Follow this simple installation procedure. Make sure to respect proper grounding, as described in
“Connecting the Ground Screw”.
1. Place the OP5650 on a shelf or a desktop, or install in a traditional rack
2. Connect the power cable to the nearest power outlet
3. Connect the OP5650 to the same network used by the host PC, using the cables provided.
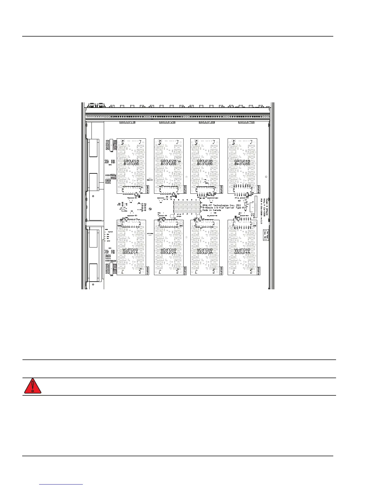
Figure 2: Top view of mezzanines installed on carrier
The top of the chassis can be removed to access the signal conditioning mezzanine boards installed on
the carrier board. The layout and configuration of the boards depends on the selected platform (which
must be factory installed):
At power-up, the carrier will autodetect installed mezzanines and transfer information to the FPGA and
the simulator.
CAUTION
The system must be powered down before changing mezzanines. Failure to do so may
damage the equipment.
!
Disconnect power before servicing

Related product manuals