EasyManua.ls Logo

Opal-RT OP5650 - Rj45 Connections

Opal-RT OP5650
26 pages
Print Icon
To Next Page IconTo Next Page
To Next Page IconTo Next Page
To Previous Page IconTo Previous Page
To Previous Page IconTo Previous Page
Loading...
OP5600/OP5650 User Manual OPAL-RT Technologies 18
OP5600 Series/OP5650 Simulator
RJ45 connections
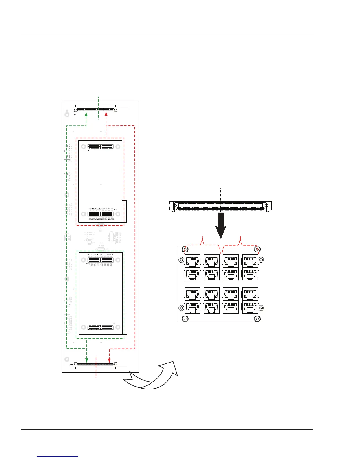
RJ45 CONNECTIONS
Each RJ45 monitoring panel on the front of the OP5650 simulator connects to front and back
mezzanines. The following images illustrate how the mezzanines are linked to the connectors.
GROUP1A
GROUP1B
GROUP1A
GROUP1B
channels 0-15
ANALOG: NOT USED
Digital Channels 16-31
channels 0-15
GROUP1A
GROUP1B
ANALOG: NOT USED
Digital Channels 16-31
GROUP1A
GROUP1B
OP5600 Front (RJ45)
OP5600 Rear (DB37)
Top View
GROUP1B
GROUP1A
Figure 8: RJ45 connection to mezzanines

Related product manuals