EasyManua.ls Logo

Panasonic AJ-D455 - Controls and Connections; Front Panel Controls and Displays

Panasonic AJ-D455
52 pages
Print Icon
To Next Page IconTo Next Page
To Next Page IconTo Next Page
To Previous Page IconTo Previous Page
To Previous Page IconTo Previous Page
Loading...
6
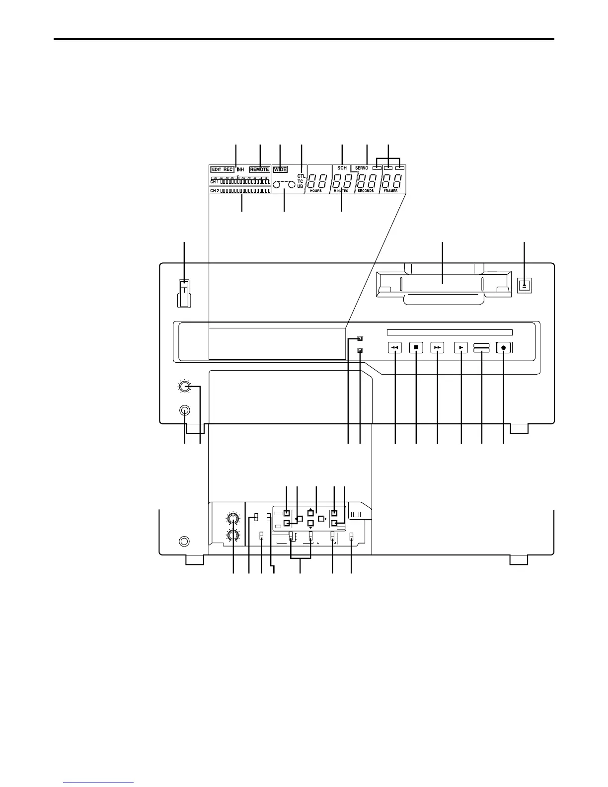
Controls and their functions
Front panel
Counter Display Section
@4 @5 @7 #3 #4 #5
@8@9 #0 #1#2
@2 @3 !4!5 !6 !7 !8 !9 @0 @1
ewq
rtyu io
!1
!0
!2 !3
@6
ON
OFF
POWER
EJECT
RECPLAY
DVCPRO
DV
FFSTOPREW
CTL/TC/UB/
REMAIN
RESET
CH CONDITION
LEVEL
HEADPHONES
CH 1
AUDIO
REC LEVEL
ON
OFF
CH 1
MIX
CH 2
AUDIO
MONITOR
SUPER
DVCPRO/DV
SDI
ANALOG
Y PB PR
CMPST
S-VIDEO
SDI
AES/EBU
ANALOG
REMOTE
LOCAL
MENU
PAGE
TC
PRESET
FILE
SET
DIAG
VIDEO IN
AUDIO IN
CH 2
INT
EXT
TC

Other manuals for Panasonic AJ-D455

Related product manuals