EasyManua.ls Logo

Panasonic CS-A18JKD - Wiring Connection Diagram

Panasonic CS-A18JKD
68 pages
Print Icon
To Next Page IconTo Next Page
To Next Page IconTo Next Page
To Previous Page IconTo Previous Page
To Previous Page IconTo Previous Page
Loading...
13
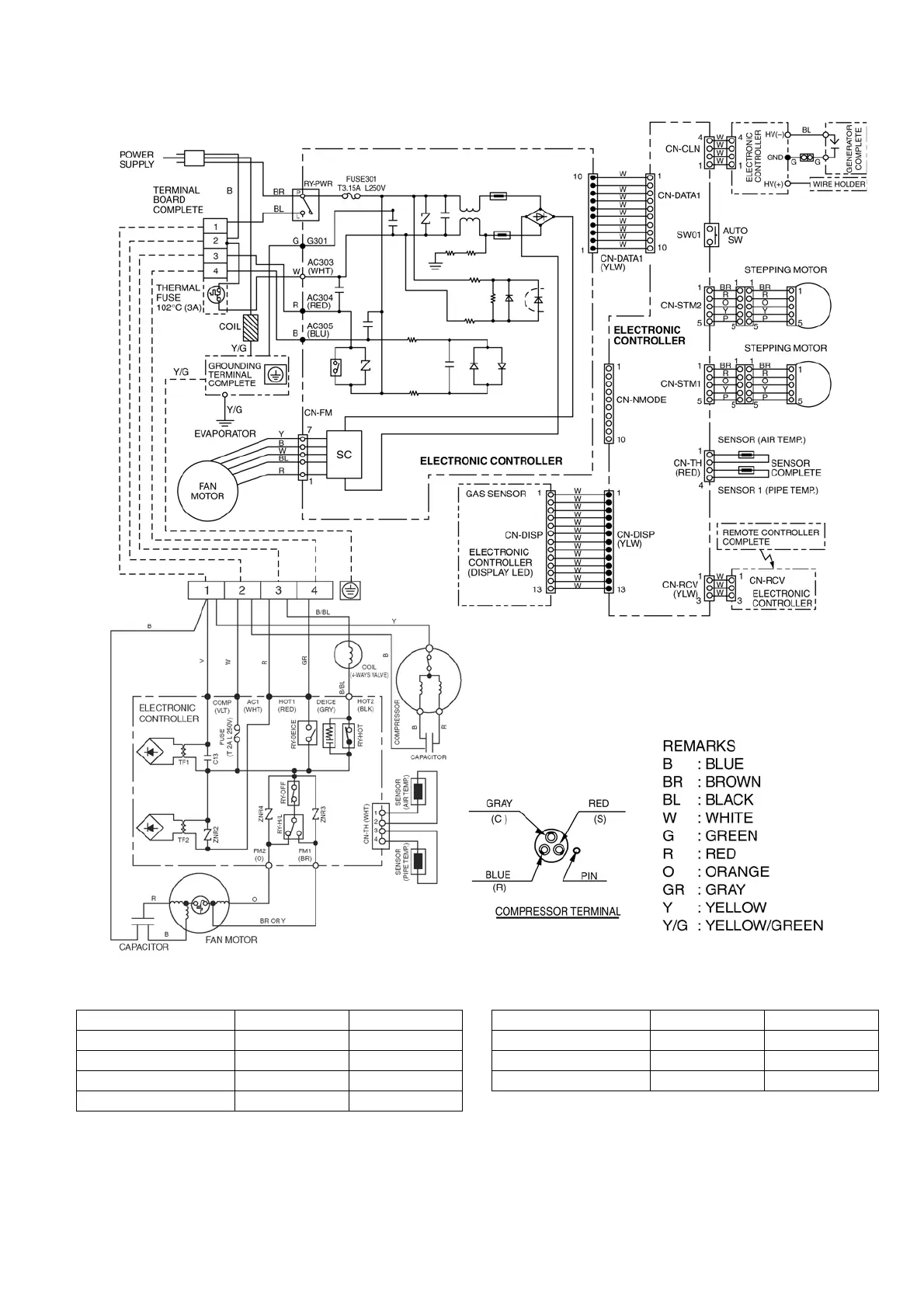
8 Wiring Connection Diagram
Resistance of Outdoor Fan Motor Windings
Note: Resistance at 20C of ambient temperature.
Resistance of Compressor Windings
Note: Resistance at 20C of ambient temperature.
MODEL CU-A18JKD CU-A24JKD
CONNECTION
CWA951385J CWA951353J
BLUE - YELLOW 93 74.6
YELLOW - ORANGE 124 122.2
YELLOW - RED 98 83.4
MODEL CU-A18JKD CU-A24JKD
CONNECTION
2JS318D3AA04 2JS438D3JA02
C - R 1.618 0.830
C - S 3.718 2.257

Table of Contents

Related product manuals