EasyManua.ls Logo

Panasonic CS-C18PKF - Wiring Connection Diagram

Panasonic CS-C18PKF
107 pages
Print Icon
To Next Page IconTo Next Page
To Next Page IconTo Next Page
To Previous Page IconTo Previous Page
To Previous Page IconTo Previous Page
Loading...
19
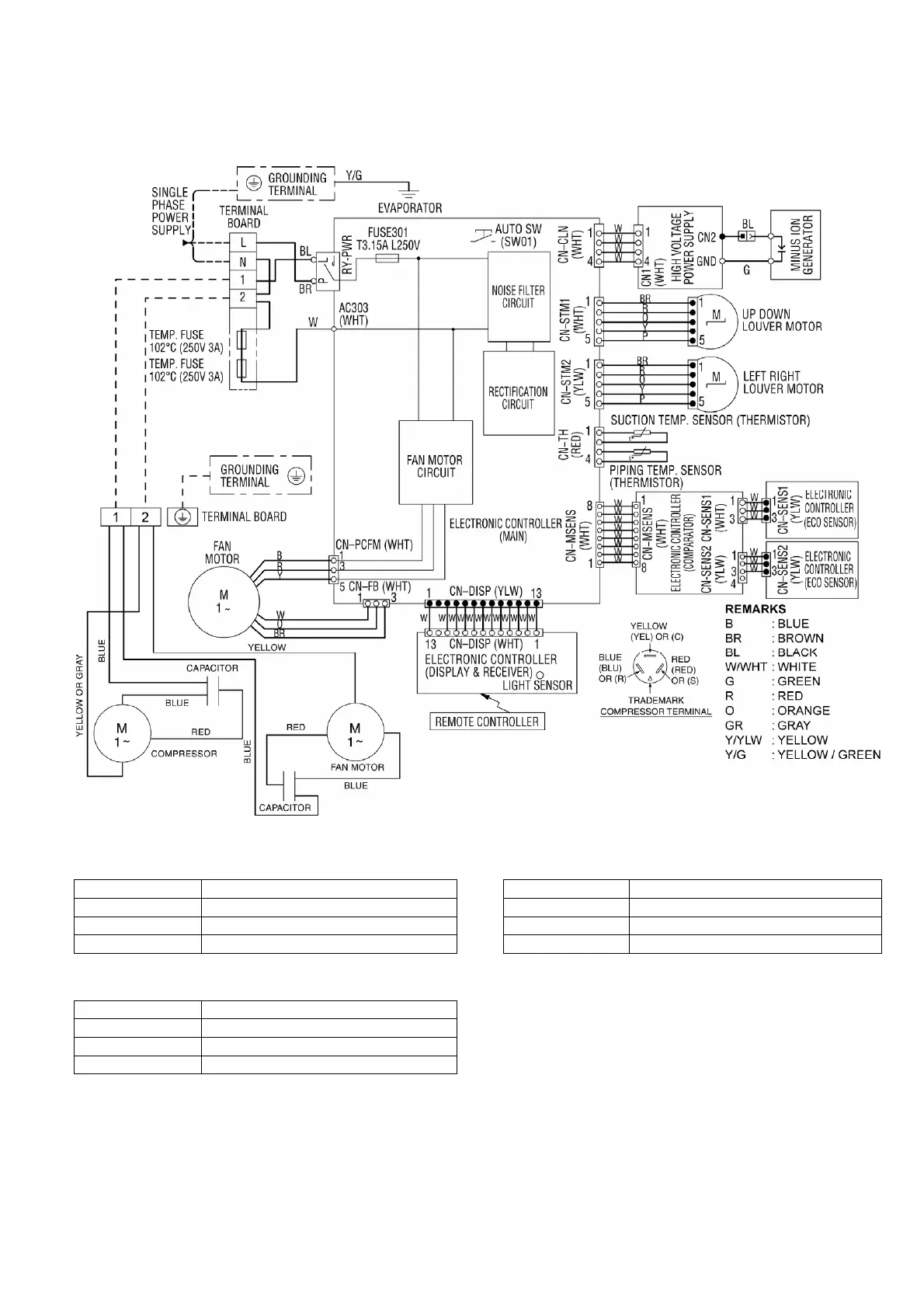
8. Wiring Connection Diagram
8.1 CS-C12PKF CU-C12PKF
Resistance of Indoor Fan Motor Windings
Resistance of Compressor Windings
MODEL CS-C12PKF MODEL CU-C12PKF
CONNECTION CWA921447 CONNECTION 2KS210D5AA06
BLUE-YELLOW 336 C-R 2.279
YELLOW-RED 306 C-S 3.526
Note: Resistance at 20°C of ambient temperature. Note: Resistance at 20°C of ambient temperature.
Resistance of Outdoor Fan Motor Windings
MODEL CU-C12PKF
CONNECTION CWA951676
BLUE-YELLOW 198
YELLOW-RED 293
Note: Resistance at 20°C of ambient temperature.

Table of Contents

Related product manuals