EasyManua.ls Logo

Panasonic CS-C18PKF - Installation Instruction; Select the Best Location

Panasonic CS-C18PKF
107 pages
Print Icon
To Next Page IconTo Next Page
To Next Page IconTo Next Page
To Previous Page IconTo Previous Page
To Previous Page IconTo Previous Page
Loading...
40
12. Installation Instruction
(For C28PKF only)
12.1 Select the Best Location
12.1.1 Indoor Unit
Do not install the unit in excessive oil fume area
such as kitchen, workshop and etc.
There should not be any heat source or steam
near the unit.
There should not be any obstacles blocking the air
circulation.
A place where air circulation in the room is good.
A place where drainage can be easily done.
A place where noise prevention is taken into
consideration.
Do not install the unit near the door way.
Ensure the spaces indicated by arrows from the
wall, ceiling, fence or other obstacles.
Recommended installation height for indoor unit
shall be at least 2.5 m.
12.1.2 Outdoor Unit
If an awning is built over the unit to prevent direct
sunlight or rain, be careful that heat radiation from
the condenser is not obstructed.
There should not be any animal or plant which
could be affected by hot air discharged.
Keep the spaces indicated by arrows from wall,
ceiling, fence or other obstacles.
Do not place any obstacles which may cause a
short circuit of the discharged air.
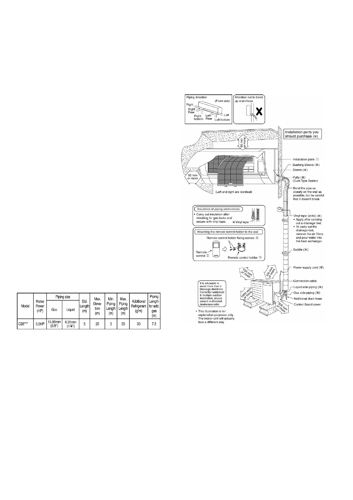
If piping length is over the [piping length for
additional gas], additional refrigerant should be
added as shown in the table.
Example: For C28***
If the unit is installed at 10 m distance, the quantity of
additional refrigerant should be 75 g .... (10-7.5) m x
30 g/m = 75 g.
12.1.3 Indoor/Outdoor Unit Installation
Diagram

Table of Contents

Related product manuals