EasyManua.ls Logo

Panasonic CS-MA95KE - 22 Electronic Circuit Diagram; Circuit Diagrams (Models 1)

Panasonic CS-MA95KE
98 pages
Print Icon
To Next Page IconTo Next Page
To Next Page IconTo Next Page
To Previous Page IconTo Previous Page
To Previous Page IconTo Previous Page
Loading...
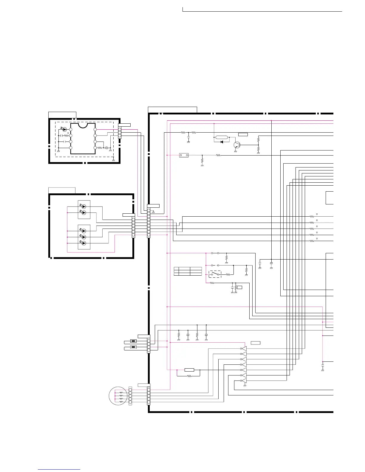
22 Electronic Circuit Diagram
SCHEMATIC DIAGRAM 1/3
CS-MA95KE / CU-MA185KE
CS-MA125KE / CU-MA245KE
CS-MA75KE / CU-MA195KE
CS-MA125KE
(MX-9)
A54LNK3171B
A54LNK2172B
ECONOMY
(PH-6)
STEPPING MOTOR DRIVE
OFF/ON
TIMER
SLEEP
POWERFUL
10 7
12 5
11 6
9
g
f
e
CN-STM
1
2
3
4
55
4
3
2
1
(MX-5)
(ZH5)
AIR TEMP. SENSOR
(15k 3950)
(20k 3950)
PIPE TEMP. SENSOR
R32
102k
RECEIVER
INDICATOR
a
b
c
d
CN-DISP
1
2
3
4
5
6
9
8
314
215
116
413
(PH4)
1
3
IC5
A52A2003GR2
RX1
24k
R30
26.1k
R31
10k
R28
JX2
SW1
5.1k
R16
1k
R17
0.01µ
C11
16V
10µ
C15
+
15k
R26
R27
20k
+
C16
10µ
16V
(PH3)
PH302C
330
0.01µ
0.01µ
FO
VCC2
OUT
VCC1
GND
CO
IN-
IN+
47µ
6.3V
+
137k
5
6
7
8
4
3
2
1
CN-RCV
2
CN-DISP
8
7
6
5
4
3
2
1
CN-TH
1
2
3
4
MAIN
GRN
ORG
ORG
ORG
GRN
R29
0.01µ
C17
TEST
R8
1k
R9
10k
+
C22
10µ
0.01µ
C23
16V
BZ1
BZ
1k
R23
b
e
2.2k
R22
D1
RY-PWR
ERA15-01
c
R21
6.2k
2SD148-4X
Q4
C14
0.1µ
AIR SWING
MOTOR
RY-PWR DRIVE
330R39
R38 330
330R36
R37 330
R35 330
REMOTE CONTROL NO.
SW1
RX1
1
2
OPEN
OPEN
10K
-
Fig.1
91
CS-MA95KE CU-MA185KE / CS-MA125KE CU-MA245KE / CS-MA75KE / CS-MA125KE CU-MA195KE

Related product manuals