EasyManua.ls Logo

Panasonic CS-RE12SKUA

Panasonic CS-RE12SKUA
138 pages
To Next Page IconTo Next Page
To Next Page IconTo Next Page
To Previous Page IconTo Previous Page
To Previous Page IconTo Previous Page
Loading...
17
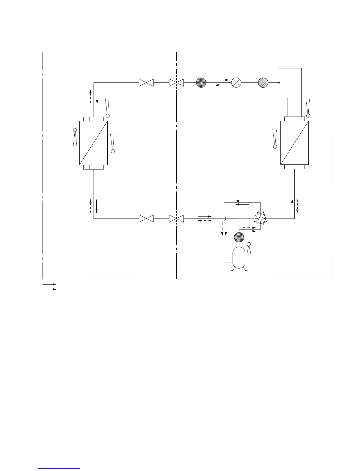
6.2 CU-RE18SKUA CU-RE24SKUA
INDOOR OUTDOOR
INTAKE
TEMP.
SENSOR
PIPE
TEMP.
SENSOR 1
PIPE
TEMP.
SENSOR 2
INTAKE
TEMP.
SENSOR
PIPE
TEMP.
SENSOR
LIQUID
SIDE
2-WAY
VALVE
3-WAY
VALVE
GAS
SIDE
COOLING
HEAT EXCHANGER
(EVAPORATOR)
HEAT EXCHANGER
(CONDENSER)
HEATING
COMPRESSOR
COMPRESSOR
DISC. SENSOR
4-WAY VALVE
STRAINER
EXPANSION
VALVE
DISCHARGE
MUFFLER
(RE18SKUA ONLY)
OIL SEPARATOR
(RE24SKUA ONLY)

Table of Contents

Other manuals for Panasonic CS-RE12SKUA

Related product manuals