EasyManua.ls Logo

Panasonic CS-RE12SKUA

Panasonic CS-RE12SKUA
138 pages
To Next Page IconTo Next Page
To Next Page IconTo Next Page
To Previous Page IconTo Previous Page
To Previous Page IconTo Previous Page
Loading...
31
11. Installation Instruction (RE9SKUA and RE12SKUA)
11.1 Select the Best Location
11.1.1 Indoor Unit
Do not install the unit in excessive oil fume area
such as kitchen, workshop and etc.
There should not be any heat source or steam
near the unit.
There should not be any obstacles blocking the air
circulation.
A place where air circulation in the room is good.
A place where drainage can be easily done.
A place where noise prevention is taken into
consideration.
Do not install the unit near the door way.
Ensure the spaces indicated by arrows from the
wall, ceiling, fence or other obstacles.
Recommended installation height for indoor unit
shall be at least 8 ft (2.4 m).
11.1.2 Outdoor Unit
If an awning is built over the unit to prevent direct
sunlight or rain, be careful that heat radiation from
the condenser is not obstructed.
There should not be any animal or plant which
could be affected by hot air discharged.
Keep the spaces indicated by arrows from wall,
ceiling, fence or other obstacles.
Do not place any obstacles which may cause a
short circuit of the discharged air.
If piping length is over the [piping length for
additional gas], additional refrigerant should be
added as shown in the table.
Recommended installation height for outdoor unit
should be above the seasonal snow level.
Be careful not to locate outdoor unit directly under
a roof line where falling snow or ice can cause
damage or dripping water can increase ice
accumulation and defrost cycles.
Model
Capacity
(Btu/h)
Piping size
Std.
Length
Max.
Elevation
Min.
Piping
Length
Max.
Piping
Length
Additional
Refrigerant
Piping
Length
for add.
gas
Gas Liquid
RE9SKUA 9000
3/8"
(9.52 mm)
1/4"
(7.5 mm)
24.6 ft
(7.5 m)
49.2 ft
(15 m)
9.8 ft
(3 m)
49.2 ft
(15 m)
0.2 oz/ft
(20 g/m)
24.6 ft
(7.5 m)
RE12SKUA 12000
1/2"
(9.52 mm)
Example: For RE9SKUA
If the unit is installed at 32.8 ft (10 m) distance, the
quantity of additional refrigerant should be 1.64 oz
(50 g) .... (32.8 - 24.6) ft x 0.2 oz/ft = 1.64 oz.
((10 -7.5) m x 20 g/m = 50 g).
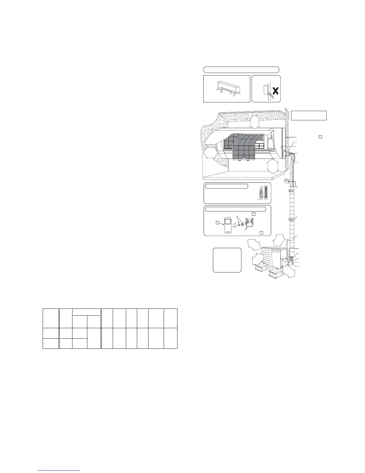
11.1.3 Indoor/Outdoor Unit Installation
Diagram
1
31
/
32
"
(50 mm)
or more
2
9
/
16
"
(
65 mm)
or
m
ore
8 ft
(2.4
m
)
or m
or
e
(Left and right are identical)
Floor / Grade level
Vinyl tape
3
15
/
1
6
"
(
1
00 m
m
)
or mor
e
3
9
3
/
8
"
(
10
0
0
mm
)
o
r mo
re
3
1
5
/
1
6
"
(100
mm)
or
m
ore
11
13
/
1
6
"
(3
00 mm)
or more
It is advisable to
avoid more than 2
blockage directions.
For better ventilation
& multiple-outdoor
installation, please
consult authorized
dealer/specialist.
Installation plate
1
Sleeve (
)
Bushing-Sleeve (
)
Bend the pipe as
closely on the wall as
possible, but be careful
that it doesn’t break.
Saddle (
)
Conduit
(Power supply cord (
))
Control Board cover
Remote control holder fixing screws
Remote
control
Additional drain hose (
)
Gas side piping (
)
Conduit
(Connection cable)
Putty (
)
(Gum Type Sealer)
Installation parts you
should purchase (
)
Vinyl tape (wide) ()
• Apply after carrying
out a drainage test.
• To carry out the
drainage test,
remove the air filters
and pour water into
the heat exchanger.
Liquid side piping (
)
Piping direction Do not bend up
drain hose
(Front side)
Right
Rear
Right
bottom
Left
Rear
Left bottom
Left
Indoor/Outdoor Unit Installation Diagram
Insulation of piping connections
Attaching the remote control holder to the wall
• Carry out insulation after
checking for gas leaks and
secure with vinyl tape.
Remote control holder
6
5
3
This illustration is for explanation purposes only.
The indoor unit will actually face a different way.

Table of Contents

Other manuals for Panasonic CS-RE12SKUA

Related product manuals