EasyManua.ls Logo

Panasonic CS-RE12SKUA - Page 48

Panasonic CS-RE12SKUA
138 pages
To Next Page IconTo Next Page
To Next Page IconTo Next Page
To Previous Page IconTo Previous Page
To Previous Page IconTo Previous Page
Loading...
48
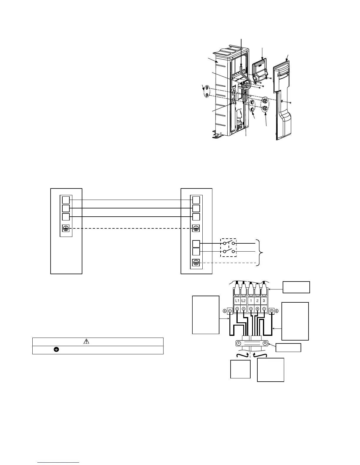
12.3.3.1 Connect the Cable to the Outdoor Unit
1. Remove control board cover (Resin and
Metal).
2. Remove particular plate.
3. Remove plugs.
4. Fix the conduit connectors to the knockout
holes with lock-nuts, then secure them against
the side panel.
5. All wires pass through conduits & particular
plate’s opening hole.
6. Connecting wire between indoor unit and
outdoor unit should be UL listed or CSA
approved 4 conductor wires minimum AWG16
in accordance with local electric codes.
7. Wire connection to the power supply
(208/230V 60Hz) through circuit breaker.
o Connect the UL listed or CSA approved
wires minimum AWG12 to the terminal
board, and connect the other end of the
wires to ELCB / GFCI.
8. Connect the power supply cord and
connecting wire between indoor unit and
outdoor unit according to the diagram below.
Control Board
Cover (Metal)
Lock Nuts
Knockout
Holes
Front
Panel
Connecting wires
Control Boar
d
Cover (Resin
)
Connectors
Particular
Plate
Particular Plate
Opening hole
Plugs
Outdoor Unit
1
2
3
1
2
L1
L2
3
TerminalTerminal
Indoor Unit
Disconnect
Switch
Field supply
Grounding wire
Grounding wire min AWG16
Power Supply
Single Phase
208/230V 60Hz
min AWG12
208/230V min AWG16
208/230V min AWG16
208/230V min AWG16
9. Secure the wire onto the control board with
the holder (clamper).
10. After completing wiring connections, reattach
the particular plate and control board cover
(Metal and Resin) to the original position with
the screws.
11. For wire stripping and connection requirement,
refer to instruction 12.2.5 of indoor unit.
WARNING
This equipment must be properly earthed.
Earth lead wire shall be Yellow/Green (Y/G) in
colour and should be longer than other lead wires
as shown in the figure for electrical safety in case
of slipping.
Holder
Power
supply
cord
Indoor &
outdoor
connection
cable
Earth wire
longer
than other
AC wires
for safety
reasons
Earth wire
longer
than other
AC wires
for safety
reasons
Terminal
Board

Table of Contents

Other manuals for Panasonic CS-RE12SKUA

Related product manuals