EasyManua.ls Logo

Panasonic CU-L50DBE5 - 4 Refrigeration Cycle

Panasonic CU-L50DBE5
86 pages
Print Icon
To Next Page IconTo Next Page
To Next Page IconTo Next Page
To Previous Page IconTo Previous Page
To Previous Page IconTo Previous Page
Loading...
8
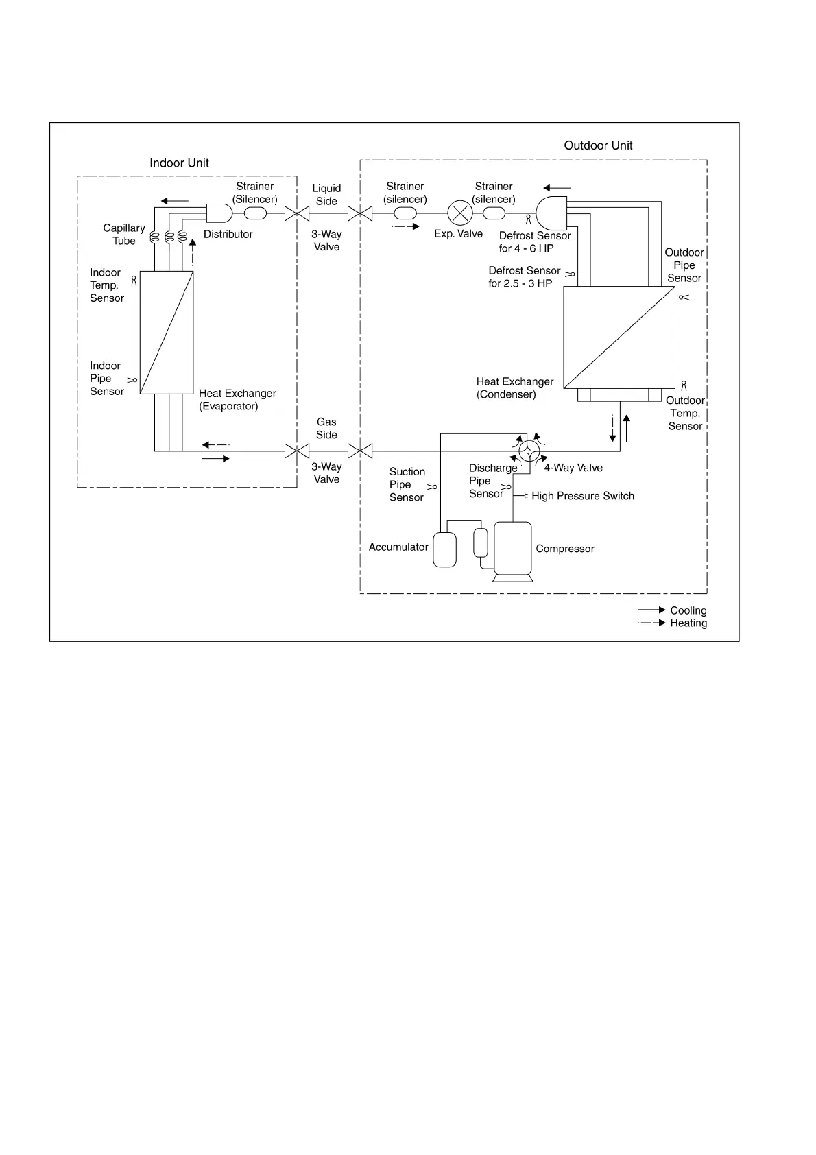
4 Refrigeration Cycle

Other manuals for Panasonic CU-L50DBE5

Related product manuals