EasyManua.ls Logo

Panasonic CU-MC180KE - Installation Information; Attached accessories for Installation; SELECT THE BEST LOCATION

Panasonic CU-MC180KE
56 pages
Print Icon
To Next Page IconTo Next Page
To Next Page IconTo Next Page
To Previous Page IconTo Previous Page
To Previous Page IconTo Previous Page
Loading...
– 25 –
MAC9702008C2
CS-MC90KE
Operation Details
5) Sleep Mode Auto Operation
Cooling or Soft Dry Operation
6) Auto Restart Control
If there is a power failure, operation will be automatically restarted when the power is resumed.
It will start with previous operation mode and airflow direction.
(Time Delay Safety Control is valid)
Auto Restart Control is not available when Timer or Sleep Mode is set.
This control can be omitted by cutting the jumper wire J2. (Refer Circuit Diagram)
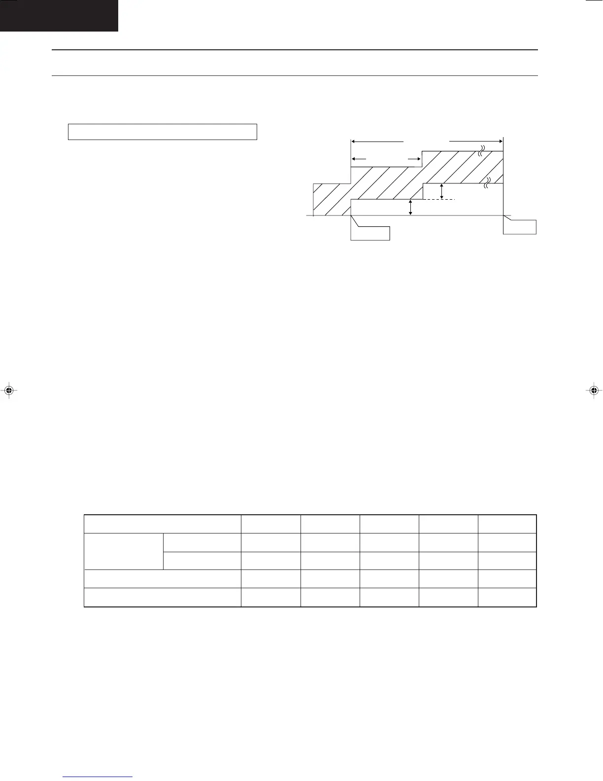
When you press the SLEEP Mode, the following move-
ment will start to avoid overcooling.
The fan speed is automatically set to Low.
The setting temperature will be risen by 0.5°C at the
start of operation and by 0.5°C one hour later.
The operation will stop after 8 hours.
7) Indoor Fan Speed Control
Auto Fan Speed Control
When set to Auto Fan Speed, the fan speed is adjusted between maximum and minimum setting as shown in the
table.
Manual Fan Speed Control
Basic fan speed adjustment (3 settings, from Lo to Hi) can be carried out by using the Fan Speed selection
button.
START
STOP
1 HOUR
8 HOURS
0.5°C UP
0.5°C UP
SET
TEMP.
Fan Speed
Hi
t
t
Manual
Automatic
Cooling
Soft Dry
Air Circulation
Me
t
t
Lo
t
t
t
SLo
t
* SLo: Indoor Fan rotates at 4-second intervals at Low speed.
Stop
t
t
Untitled-24 6/25/00, 5:31 PM25

Related product manuals