EasyManua.ls Logo

Panasonic CU-PC18KKF - Cs-Pc18 Kkf Cu-Pc18 Kkf

Panasonic CU-PC18KKF
77 pages
Print Icon
To Next Page IconTo Next Page
To Next Page IconTo Next Page
To Previous Page IconTo Previous Page
To Previous Page IconTo Previous Page
Loading...
19
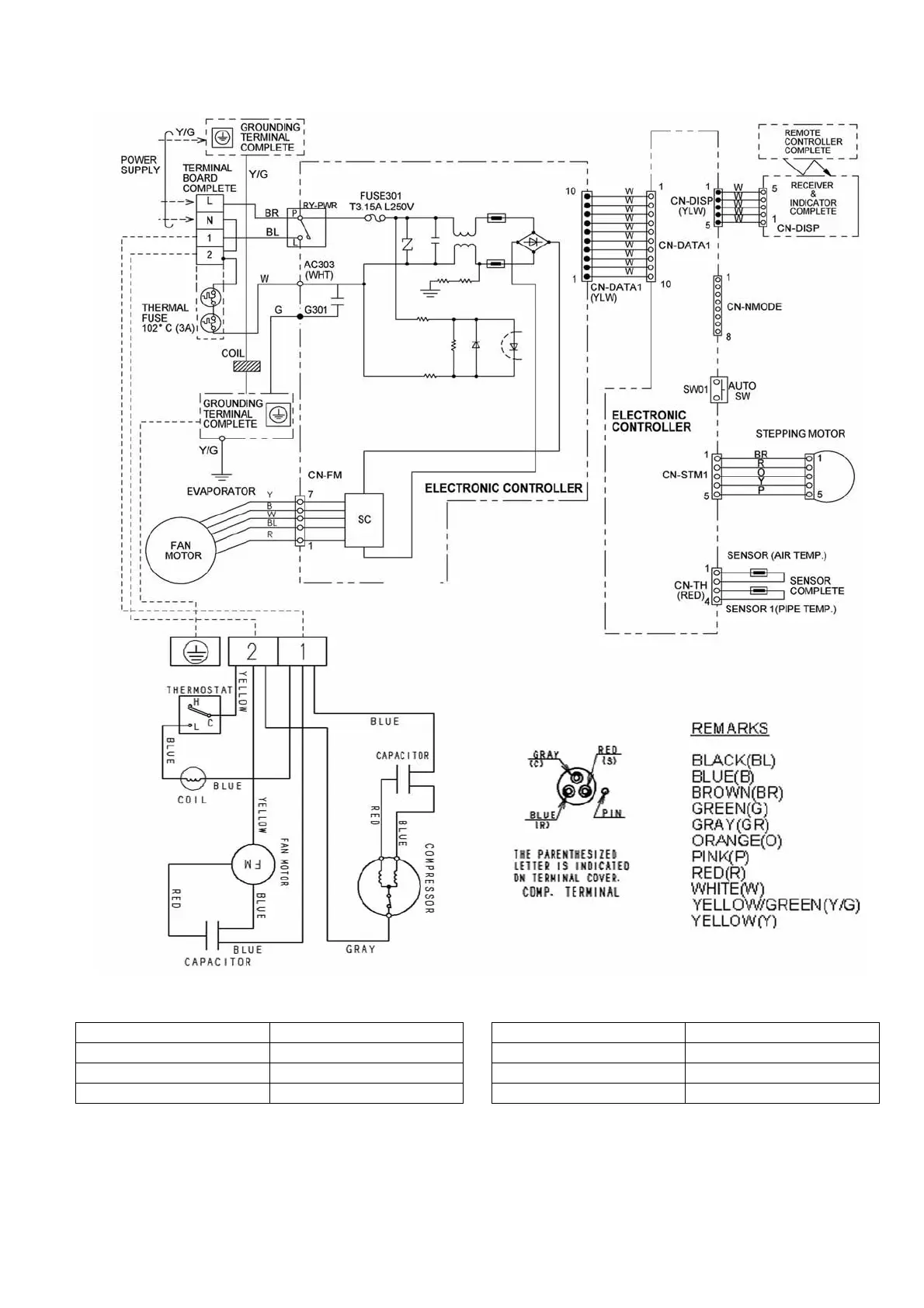
8.2. CS-PC18KKF CU-PC18KKF
Resistance of Outdoor Fan Motor Windings
Note: Resistance at 25°C of ambient temperature.
Resistance of Compressor Windings
Note: Resistance at 20°C of ambient temperature.
MODEL CU-PC18KKF
CONNECTION CWA951676
BLUE-YELLOW 198 Ω
YELLOW-RED 293 Ω
MODEL CU-PC18KKF
CONNECTION 2KS324D5AA06
C - R 1.419 Ω
C - S 3.781 Ω

Table of Contents

Related product manuals