EasyManua.ls Logo

Panasonic CU-PC18KKF - Installation Instruction; 11.1. Location Selection

Panasonic CU-PC18KKF
77 pages
Print Icon
To Next Page IconTo Next Page
To Next Page IconTo Next Page
To Previous Page IconTo Previous Page
To Previous Page IconTo Previous Page
Loading...
26
11 Installation Instruction
11.1. Select The Best Location
11.1.1. Indoor Unit
Do not install the unit in excessive oil fume area such as
kitchen, workshop and etc.
There should not be any heat source or steam near the unit.
There should not be any obstacles blocking the air
circulation.
A place where air circulation in the room is good.
A place where drainage can be easily done.
A place where noise prevention is taken into consideration.
Do not install the unit near the door way.
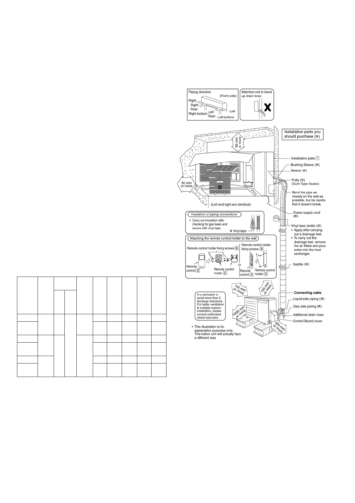
Ensure the spaces indicated by arrows from the wall, ceiling,
fence or other obstacles.
Recommended installation height for indoor unit shall be at
least 2.5 m.
11.1.2. Outdoor Unit
If an awning is built over the unit to prevent direct sunlight or
rain, be careful that heat radiation from the condenser is not
obstructed.
There should not be any animal or plant which could be
affected by hot air discharged.
Keep the spaces indicated by arrows from wall, ceiling,
fence or other obstacles.
Do not place any obstacles which may cause a short circuit
of the discharged air.
If piping length is over the [piping length for additional gas],
additional refrigerant should be added as shown in the table.
Example: For C12***
If the unit is installed at 10 m distance, the quantity of additional
refrigerant should be 25 g .... (10-7.5) m x 10 g/m = 25 g
11.1.3. Indoor/Outdoor Unit Installation
Diagram
Model
Horse
Power
(HP)
Piping
size
Std.
Length
(m)
Max.
Ele-
vation
(m)
Min.
Piping
Length
(m)
Max.
Piping
Length
(m)
Addi-
tional
Refri-
gerant
(g/m)
Piping
Length
for
add.
gas
(m)
Gas
Li-
quid
C12***
1.5HP 1/2”
1/4”
7.5
5 3 15 10 7.5
SC/
PC12***
5 3 15 10 7.5
C18***
2.0HP
5/8” 5
20 3 25 20 7.5
SC/
PC18***
20 3 25 20 7.5
C24***
2.5HP
20 3 25 30 7.5
SC/
PC24***
20 3 25 30 7.5

Table of Contents

Related product manuals