EasyManua.ls Logo

Panasonic CU-V7CKP5 - SCHEMATIC DIAGRAM 3;3

Panasonic CU-V7CKP5
76 pages
Print Icon
To Next Page IconTo Next Page
To Next Page IconTo Next Page
To Previous Page IconTo Previous Page
To Previous Page IconTo Previous Page
Loading...
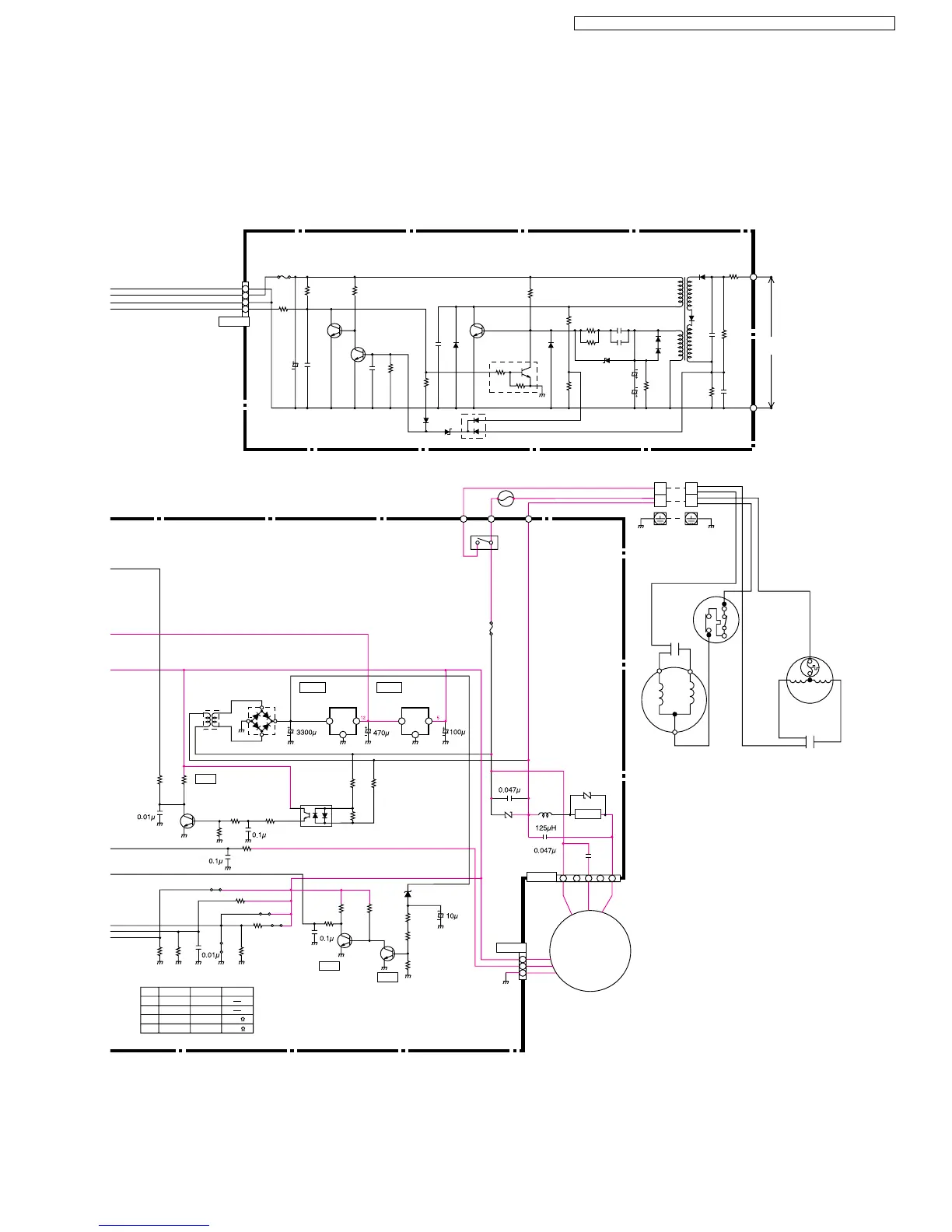
SCHEMATIC DIAGRAM 3/3
IC03
G
I
16V
C11
5V12V
I
G
IC04
C17
35V
(NHG)
DB01
C14
25V
1k
R36
50/60Hz
AC 220-240V
MOTOR
FAN
CN-FM
5431
CN-FB1
(PH-3)
RY-PWR
AC
(WHT)
T01
5
8
13
2
511U
ZNR01
REGULATOR
REGULATOR
+
~
~
C12
C-FM
C03
SSR01
511U
ZNR03
L01
C19
Q04
c
e
b
R44
1k
1.0k
R41
510
R48
39k/2W
R47
39k/2W
R57
820
R03
4.7k
R29
3.9k
R26
3
41
2
PC01
C07
GENERATOR
POWER CLOCK
C16
10k
R37
C15
JX4
R38
10k
R40
JX3
24k
R42
RX1
R43
JX1
C18
c
e
b
R50
100k
R49
1k
R51
10k
c
e
b
6.2k
R54
10k
R53
6.2k
R52
ZD1
7.5EL1
Q05
Q06
50V
C21
GENERATION
RESET SIGNAL
GENERATION
RESET SIGNAL
REMOTE CONTROL NO.
SHORT
SHORT
OPEN
SHORT
SHORT
OPEN
OPEN
OPEN
1
0
3
2
JX3 JX4 RX1
10K
10K
2
2
1
FUSE
O O
3
2
1
2
1
EH-4P
4
3
2
1
F1
CH1
VIN
GND
ERR
C2 C1
Q1
Q2
Q4
Q5
R2
R16
c
e
b
4.7k
10k
e
b
c
C3 R4
R3
R3
D2
Z01
D1
c
e
b
C3
D1
D3
R14
R13
R9
R15
R10
R102
-5.7kV
R101
HV
CN2
R12
C5
D6
D5
C10
C9
C6
Z02
c
e
b
R6
T01
D101
D102
C*
C7
GND
CN3
B
4
Y
GRY
CAPACITOR
OVERLOAD
PROTECTOR
CAPACITOR
FAN MOTO
R
B
Y
R
B
COMPRESSOR
B
1
71
CS-V7CKP CU-V7CKP5 / CS-V9CKP CU-V9CKP5 / CS-V12CKP CU-V12CKP5

Related product manuals