EasyManua.ls Logo

Panasonic DMR-E75VP - Page 154

Panasonic DMR-E75VP
235 pages
Print Icon
To Next Page IconTo Next Page
To Next Page IconTo Next Page
To Previous Page IconTo Previous Page
To Previous Page IconTo Previous Page
Loading...
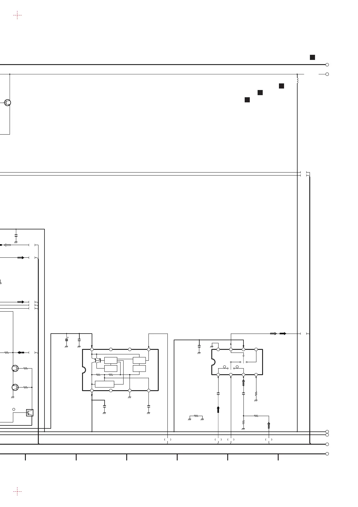
22.6. Video Section (Main P.C.B.(3/3)) Schematic Diagram (V)
H
H
H
H
H
L
H
L
L
H
H
H
0.01
C3963
< REG.5V >
DVDVTR
Vout GND
CONTVin
UNREG 6VS
E
D
C
B
A
B32
B29
B28
B13 B25B12B15
0
K3010
0.1
C3945
B22
B21
B20
B19
B18
B17
ANA 5V
REG.5V
X SW5.8V
A5V
B16
B15
B13
B12
B11
B10
B9
B8
B6
B5
B4
B3
B2
B1
A41
A40
A39
A38
A37
A36
A35
A34
A33
A32
A31
A30
A29
A28
A27
A26
A25
A23
A22
A20
A18
A15
A14
A13
A10
A9
A8
A7
A6
A5
A4
A3
A2
A1
47K
R3037
S KILLER
DVD INS
NORMAL AUDIO INA
V GND
FM GND
AUDIO HEAD GND
D GND
OSD GND
REF GND
SYS GND
A
A
A
S
S
S
S
VEE0U97
J1
0
K3006
0
R3735
22P
C3753
0
R3734
S IECOUT
S DVD OUT
S OSD VIDEO OUT
VIDEO L2 INS
S CPN Y IN2
S CPN C IN2
L2 DETS
IIC CLKS
IIC DATAS
27u
L3005
0.1
C3053
TUN VIDEO IN1A
NORMAL AUDIO OUTA
MIX V OUTA
470
R3961
470
R3962
0
K3031
0.01
C3946
(DVD/VTR SELECTOR SW)
C1AB00001870
IC3903
S VTR P ON
10V220
C3045
1
C3018
0.1
C3027
1
C3073
(REG.+5V)
C0CBCDD00007
IC3002
8765
4321
AFSCS
R3956 470
R3957 470
S OSD VIDEO IN
0.1
C3044
1K
R3017
(FSC)
2SD1819A0L
Q3001
330
R3031
(OSD VIDEO AMP)
2SD1819A0L
Q3004
S SQPB DET
R3023 1500
A AUDIO LINE OUT L
A AUDIO LINE OUT R
S AVR
AUDIO MIX R OUTA
AUDIO MIX L OUTA
680
R3727
R3730 680
(AUDIO MUTE)
UNR521600L
QR3953
(AUDIO MUTE)
UNR521600L
QR3952
(MUTE DRIVE)
UNR511300L
QR3951
DVD AUDIO OUT LA
2700
R3728
1000P
C3751
(AUDIO MUTE)
2SD132800L
Q3701
1000P
C3752
(AUDIO MUTE)
2SD132800L
Q3702
DVD AUDIO OUT RA
2700
R3729
MA3Z142D0LG
D3701
3
1
2
MUTES
(MUTE DRIVE)
UNR511100L
QR3701
CPN Y IN1
CPN C IN1
AUDIO L1 IN R
AUDIO L1 IN L
L1 DET
DVD TUN VIN
A
A
A
A
A
A
R3052 2200
R3053 2200
VBI1
VBI2
ART V H N
S
S
S
L123 SW DET
CPNC IN DM
SLICER VIDEO
V Y IN DM
S
S
S
S
YOUT DM
COUT DM
RPROUT DM
GPYOUT DM
BPBOUT DM
I2C5DT
I2C5CK
SYNC DET
S
S
S
S
S
S
S
S
ANA 5VS
TRK ENV
VIDEO HEAD SW
S
S
2200
R3951
COM MUTES
A
A
A
AUDIO HEAD L
AUDIO HEAD COM
AUDIO HEAD R
AUDIO HEAD R
AUDIO HEAD COM
AUDIO HEAD L
SP L
SP COM
SP R
LP/EP L
LP/EP COM
LP/EP R
9
8
7
6
5
4
3
2
1
P3001
TO CYLINDER UNIT
S X SW 5.8V
2200
R4086
A S V REG 5V
SHUTDOWN
THERMAL
LIMITTER
CURRENT
DRIVER BIAS
REFERENCE
8
1234
567
12
H
6V47
C4083
C2099 680P
R2099 6800
F
S
A
S
S
S
2200
R3021
1K
R4005
1K
R4001
UNR511100L
QR4801
(D REC :OFF)
(MUTE)
2SD1819A0L
Q4002
(MUTE)
2SD114900L
Q4001
EQQ7QF027P
T4081
6800
R4081
470P
C4082
0.022
C4201
1800P
C4084
0.068
C4081
2.2
R4009
3300
R4082
220u
L4061
2200
R4087
(BIAS :ON)
UNR221300L
QR4082
(ERASE HEAD DRIVE)
2SB0710A0L
Q4084
(OSC)
B1AAGD000006
Q4081
D REC
A 5V
BIAS
P4002
TO A/C HEAD
P4001
TO FULL ERASE HEAD
2
1FULL ERASE IN
FULL ERASE OUT
AUDIO ERASE IN
GND
A.HEAD(W)
A.HEAD(R)
CTL HEAD(-)
CTL HEAD(+)
CTL HEAD(+)
CTL HEAD(-)
6
5
4
3
2
1
1
3
6
2
4
1110987654321
G
F
E
D
C
B
A
DMR-E75VP Video Section (Main P.C.B.(3/3)) Schematic Diagram (V)
D
C
E
S:Syscon/Servo/Timer Section(Page: )
V:Video Section(Page: )
A:Hi-Fi Audio Section(Page: )
E
87

Related product manuals