EasyManua.ls Logo

Panasonic MAC0105011C3 - Page 126

Panasonic MAC0105011C3
126 pages
Print Icon
To Previous Page IconTo Previous Page
To Previous Page IconTo Previous Page
Loading...
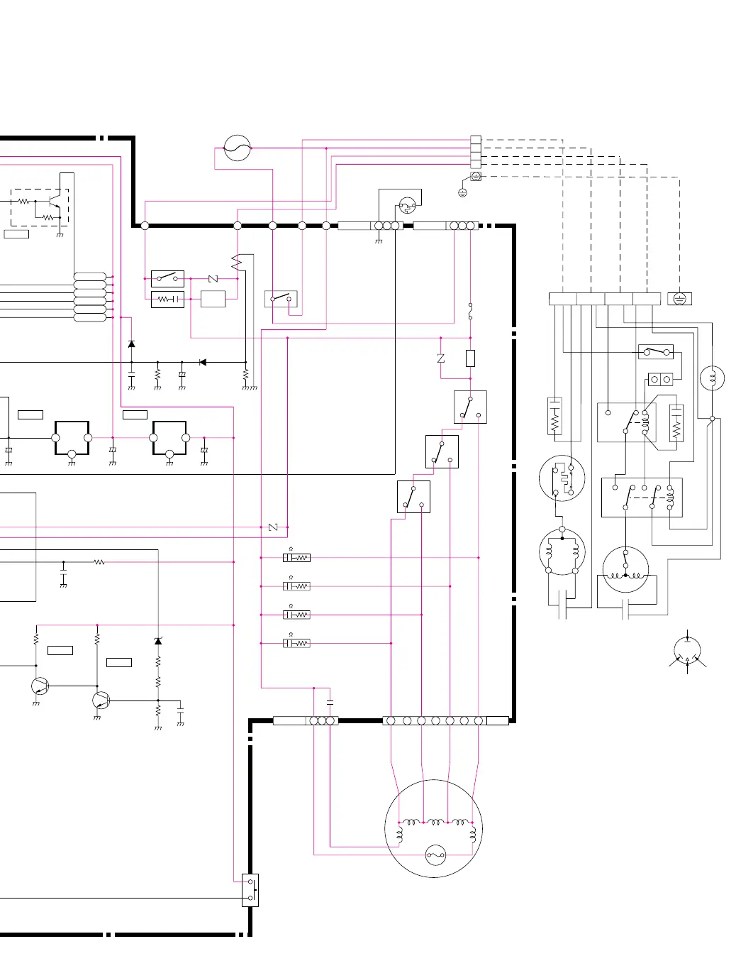
SCHEMATIC DIAGRAM 3/3
SW3
AUTO
RY-H
c
b
e
10k
4.7k
Q8
RY-SHI
RY-HOT
SSR2
78A05
IC4
G
IO
(NHG)
16V
100µ
C3
+
5V12V OI
G
IC5
C1
3300µ
35V
(NHG)
78N12H
+
+
R2
10k
C5
0.022µ
Q2
2SC2412KTX
c
e
b
R4
100k
C2
470µ
25V
(NHG)
b
e
c
2SC2412KTX
Q3
10k
R5
R44
10k
6.2k
R7
6.2k
R6
0.01µ
C7
ZD1
7.5EL1
(VH-1)
(GREEN)
YELLOW
BROWN
ORANGE
WHITE
RED
MOTOR
FAN
CN-FM7654321
32
BLUE
(GREEN)
CN-C 1
(VH-3)
CN-FUSE1 31
RY-PWR
FUSE
2.0A
AC
(WHT)
511U
ZNR2
SSR1
A56W2DEH1-5
RY-SHI
RY-H
CR1
0.022µ
RY-M
511U
ZNR1
CR2
CR3
CR4
120
120
0.022µ
120
0.022µ
120
0.022µ
1.5µ
400V AC
C-FM
REGULATOR REGULATOR
RELAY DRIVE
A55DC143XKTX
GENERATION
RESET SIGNAL
RESET SIGNAL
GENERATION
A56W2DEH1-5
511U
CT1
CWA40322
50/60Hz
SINGLE PHASE
AC 220-240V
4
3
2
1
A54MA723TA
D2
10k
R42
10µ
C20
+
51k
R43
0.01µ
C21
A54MA165TA5
D3
FM
(BLU)(RED)
HOT
ZNR3
CR5
RY-HOT
CWA00161
SSR2
RY-M
SSR1
16V
13CN-FUSE2
TEMPERATURE
FUSE
102°C
2 2
1
2
3
4
TERMINAL
BLACK
BLACK
CAPACITOR
ELECTROLYTIC
GRAY
4
1
PROTECTOR
OVER LOAD
YELLOW
CAPACITOR
RED
BLUE
COMPRESSOR
WHITE
FAN MOTOR
CAPACITOR
BLUE
RED
BLUE
3
1
4
2
8
7
YELLOW
6
5
BLUE
MAGNETIC RELAY
4
2
8
7
MAGNETIC RELAY
ORANGE
BROWN
CAPACITOR
ELECTROLYTIC
6
BLACK
BLACK
BLACK
TRS
BLACK
RED
GRAY
REVERSING VALVECOIL
BLACKBLACK
TRADE MARK
BLUE
RED
YELLOW
COPM. TERMINAL
GRAY
WHITE
BLACK
BLUE
512

Table of Contents