EasyManua.ls Logo

Panasonic NA-F60A6

Panasonic NA-F60A6
37 pages
To Next Page IconTo Next Page
To Next Page IconTo Next Page
To Previous Page IconTo Previous Page
To Previous Page IconTo Previous Page
Loading...
- 12 -
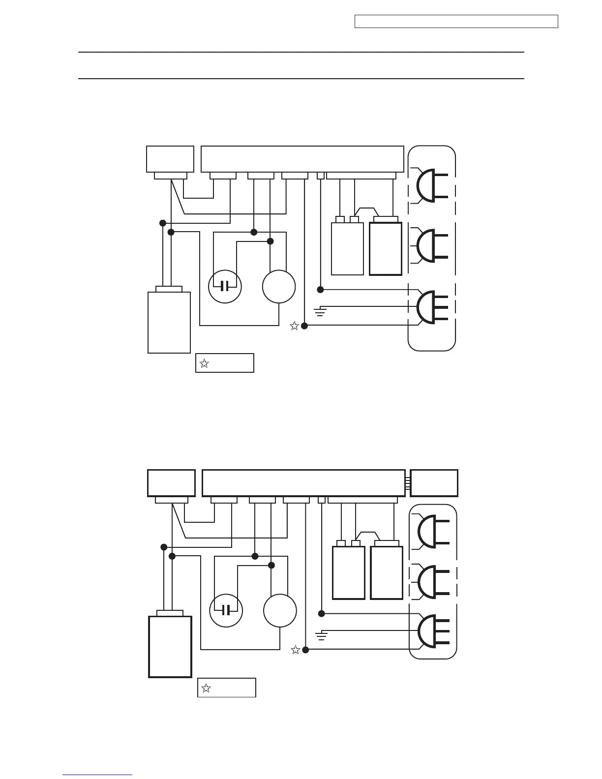
6. WIRING DIAGRAM
6.1 NA-F60A6 / NA-F70A6 / NA-F756A / NA-F70G6 / NA-F70G6P
6.2 NA-F70X6 / NA-F806X
NA-F60A6, F70A6, F756A, F70G6, F70G6P, F70X6, F806X
M
BROWN
GREEN / YELLOW
BLUE
CAPACITOR
GREY
YELLOW
YELLOW
YELLOW
PURPLE
YELLOW
WHITE
WHITE
PURPLE
RED
RED
RED
BLUE
BLUE
BLUE
BLUE
PINK
BLUE
BROWN
MOTOR
WV-7BR00
ELECTRONIC
CONTROLLER
FEED
VALVE
MOTORIZED
DRAIN
VALE
SAFETY
SW.
PRESSURE
SENSOR
ELECTRONIC CONTROLLER
M
BROWN
GREEN / YELLOW
BLUE
CAPACITOR
GREY
YELLOW
YELLOW
YELLOW
PURPLE
YELLOW
WHITE
WHITE
PURPLE
RED
RED
RED
BLUE
BLUE
BLUE
BLUE
PINK
BLUE
BROWN
MOTOR
WV-7BS00
FEED
VALVE
MOTORIZED
DRAIN
VALE
SAFETY
SW.
PRESSURE
SENSOR
ELECTRONIC CONTROLLER
CAUTION : DIFFERENT COLOUR CONNECTION
CAUTION : DIFFERENT COLOUR CONNECTION

Other manuals for Panasonic NA-F60A6

Related product manuals