EasyManua.ls Logo

Panasonic SA-HT720P - Page 47

Panasonic SA-HT720P
75 pages
To Next Page IconTo Next Page
To Next Page IconTo Next Page
To Previous Page IconTo Previous Page
To Previous Page IconTo Previous Page
Loading...
N
TO
DVD MODULE
CIRCUIT
(FP8101) ON
SCHEMATIC
DIAGRAM-1
PACK
TUNER
TO
TO
SENSOR
CIRCUIT
(CN9102) ON
SCHEMATIC
DIAGRAM-8
LD REV
LD FWD
CN2011
CN2010
TUN DO
TUN DI
TUN CK
T+9V
C2090 0.01
TUN SD
C2100 50V1
C2200 50V1
R2100 1K
R2200 1K
R2101 47K
C2101 3300P
TUN R
R2201 47K
C2201 3300P
TUN L
EECLK
EECS
VREF+
C2022 0.022
R2091 22K
C2021 50V330P
R2092 22K
C2020 50V330P
EEDA
4.7K
R2090
50V330
C2019
C3EBDG000052
IC2019
DET OUT
1
2
3
45
6
7
8
OUT L
OUT R
R2979 0
R2976 0
LOUT1
LOUT2
100K
R2107
C2107 50V3.3
R2206 1K
R2106 1K
C2207 50V3.3
C2099 50V4.7
B1GDCFGA0014
Q2026
R2874 56KR2873 27K
R2108 2.7K
R2208 2.7K
100K
R2207
50V4.7
C2106
LINE L
LINEOUT R
LINEOUT L
1K
R2872
MUTE L
50V4.7
C2206
B1GFGCAA0001
Q2100
LINE R
-7.5V
G
B
R
PY
CB B
CR R
S Y
S C
DVD A+5V
12K
R2157
50V10
C2157
DVD MIXL
12K
R2257
50V10
C2257
DVD MIXR
10K
R2156
10V1
C2156
DVDFL
10K
R2256
10V1
C2256
DVDFR
10K
R2300
50V10
C2300
DVDSL
10K
R2400
50V10
C2400
DVDSR
10K
R2500
DVDCNT
50V10
C2500
SUBW
2.7K
R2600
10V1
C2600
DVD MUTE
DVD D+5V
B1GBCFJN0021
Q2028
10k
R2895
DVD A+5V
D+1.2V
M+9V
DVD CLK
DVD CMD
DVD STAT
OPEN SW
J0JBC0000015
L2009
330
R2096
330
R2095
J0JBC0000015
L2008
LOAD
J0JBC0000015
L2007
B0ECKM000016
D2007
B0ECKM000016
D2006
B0ECKM000016
D2005
B0ECKM000016
D2004
10K
R2801
4.7K
R2099
330
R2800
B1GBCFJJ0039
Q2001
PWM
R-IN
GND
F-IN
VCC
VM
OUT1
RMF
VREF
OUT2
C0GAG0000007
IC2008
987654321
POSITION
PULSE
J0JBC0000015
L2006
J0JBC0000015
L2005
J0JBC0000015
L2004
DISC SENS
150
R2094
120
R2093
J0JBC0000015
L2003
TRV FWD
TRV REV
4.7K
R2097
330
R2098
B1GBCFJJ0039
Q2002
10K
R2802
C+9V
16V47
C2024
0.1
C2023
C0GAG0000007
IC2007
R-IN
GND
F-IN
VCC
VM
OUT1
RMF
OUT2
VREF
987654321
DGND
OPEN SW
DGND
PHT DRV
DGND
CAM SENS
DGND
LDNG MOTOR+
DGND
LDNG MOTOR-
DGND
1
2
3
4
5
6
7
8
9
10
11
DGND
POSTIN SENS
DGND
PULSE SENS
DGND
DSC SENS
DGND
PHT DRV
DGND
TRV+
TRV-
11
10
9
8
7
6
5
4
3
2
1
GND
CLK
DI
SD
LCH
DO/ST
RCH
DETECT
M+9V
GND
CN2002
10
9
8
7
6
5
4
3
2
1
VGND
PY/Y/G
VGND
CR/PB/B
VGND
CR/PR/R
YGND
Y
VGND
C
ADAC5V
MIXL
ADAC5V
MIXR
ADACGND
FL
ADACGND
FR
ADACGND
SL
ADACGND
SR
ADCGND
CENTER
ADACGND
SUBW
VREF
ZFLAG
DGND
DIGITAL
AUDIO
DGND
D+5V
DGND
D+5V
DGND
A+5V
AGND
A+5V
AGND
D+1.2V
DGND
D+1.2V
DGND
M+9V
MGND
M+9V
MGND
DSPCLK
CMD
STATUS
50
49
48
47
46
45
44
43
42
41
40
39
38
37
36
35
34
33
32
31
30
29
28
27
26
25
24
23
22
21
20
19
18
17
16
15
14
13
12
11
10
9
8
7
6
5
4
3
2
1
CN2004
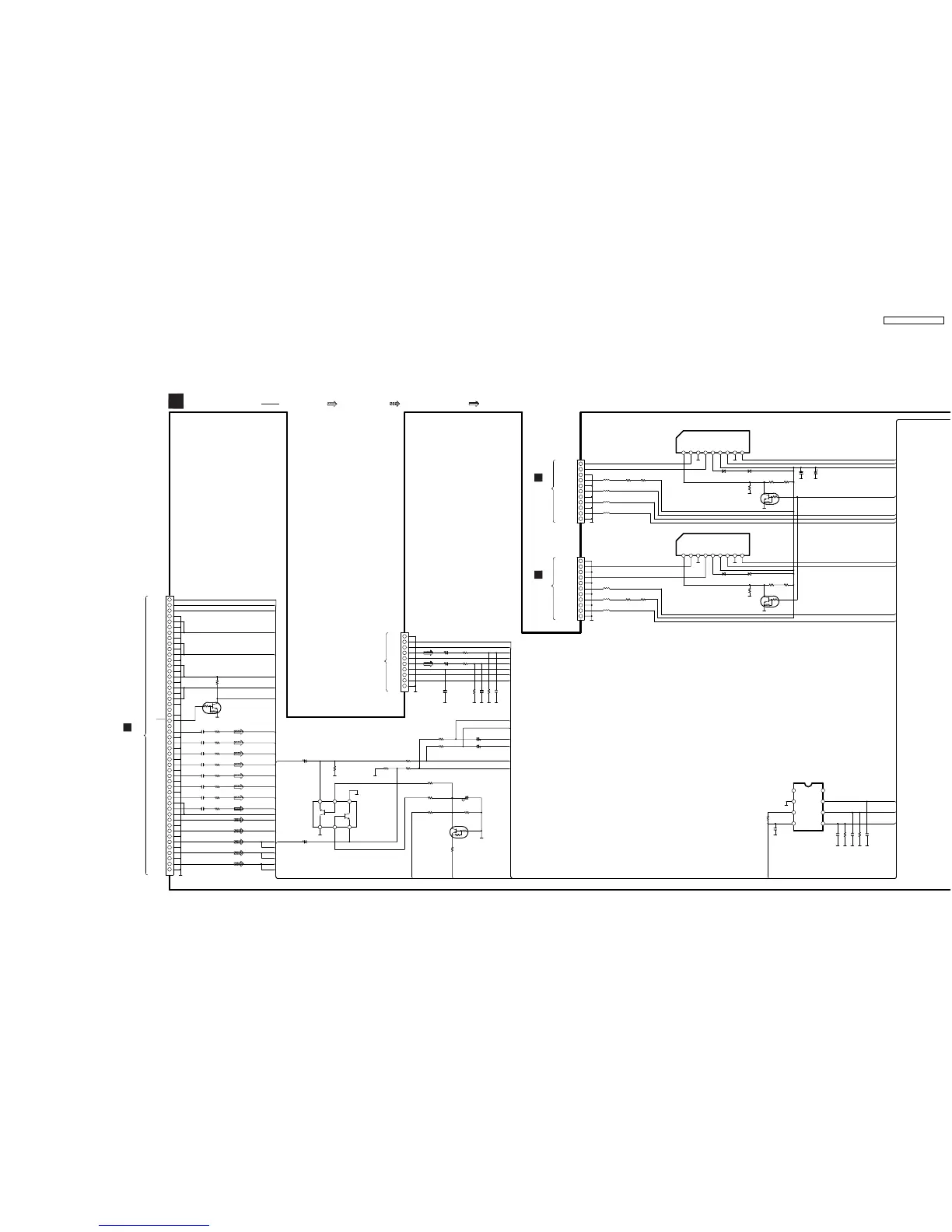
MAIN CIRCUIT
B
A
G
TO
LOADING
MOTOR
CIRCUIT
(CN9003) ON
SCHEMATIC
DIAGRAM-8
E
: +B SIGNAL LINE : MAIN SIGNAL LINE : DVD(VIDEO) SIGNAL LINE : FM/AM SIGNAL LINE
Muting Switch
Motor Drive(Tray)
Motor Drive(Loading)
EEPROM IC
Motor Drive
Motor Drive
Muting Switch
Muting Control
SCHEMATIC DIAGRAM-3
SA-HT720P / SA-HT720 PC
47

Table of Contents

Related product manuals