EasyManua.ls Logo

Panasonic SA-PMX100EG - Panel Circuit

Panasonic SA-PMX100EG
74 pages
Print Icon
To Next Page IconTo Next Page
To Next Page IconTo Next Page
To Previous Page IconTo Previous Page
To Previous Page IconTo Previous Page
Loading...
56
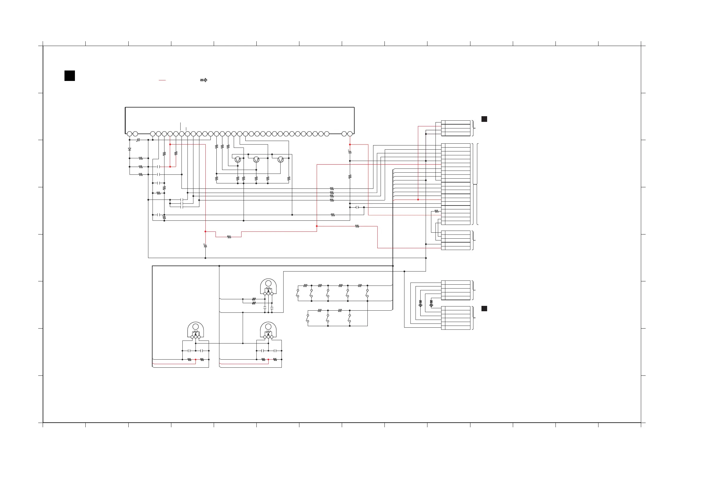
12.5. PANEL CIRCUIT
A
1
2 3 4 5 6 7 8 9 10 11 12 13 14
1 2 3 4 5 6 7 8 9 10 11 12 13 14
C
D
B
E
G
H
F
A
C
D
B
E
G
H
F
F
PANEL CIRCUIT
SCHEMATIC DIAGRAM - 4
SA-PMX100EG PANEL CIRCUIT
G
TO
IR SENSOR
CIRCUIT (ZJ920)
IN SCHEMATIC
DIAGRAM - 5
H
TO
HEADPHONE
CIRCUIT (P8000)
IN SCHEMATIC
DIAGRAM - 5
: +B SIGNAL LINE
: AUDIO SIGNAL LINE
R9261 100
R9262 100
BAS_JOGB
BAS_JOGA
TRE_JOGA
2
1
4
3
ZJ9200
C9256
16V33
R9263 100
R9255 100
R9258 100
R9257 100
C9258
6.3V100
R9256 100
Q9201
Q9201,Q9202,Q9203
B1ABCF000176
SWITCH
Q9202Q9203
TRE_JOGB
KEY1
DGND
PW_STBY3V3
0
LB9203
0.1
C9257
VOL_JOG
KEY2
0R9211
7
9
10
15
18
19
16
17
12
11
14
13
8
4
1
3
2
6
5
21
20
CN9200
R9267
27K
R9268
27K
R9269
27K
R9266
100K
R9265
100K
R9264
100K
0LB9201
LB9202 0
S9203
R9218
3.9K
S9207
STOP SELECTOR
S9204
S9208
S9206
KEY1
DGND
R9221
2.2K
2
3
1
5
4
2
4
3
1
6
5
CN9202
P9200
S9210
S9209
KEY2
S9205
0R9313
2
3
1
5
4
CN9201
6.8K
R9217
2.2K
R9216
3.9K
R9220
18K
R9215
R9272 39
R9271 47
R927047
10
R9254
33K
R9273
C9253
0.1
C9251
0.1
1
C9252
10R9253
B0ECKP000002
D9201
C9255
16V33
C9262 220P
C9261
220P
C9263 220P
38 5 167289272829303132333435 11121314151617 101819212223242526 2039
R9252 30K
C9259
50V10
C9254
0.1
HP_DET
PLAY/PAUSE
DGND
VH
SDA
SCL
GND
VDD
KEY2
KEY1
DGND
DGND
BLUETOOTH
- PAIRING
FWDREW
F+
RCH
HP_GND
HP_GND
OPEN/ClOSE
LCH
POWER
FL_CL(FLD_CLK)
REM_IN
D3.3V
TREBLE_JOGA
LCH
HP_GND
RCH
HP_DET
HP_GND
SMPS GND
NFC_SCL
NFC_SDA
NFC_IRQ
NFC_IRQ
F+ (5.2V)
TREBLE_JOGB
BASS_JOGB
VOL_JOG
BASS_JOGA
FL_CE(FLD_CS)
FLVHGND
PW_STBY3V3
FL_DI(FLD_DA)
REM_IN
STBY_3.3V
FLD_RST
Q13G
Q14G
CS
TSA
VH
F-
NC
VDD
OSC
PGND
RESET
LGND
TSB
DA(DIN)
CP(CLK)
13G
NC
NC
NC
NC
NC
NC
NC
NC
NC
NC
NC
NC
NC
NC
NC
15G
14G
Q15G
A2BC00000083
FL DISPLAY
DP9200
10K
R9204
VOL_JOG
BAS_JOGA
PW_STBY3V3
10K
R9203
TRE_JOGA
DGND
PW_STBY3V3
C9211
100P
C9210
100P
10K
R9205
10K
R9206
BAS_JOGB
TRE_JOGB
C9215
100P
C9214
100P
C9200
100P
C9202
100P
R9201 22K
R9202 12K
1 2 312 3
VR9201
BASS
VR9202
TREBLE
1 2 3
VR9200
VOLUME
TO MAIN P.C.B.
(CN8001)
TO NFC P.C.B.
TO MAIN P.C.B.
(CN4300)
21
1

Table of Contents

Related product manuals