EasyManua.ls Logo

Panasonic SB-FS730 - Page 115

Panasonic SB-FS730
158 pages
Print Icon
To Next Page IconTo Next Page
To Next Page IconTo Next Page
To Previous Page IconTo Previous Page
To Previous Page IconTo Previous Page
Loading...
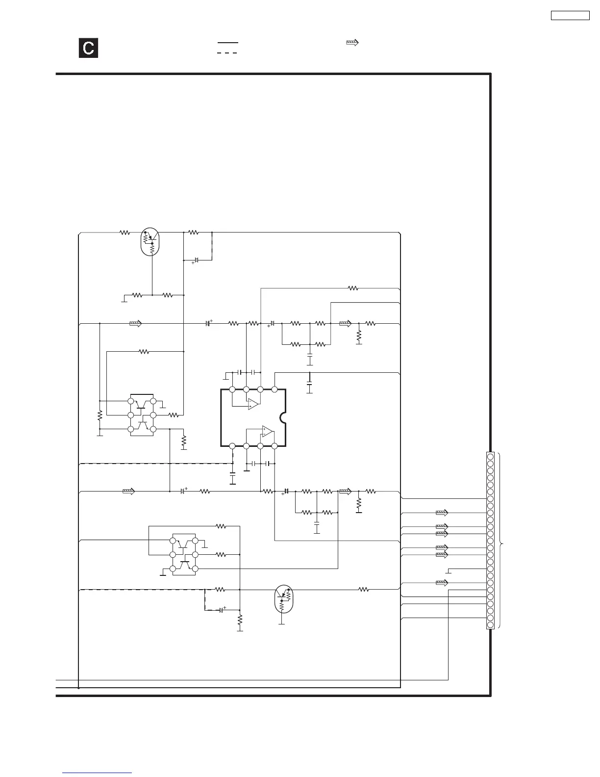
ASP CIRCUIT
SCHEMATIC DIAGRAM-25
: +B SIGNAL LINE
: -B SIGNAL LINE
: MAIN SIGNAL LINE
CN2000
TO
ACTIVE
SUBWOOFER
UNIT
SB-WA833PP-S
16
17
18
19
20
21
25
23
22
24
1
2
3
4
5
6
14
12
10
8
7
9
11
13
15
PCONT
PCONT
SUBWOOFER
SW_A
CENTER
CENTER
SURR R
RS
SURR L
LS
FRONTR
FRONTR
FRONT L
OUTPUT GND
FRONTL
MUTE_H
DGND
HIC_MUTE
SYS_6V
DCDET
SYS6V
DC_DET
HP_L
IN4
C2152
180P
C2151
100P
R2146
33K
R2153
0
MUTE_HP
R2266
1K
R2145
6.8K
C2150
50V1
+7.5V
C2154
0.01
-7.5V
R2168
22K
Q2105
KRA110STA
MUTING SWITCH
W851
0
R2167
12K
C2168
50V3.3
-7.5V
IC2013
IC2013
C0AABB000125
OP AMP IC
87
21
6
3
5
4
C2254
0.01
4
5
6
1
2
3
R2255
100K
R2154
2.2K
R2155
100K
R2254
2.2K
Q2200
B1GFGCAA0001
MUTING SWITCH
W866
0
OUT_FL
HP_RA
OUT_FR
HP_R
R2246
33K
R2247
22
R2249
82
R2248
22
R2250
82
R2253
0
R2245
6.8K
C2250
50V1
C2253
16V100
C2153
16V100
C2251
100P
1
2
3
4
5
6
R2152
2.7K
R2252
2.7K
Q2102
B1GFGCAA0001
MUTING SWITCH
C2252
180P
HP_RA
FIN3
C2255
1000P
R2147
22
R2149
82
R2148
22
R2150
82
C2155
1000P
R2251
4.7K
R2151
4.7K
MUTE_F
R2166
1.2K
R2267
56K
Q2201
KRA110STA
MUTING SWITCH
R2268
27K
-7.5V
C2267
50V4.7
115
SA-HT833VP

Table of Contents