EasyManua.ls Logo

Panasonic SB-WA730GCP

Panasonic SB-WA730GCP
32 pages
To Next Page IconTo Next Page
To Next Page IconTo Next Page
To Previous Page IconTo Previous Page
To Previous Page IconTo Previous Page
Loading...
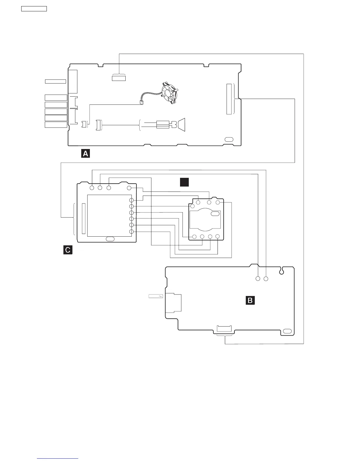
13 Wiring Connection Diagram
15
.
.
.
.
.
.
.
.
.
1
1
.
.
.
.
.
.
.
.
.
15
H503/W503
-
+
SOLDER SIDE
SOLDER SIDE
SOLDER SIDE
110V
/127V
/220-230V
/240V
50/60Hz
AC IN
7. . . . . .1
JK500
CN502
TO MAIN UNIT
CENTER
SPEAKER
SURROUND
RIGHT SPEAKER
FRONT RIGHT
SPEAKER
FRONT LEFT
SPEAKER
SURROUND
LEFT SPEAKER
POWER P.C.B.
AC INLET
P.C.B.
TRANSFORMER P.C.B.
SPEAKER
WOOFER
25
.
.
.
.
.
.
.
1
24
.
.
.
.
.
.
2
CN501
JK502
JK501
2
1
1
2
3
CN506
CN507
7. . . . . .1
CP502
CN503
4
.
.
2
3
.
.
1
6
.
.
2
5
.
.
1
4
FAN
VOLTAGE
SELECTOR P.C.B.
D
W4
(YEL)
W9
(WHT)
W6
(VIO)
W7
(LBLU)
W3
(GRY)
W10
(ORG)
W5
(RED)
W8
(BLK)
PbF
PbF
SOLDER SIDE
PbF
PbF
W2
(BLU)
W1
(BRW)
W2
(BLU)
W1
(BRW)
W9
(WHT)
W5
(RED)
W10
(ORG)
W3
(GRY)
W4
(YEL)
W6
(VIO)
W7
(LBLU)
W8
(BLK)
T501
S500
SB-WA730GCP
24

Related product manuals