EasyManua.ls Logo

Payne PG9MXA - Control Center and Combustion Air Pipe Assembly; Control Center Features and Setup; Combustion Air Pipe Assembly Procedures

Payne PG9MXA
62 pages
Print Icon
To Next Page IconTo Next Page
To Next Page IconTo Next Page
To Previous Page IconTo Previous Page
To Previous Page IconTo Previous Page
Loading...
34
TEST / TWIN
HUM
PLT
SEC-2 SEC-1
COM 24VAC
PL1
W2 Y DHUM G COM W/W1 Y/Y2 R
24V
FUSE 3-AMP
EAC-2
EAC-1
L1 BL-1 PR-1
L2
COM
HI HT
COOL
LO HT
SPARE 2 SPARE 1
24V MTR
TAPS
BLOWER SPEED
TERMINALS
115-VAC (L2)
NEUTRAL
CONNECTIONS
LED OPERATION
& DIAGNOSTIC LIGHT
3-AMP FUSE
24-V THERMOSTAT
TERMINALS
SET UP SWITCHES
LOW HEAT ONLY
AND BLOWER
OFF-DELAY
TWINNING AND/OR
COMPONENT TEST
TERMINAL
ACRDJ - AIR CONDITIONING
RELAY DISABLE JUMPER
HUMIDIFIER TERMINAL
(24 VAC 0.5 AMPS MAX)
TRANSFORMER
24 VAC CONNECTIONS
PL1-LOW VOLTAGE
MAIN HARNESS CONNECTOR
PL2 - HOT SURFACE
IGNITOR INDUCER
MOTOR CONNECTION
115 VAC
BLOWER POWER (BL1)
CONNECTION
115 VAC LINE (L1)
CONNECTION
LHT
OFF
DLY
ON
OFF
1 2 3
IDR
HSIR
IDM
IHI/LOR
PL2
1
HSI HI LO
1
A08344
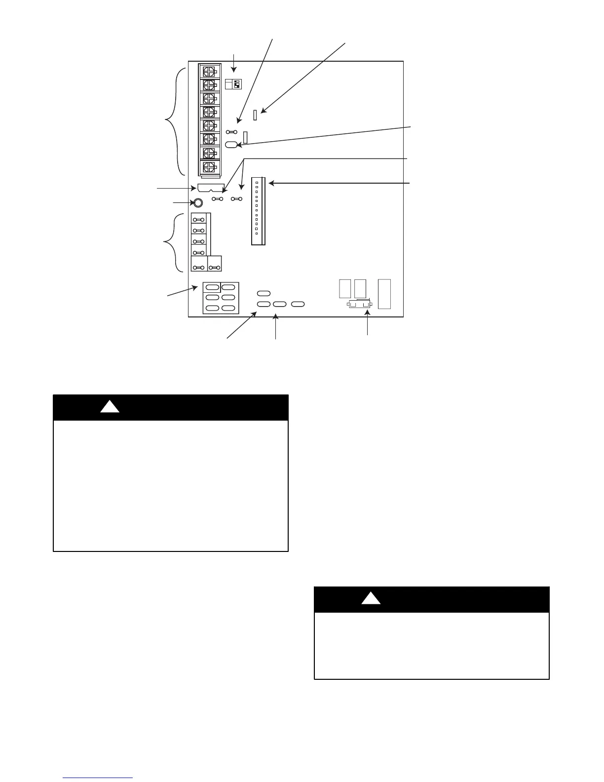
Fig. 37 -- Contro l Center
UNIT CORROSION HAZARD
Failure to follow this warning could result in personal injury,
death or property damage.
Combustion air must not be taken from inside structure
because inside air is frequently contaminated by halogens,
which include fluorides, chlorides, bromides, and iodides.
These elements are found in aerosols, deter gents, bleaches,
cleaning solvents, salts, air fresheners, adhesives, paint, and
other household products. Locate combustion-air inlet as far as
possible from swimming pool and swimming pool pump
house.
CAUTION
!
NOTE: All pipe joints must have cemented attachment of
combustion-air inlet pipe to inlet housing connection, since it
may be necessary to remove pipe for servicing.
Assembly of Combustion Air Pipe (Non-Direct Vent/1-Pipe
System ONLY)
1. Permanently install perforated disk assembly
(factory-supplied in loose p arts bag) in combustion-air
elbow using RTV or by cementing, as shown in Fig. 39.
For 120,000 Btuh size units only: separate the 2 halves of
perforated disk assembly and u se only the shouldered
disk half.
2. Determine the length of straight portion of combustion-air
inlet pipe from Fig. 39.
3. Cut field-supplied 2-in. (51 mm) diameter PVC pipe to
length as determined per Fig. 39.
4. Permanently attach elbow/perforated disk assembly to
straight portion of pipe using RTV o r by cementing as
shown in Fig. 39.
Assembly of Combustion Air Pipe (Direct Vent-2-Pipe
System ONLY)
Determine combustion-- air and vent pipe diameter.
1. Using Table 13, individually determine the diameter of the
combustion -- air and vent pipe allowed. If different, pick
the larger of these two d iameters and use this diameter for
both combustion--air vent pipes.
2. When installing vent systems of short pipe length, use the
smallest allowable pipe diameter. Do not use pipe s ize
greater than required or incomplete combustion, flame
disturbance, or flame sense lockout may occur.
NOTE: Do not count elbows or pipe sections in terminations or
within furnace (All elbows shown in Fig. 44 and Fig. 45 are not
to be counted).
UNIT MAY NOT OPERATE
Failure to follow this caution may result in intermittent
furnace operation.
When installing combustion air and vent system of short pipe
length, the smallest allowable pipe diameter must be used.
CAUTION
!
NOTE: A 2-in. (51 mm) diameter pipe must be used within
furnace casing. Make all pipe diameter transitions outside furnace
casing per Fig. 41.
3. If required per Table 13, insert perforated disk assembly
(factory-supplied in loose parts bag) in intake housing
where combustion air pipe will be connected. If half disk
set is required, install only shouldered disk half.

Related product manuals