EasyManua.ls Logo

Pelltech PV20a - Annex 1 Electrical Diagram

Pelltech PV20a
43 pages
Print Icon
To Next Page IconTo Next Page
To Next Page IconTo Next Page
To Previous Page IconTo Previous Page
To Previous Page IconTo Previous Page
Loading...
PV20a / PV30a pellet burner
page 36/ 41
DK9902A1 www.pelltech.eu
edge of controller. In one extreme the screen displays nothing and in other extreme
screen is filled with black retangles.
Empty screen,
no backlights
No mains supply.
- Safety thermostate turned burner off due to backburn (pt 5.8.2). Reset thermostate.
- Fuse F5 is blown (only for controller SBB ver3.2). Replace fuse (4.8.3).
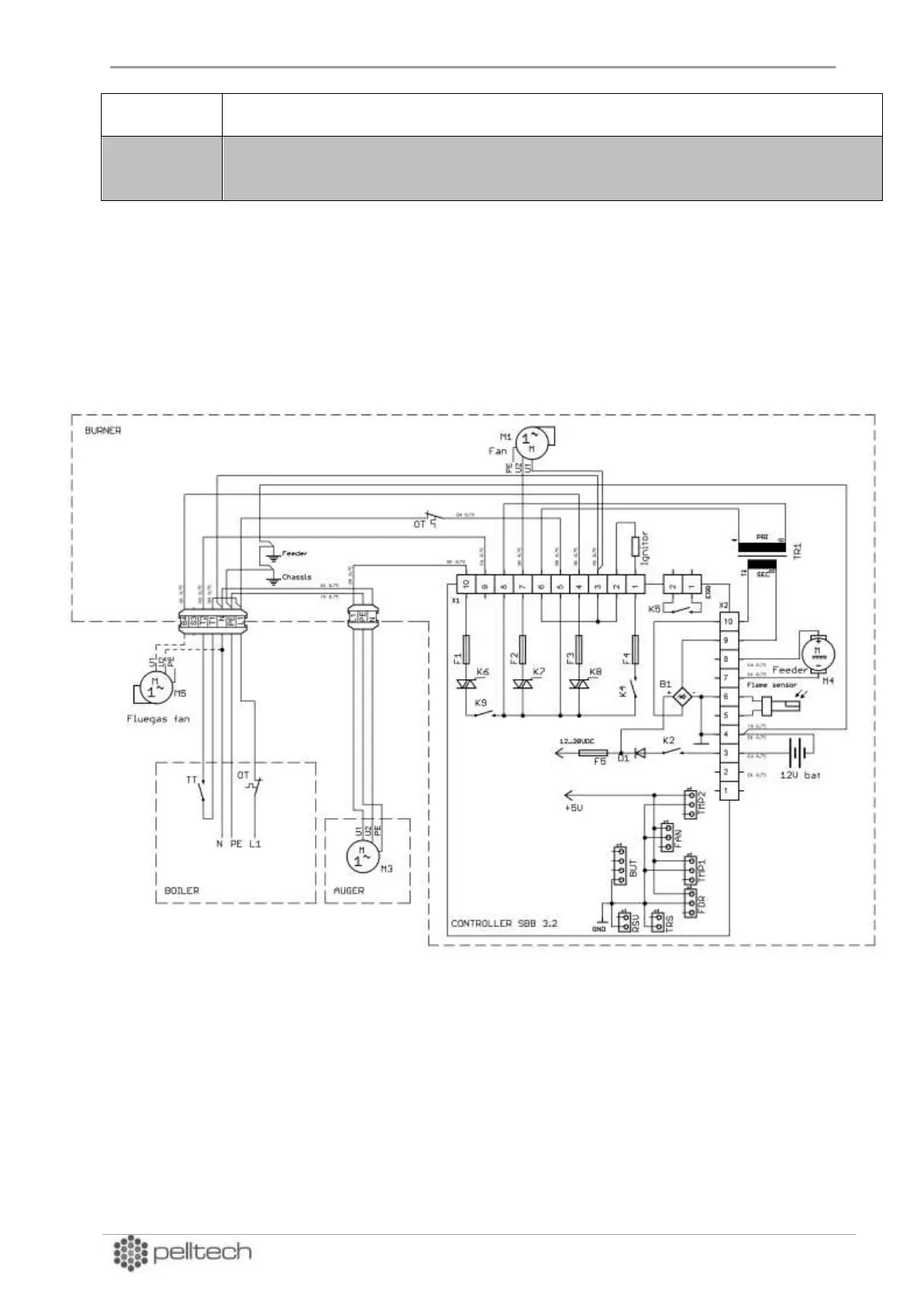
8 Annex 1 Electrical diagram
SBB - Controller
X1, X2 connector terminals
Chassis Earthing terminal of housing
TR1 - Transformer
M1 Fan motor
Bat 12V battery
M3 External auger motor Linear drive motor
(not in PV20a/30a)
RSV Fuel level receiver
Figure 22 Burner’s electrical diagram
If error appears the burner is switched off and text of error is displayed in screen of user interface. In order
to start burner the error message has to be canceled i.e. burner restarted. For that keep OK button down
for 3 seconds or go to main menu and in BURNER menu change OFF to ON.

Related product manuals