EasyManua.ls Logo

Perfect Vision PV-SFA - Mount Classification Identification Cont

Perfect Vision PV-SFA
20 pages
Print Icon
To Next Page IconTo Next Page
To Next Page IconTo Next Page
To Previous Page IconTo Previous Page
To Previous Page IconTo Previous Page
Loading...
3/8"
3/8"
4 1/2"
1"
AA
AA
6"
6"
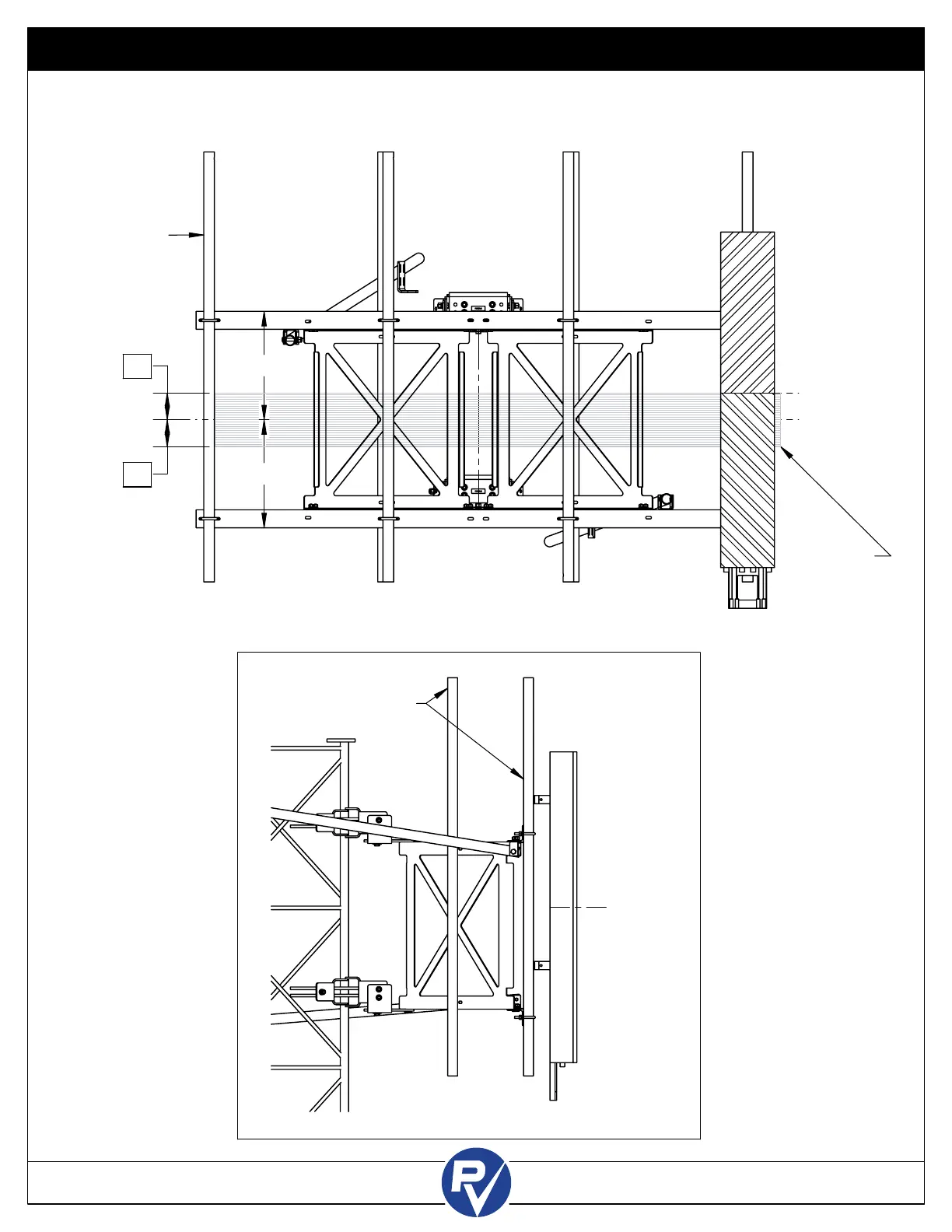
SFA MOUNT
C
L
ANTENNA
C
L
PV-SFA-B MOUNT & ANTENNA
C
L
- FRONT VIEW
EQUAL
EQUAL
6"
6"
ANTENNA PIPE
PLACEMENT
DOES NOT
AFFECT MOUNT
C
L
ALLOWABLE
ADJUSTMENT
RANGE MEASURED
FROM MOUNT
C
L
POSITION OF VERTICAL
MOUNTING PIPE DOES
NOT AFFECT MOUNT
C
L
Step 1 Instructions
MOUNT CLASSIFICATION INFORMATION:
STANDARDS: TIA-222-G, TIA-222-H, TIA-TSB-5053
MAX STRUCTURE HEIGHT: 400ft
DESIGN WIND SPEED: 120mph 3-Second Gust
STRUCTURE CLASS: I OR II
EXPOSURE CATEGORY: B OR C
TOPOGRAPHIC CATEGORY: 1
DESIGN WIND PRESSURE: 135psf
DESIGN WIND PRESSURE (ICED): 15psf
DESIGN ICE THICKNESS (RADIAL): 2.75"
MAXIMUM ALLOWABLE OFFSET (NO COLLAR MOUNTS PRESENT):
IF ANTENNA PIPES ARE OFFSET, THIS DOES NOT AFFECT THE LOCATION OF THE MOUNT CENTERLINE.
IN THIS EXAMPLE THE MAXIMUM OFFSET FACTOR VALUE WILL BE [6] FROM TABLE 1.
MOUNT
C
L
SIDE VIEW DETAIL
GALVANIZED
3529.69
MULTIPLE
MOUNT CLASSIFICATION IDENTIFICATION REFERENCE PAGES
www.perfect-vision.com
PV-SFA-INS-01-R6
1-844-887-6723
19 OF 20