EasyManua.ls Logo

Perfecta 76 UC - Decompression

Perfecta 76 UC
32 pages
Print Icon
To Next Page IconTo Next Page
To Next Page IconTo Next Page
To Previous Page IconTo Previous Page
To Previous Page IconTo Previous Page
Loading...
1/01 E Service Instructions 27
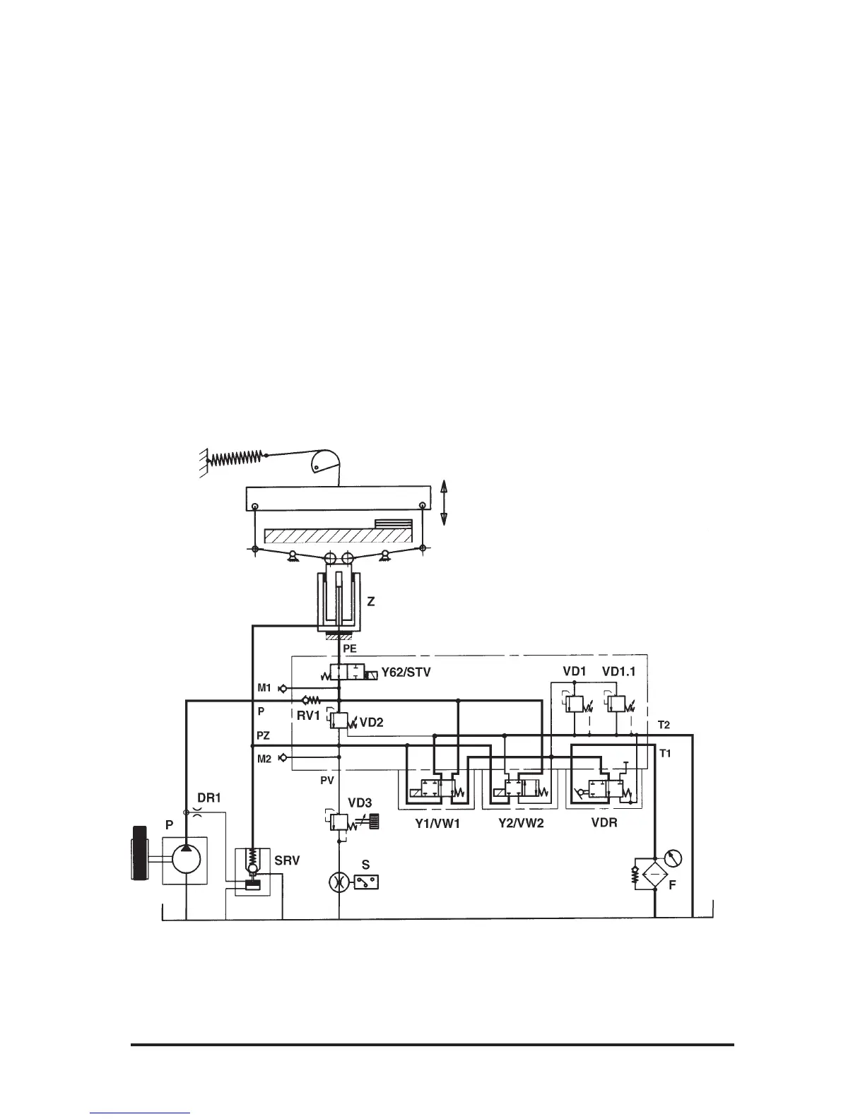
Decompression
(Fig. 33)
After the knife has cut through,
the computer control system turns
off Y1/VW1 which then goes open.
The pressure existing in the cylin-
der chamber can thus relax. The
oil flow from the pump returns to
the tank via VW1, VDR and F.
Fig. 33

Related product manuals