EasyManua.ls Logo

Philips 32” LCD TV - Video;Audio Block Diagram

Philips 32” LCD TV
59 pages
Print Icon
To Next Page IconTo Next Page
To Next Page IconTo Next Page
To Previous Page IconTo Previous Page
To Previous Page IconTo Previous Page
Loading...
9-2
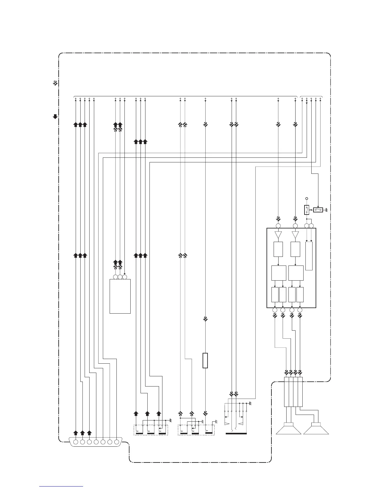
2. Video/Audio Block Diagram
PL14.12BLVA
DIGITAL MAIN CBA UNIT
IC3803 (AUDIO AMP)
Q3821
Q3822
P-ON+3.3V
LCD-P-ON
COMP-DET
TO SYSTEM CONTROL
BLOCK DIAGRAM
SP3802
SPEAKER
R-CH
CN3801
SP3801
SPEAKER
L-CH
AMP(L)-OUT
AMP(R)-OUT
3
SP(R)-
4
SP(R)+
2
SP(L)-
1
SP(L)+
DIF-OUT1
DIF-OUT2
IF-AGC
TO DIGITAL
SIGNAL PROCESS
BLOCK DIAGRAM
JK3713
PC-RGB
-IN
1
2
3
13
14
15
12
VGA-R-IN
VGA-G-IN
VGA-B-IN
VGA-HSYNC
VGA-VSYNC
VGA-SCL
VGA-SDA
TU3001
DIF-OUT1
6
DIF-OUT2
7
(TUNER UNIT)
IF-AGC
5
VIDEO SIGNAL
AUDIO SIGNAL
1
2
3
25
23
CONTROL LOGIC
DRIVE
DRIVE
PWM
LOGIC
18
20
DRIVE
DRIVE
PWM
LOGIC
12
POWER
LIMIT
POWER
LIMIT
AUDIO(L)-IN
AUDIO(R)-IN
JK3706
DIGITAL
AUDIO-OUT
(COAXIAL)
Q3709
BUFFER
AUDIO(L)-IN
AUDIO(R)-IN
HP(R)
HP(L)
SPDIF
COMPONENT
-Y/VIDEO-IN
COMPONENT
-Pb-IN
COMPONENT
-Pr-IN
JK3701
COM-VIDEO-Y/VIDEO-IN
COM-VIDEO-Pr-IN
COM-VIDEO-Pb-IN
HP-DET
JK3801
HEADPHONE
JACK

Related product manuals