EasyManua.ls Logo

Philips 32” LCD TV - Wiring Diagram

Philips 32” LCD TV
59 pages
Print Icon
To Next Page IconTo Next Page
To Next Page IconTo Next Page
To Previous Page IconTo Previous Page
To Previous Page IconTo Previous Page
Loading...
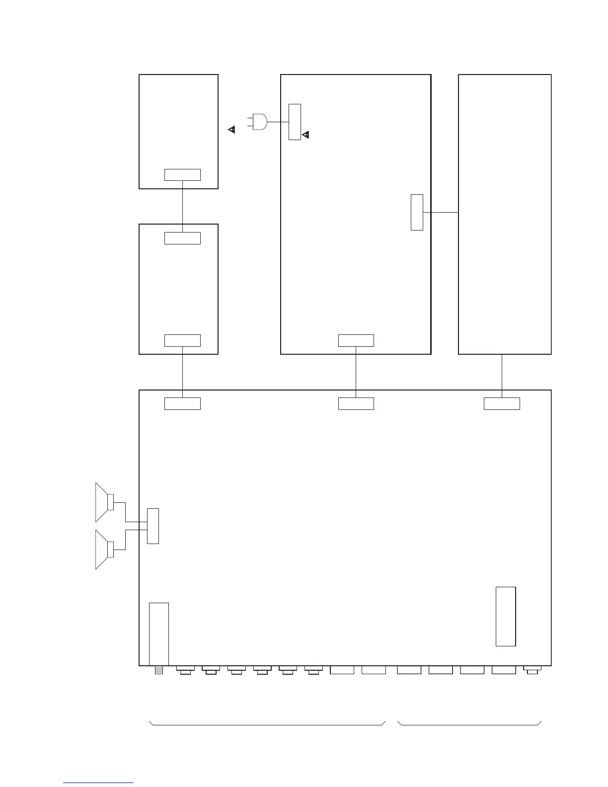
PL14.12WI11-1
WIRING DIAGRAM
23
1
CN501
1
23
CN3601
1
30
CN3904
9
1
CN4052
1
9
CN3105
12
CN1001
BW
CN601
POWER SUPPLY CBA
IR SENSOR CBA UNIT
LCD PANEL ASSEMBLY
AC CORD
CL3701
CL3006
CL3101
1
2
CN4001
1
2
CN4051
FUNCTION CBA UNIT
CL3102
DIGITAL MAIN CBA UNIT
ETHERNET
JACK
WIRELESS
LAN MODULE
14
CN3801
SP3801
SPEAKER
L-CH
SP3802
SPEAKER
R-CH
CL3801
TUNER UNIT
COMPONENT
-Y/VIDEO-IN
COMPONENT
-Pb-IN
COMPONENT
-Pr-IN
AUDIO(L)-IN
AUDIO(R)-IN
REAR
DIGITAL
AUDIO-OUT
(COAXIAL)
HDMI-
CONNECTOR-1
HDMI-
CONNECTOR-2
HDMI-
CONNECTOR-3
PC-RGB-IN
USB JACK
SIDE
HEADPHONE
JACK

Related product manuals