EasyManua.ls Logo

Philips 32PFL7803D/10 - SSB: Pacific 3

Philips 32PFL7803D/10
152 pages
Print Icon
To Next Page IconTo Next Page
To Next Page IconTo Next Page
To Previous Page IconTo Previous Page
To Previous Page IconTo Previous Page
Loading...
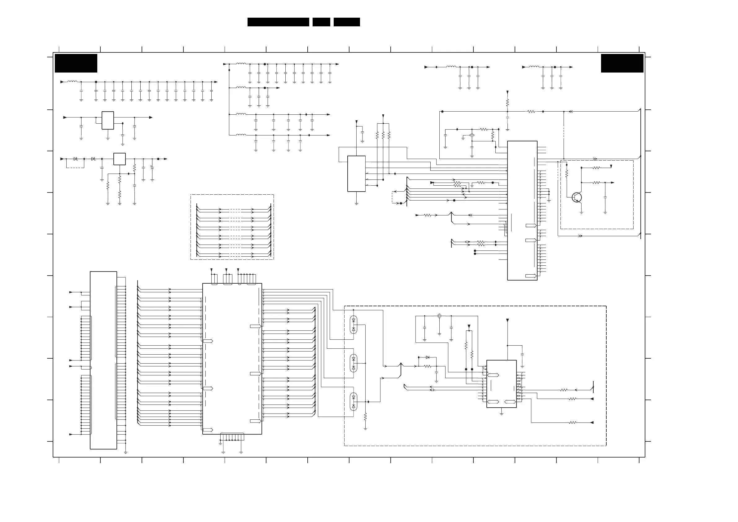
Circuit Diagrams and PWB Layouts
95Q528.2E LB 7.
SSB: Pacific 3
VIA
GND_HS
SSCG_GND
PLL2_GNDA
PLL1_GNDA
PLL2_GNDD
PLL1_GNDD
PLL1_VCCA_2V5
SSCG_VCC_1V5
PLL2_VCCD_1V5
PLL2_VCCA_2V5
VDD_1V5
SUPPLY
VDD_3V3
VDD_2V5
PLL1_VCCD_1V5
GND
D
C
S
W
HOLD
VSS
Q
VCC
1A
CMPREF
CMP1
T1
1
6
INT
CIN
SDA
T0
P1<0:7>
CLKOUT
7
CMP2
X1
1B
2A
2B
VDD
RST
0
SCL
RXD
TXD
VSS
P0<0:7>
X2
P2<0:1>
OUTIN
INH BP
COM
6
5
4
3
2
1
0
3
2
1
SCL
SDA
0
PWM
GPIO
A<19:0>
PD
PE
PE<7:9>
PF<0:9>
D
0
TRIGOUT
2
T1
TRST
TMS
TDI
TCK
MINTN
DEO
1
0
HSO
MSDA
MSCL
SSDA
00
01
02
03
04
05
VSO
CLKO
TDO
1
2
3
4
5
6
7
TXD
RDN
RXD
9
8
7
6
5
4
PSEN
WRN
SSCL
OSC_Z
OSC_CLK_I
RSTN
SI
SCK
SO
CS
VS
I
VDD_TX_3V3
3
GND
N
N
P
N
P
N
P
N
7
6
5
4
ECLK
ERX4
VDD_RX_1V5
B<9:0>
G<9:0>
R<9:0>
PWM
PA<0:9>
OTX0
N
P
N
P
CLKI
N
P
OTX1
N
OTX2
HSI
N
OTX3
P
N
P
P
N
P
N
P
N
P
ETX1
N
P
PB<0:9>
ETX3
N
P
ETX2
N
N
P
PC<0:9>
N
ERX3
P
VDD_TX_1V5
N
P
P
ETX4
N
P
ETX5
ORX0
ORX1
ORX2
OCLK
ORX3
ORX4
ERX0
ERX1
ERX2
P
VDD_RX_3V3
8
P
N
P
OTX4
N
P
OTX5
ETX0
N
P
COM
OUTIN
CTRL2-STBY_BACKLIGHT-CTRL_RESET-P3
4K7
2K2
3GH0
5GE2 A1
2GK4 A7
2GK5 A7
3GG0 C2
3GG1 D9
3GG2-3 E11
3GG2-4 E11
3GG6 H13
3GG7 H13
3GG9 I13
3GH0 H9
3GH2 I8
3GH3 C2
3GH4 C2
3GH5 D2
5GE0 A10
5GE1 A12
107 8
2GL2 B10
2GL3 B10
3GB8 C13
3GB9 C13
3GC8 C13
3GE0 A11
3GE1 B12
3GE3 B11
3GE4 B11
3GE5-1 B8
3GE5-3 B8
3GF0-1 C10
3GF0-2 C10
3GF0-3 G10
3GF0-4 G10
2GH7 B6
2GH8 B6
119
2 3 45678 91011
RES FOR /22M
I
FGE5 D10
FGE8 A6
FGE9 C3
IGF5 A5
IGHG G9
IGH0 C2
IGHE A12
IGHH I8
IGHD B11
IGH8 C2
IGH9 A10
IGHA B2
IGHB C8
IGHC C8
5GE3 A5
CODE 9322 247 80671 IN ECM
5GE4 A5
9GE5-1 D5
9GE5-2 D5
9GE5-3 D5
9GE5-4 D5
9GE6-1 E5
9GE6-2 E5
9GE6-3 D5
9GE6-4 D5
9GE7-1 E5
9GE7-2 E5
9GE7-3 E5
9GE7-4 E5
9GE8 C13
FGE0 A10
FGE1 A12
FGE4 A5
RES
3GF1-4 B8
2GK6 A7
2GL1 A1
5GE5 B5
5GE6 B5
6GE0-1 G8
6GE0-2 H8
6GE1 H9
6GE3 I8
6GE6 C1
6GE7 C1
7G65 D13
7GE0 G11
7GE1 C7
7GE2-1 F4
7GE2-2 B12
7GE2-3 E1
7GE3 A2
3GF1-1 C11
PACIFIC 3
9GE1 D9
9GE4 C1
FOR AMBILIGHT ONLY
IGH7 C1
BYPASS
FGE3 A10
FGE2 A1
RES
12 13 14
2GF8 A6
2GF4 A5
2GH9 B6
2GJ0 B11
2GJ1 G12
2GJ2 H10
2GJ3 G10
2GJ4 G9
2GJ5 B1
2GJ6 B2
2GJ7 B2
2GK0 C1
2GK1 C2
2GK2 C3
2GK3 C2
G
H
2GF6 A5
2GF7 A6
2GF5 A5
7GE5 B2
9GE0 B13
RES
FGF2 E10
FGF3 E10
FGG0 C11
FGG1 D9
FGG3 H10
FGG4 H11
IGA2 C9
IGA3 B7
IGA4 B7
IGA7 C13
IGA8 C13
IGE0 B10
IGE2 B11
IGE8 E11
IGE9 E11
2GE2 A2
2GE3 A2
2GE4 A2
A
B
C
D
E
F
G
H
I
A
B
C
D
E
F
2GE5 A2
2GE6 A3
2GE7 A3
2GE8 A3
2GE9 A3
2GF0 A3
2GF1 A4
2GF2 A4
2GF3 A4
BACKLIGHT BOOST
RES
1
2GF9 A6
2GG0 A10
2GG1 A10
2GG2 A11
2GG3 A12
2GG4 A12
2GG5 A13
2GG6 A6
2GG7 A5
2GG8 A5
2GG9 A5
2GH0 B8
2GH1 B5
2GH2 B6
2GH3 B6
2GH4 B6
2GH5 B7
2GH6 B5
12 13 14
123 456
1GE0 F10
1GE1 B11
2G79 D14
2GE0 A1
2GE1 A2
4K7
3GH2
6GE3
BAV70W
10p
RES
2GL2
10n
2GK6
2GH2
10n
10n
3GF0-3
10K
6 3
2GG5
9GE8
1
8
4
3
7GE1
M25P05-AVMN6
FLASH
512K
Φ
6
5
7
2
2GJ7
10n
FGG3
2GJ1
100n
7G65
1
3
2
BC847BW
RES
3GB9
1K0
RES
3GC8
1K0
10n
2GE7
2GF6
2GG8
10n
10n
54
10K
3GF0-4
9GE5-445
+2V5-PF
9GE5-227
1u0
2GK3
IGA8
2G79
1u0
IGA4
IGA7
FGG4
2GK5
10n
120R
5GE2
10n
+2V5-PF
2GE8
2GF4
4u7
220R
5GE6
120R
3
5
3GH5
LD3985M25
4
2
1
7GE3
100n
2GK1
IGE9
3 6
100R
3GG2-3
FGF2
9
8
4
3
2
7
6
15
5
20
19
18
17
16
14
13
12
11
10
P87LPC764BDH
uC
Φ
4Kb OTP
1
7GE0
2GF1
1 8
10n
3GF0-1
10K
6GE0-2
BAV70S
45
3
+3V3
12
6
7
BAV70S
6GE0-1
3GF0-2 10K2
FGE9
202
173
207
3
205
1
206
2
4
115
161
162
168
169
170
172
191
193
192
204
143
145
146
148
149
151
153
154
155
159
160
128
129
132
133
134
135
137
139
140
141
200
198
164
165
117
120
121
122
123
126
127
109
194
114
178
179
183
185
187
188
116
177
7GE2-2
MISC
T6TF4HFG-0002
120R
5GE1
1u0
10n
2GG7
2GH5
4K7
3GG7
RES
IGF5
10n
2GF9
2GF8
10n
FGE8
1u0
+3V3
2GH6
FGE2
100n
2GJ5
3GG1
9GE4
STPS2L30A
6GE76GE6
STPS2L30A
2GJ4
10p
3GG0
RES
IGA3
240R
1K0
3GG6
2GF2
10n
10n
2GK4
FGG1
FGE5
10n
2GL1
2
13
1GE1
60M
10n
2GE1
1u0
2GE0
1
4K7
3GE5-1
8
1u0
10n
2GG0
2GE9
10n
2GE4
FGE4
2GH3
10n
7
1 8
9GE6-22
+2V5-PF
9GE6-1
2GH7
10n
GND-RX
IGE2
IGE0
241
219
220
221
222
223
224
225
232
233
234
235
218
236
237
238
239
240
138
144
150
158
217
226
227
228
229
230
231
167
174
180
184
196
201
210
113
118
124
130
24
33
39
43
65
72
85
6
166
110
111
119
136
147
156
176
182
190
21
197
209
214
55
57
54
56
59
58
12
94
105
195
203
208
211
216
199
242
213
215
212
125
131
142
152
157
163
171
175
181
186
189
T6TF4HFG-0002
7GE2-3
5
108
112
9GE0
RES
IGH8
FGE0
GND-RX
2GE6
10n
120R
5GE0
GND-RX
4u7
10n
2GG1
2GJ0
+3V3
54
3GF1-4
4K7
9GE6-445
9GE5-33 6
GND-TX
10n
2GE5
2GG3
GND-TX
3 6
1u0
10n
9GE6-3
2GE3
IGE8
GND-TX
2GJ2
FGG0
10n
FGE1
45
3GG2-4
100R
2GF0
+3V3
10n
1K0
3GH3
IGH7
79
91
64
73
88
104
IGH0
49
48
47
46
11
30
42
18
50
63
70
90
89
61
62
66
67
68
69
53
52
26
75
74
78
77
81
80
84
83
87
86
20
19
9
10
13
14
15
16
22
23
25
17
27
36
51
60
71
76
82
97
8
92
96
95
99
98
101
100
103
102
107
106
28
29
31
32
34
35
40
41
44
45
93
T6TF4HFG-0002
7GE2-1
7
38
37
LVDS
2GK2
47u 4V
10n
2GH4
IGH9
GND-TX
3GE1
4K7
2GG9
10n
+3V3
10n
2GF3
2GH8
10n
220R
5GE5
OUT
2
IGHA
7GE5
LD1117DT
1
GND
IN
3
2GK0
100n
5GE3
220R
1u0
2GJ6
2GG4
10n
10n
47R
3GE4
2GH9
2GF5
10n
8
5GE4
220R
4K73GF1-1
1
3GE5-3
4K7
6 3
3GH4
120R
+3V3
BAS316
6GE1
+3V3
IGA2
1M0
+3V3
1 8
3GE3
45
9GE7-1
9GE7-4
1GE0
10M
GND-TX
2GH1
1u0
IGHB
10n
2GG6
2GF7
IGHH
10n
GND-TX
FGE3
2GE2
10n
9GE1
RES
2GH0
10n
3 6
FGF3
27
9GE7-3
9GE7-2
3GG9
RES
2GG2
10n
4K7
1 8
10K
3GB8
9GE5-1
GND-RX
RES10p
2GJ3
IGHG
RES
47K
3GE0
GND-RX
RES
10p
2GL3
IGHE
IGHC
IGHD
TXOD-
+2V5-P3
+2V5-PLL
PWM-3
+3V3
BACKLIGHT-BOOST
TXOCLK-
TXOCLK+
TXOC-
TXOD+
TXOE-
TXOE+
+1V5-P3
+1V5-PLL
+2V5-PLL
TXOA+
TXOB-
TXOB+
TXOA-
TXOC+
RxP3oD+_B0
RxP3oE-_G9
RxP3oE+_G8
JTAG-TCK
+3V3-P3
+2V5-P3
RxP3oA+_B8
RxP3oB-_B7
RxP3oB+_B6
RxP3oC-_B5
RxP3oC+_B4
RxP3oCLK-_B2
RxP3oCLK+_B3
RxP3oD-_B1
RxP3eC-_G3
RxP3eE+_R6
RxP3eD-_R9
RxP3eCLK-_G0
RxP3oA-_B9
PWM-OR
+1V5
PWM-3
PWM-OR
SDA-AMBI-3V
3
SCL-AMBI-3V3
JTAG-TD-PNX5050-PACIFI C
JTAG-TD-PACIFIC-TDA10048
+1V5-RX
+1V5-TX
+3V3-P3
CTRL2-STBY_BACKLIGHT-CTRL_RESET-P3_BOOTMODE
+3V3-P3
CTRL4-P3
+1V5-RX +1V5-TX
TXOD+
TXOD-
TXOE+
TXOE-
SCL-SSB
SDA-SSB
BACKLIGHT-CONTROL
+3V3-P3
+3V3-P3
TXECLK+
TXECLK-
TXED+
TXED-
TXEE+
TXEE-
TXOA+
TXOA-
TXOB+
TXOB-
TXOC+
TXOC-
TXOCLK+
TXOCLK-
+1V5-PLL
TXEA+
TXEA-
TXEB+
TXEB-
TXEC+
TXEC-
RxP3R5
+3V3-P3
+3V3-P3
+1V5 +1V5-P3
RxP3oD+_B0
RxP
3oE-_G9
RxP3oE+_G8
RxP3R0
RxP3R1
RxP3R2
RxP3R3
RxP3R4
RxP3oCLK-_B2
RxP3oA-_B9
RxP3oA+_B8
RxP3oB-_B7
RxP3oB+_B6
RxP3oC-_B5
RxP3oC+_B4
RxP3oD-_B1
RxP3eA+_G6
RxP3eB-_G5
RxP3eB+_G4
RxP3eC+_G2
RxP3eD+_R8
RxP3eE-_R7
RxP3HS_DE
RxP3oCLK+_B3
JTAG-TD-PACIFIC-TDA10048
JTAG-TMS
JTAG-TRST
RxP3VS
RxP3CLK
RxP3eCLK+_G1
RxP3eA-_G7
CTRL4-P3
RxP3FF
JTAG-TD-PNX5050-PACIFI C
B06C B06C
I_17960_045.eps
220508
3139 123 6341.2

Table of Contents

Related product manuals