EasyManua.ls Logo

Philips 36PW9618 - Page 50

Philips 36PW9618
172 pages
Print Icon
To Next Page IconTo Next Page
To Next Page IconTo Next Page
To Previous Page IconTo Previous Page
To Previous Page IconTo Previous Page
Loading...
50EM6E 7.
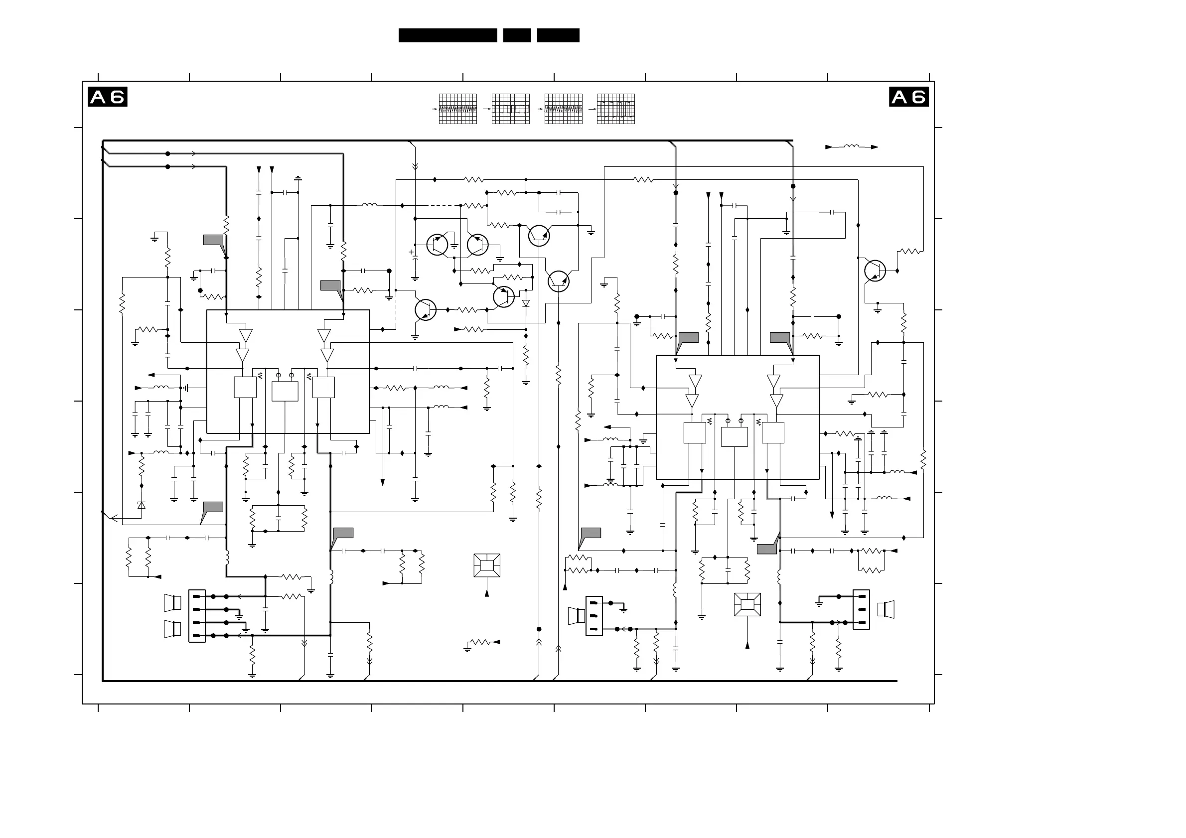
Circuit Diagrams and PWB Layouts
Large Signal Panel: Audio Amplifier
PWM
STAGE2
G=2.5
PRE-AMP1
INTERGR 1
INTERGR 2
PWM
STAGE2
OSC
G=2.5
PRE-AMP2
PWM
STAGE2
G=2.5
PRE-AMP1
INTERGR 1
INTERGR 2
PWM
STAGE2
OSC
G=2.5
PRE-AMP2
I795 F7
I798 D4
I799 D3
-18V
-18V
I753 A2
I754 E1
I755 E3
I756 C1
I757 C1
I758 C6
I759 D6
I760 E8
I761 E6
I762 B7
I763 C5
I775 C4
I776 D3
I777 C1
I778 D2
I779 D1
I780 B7
I781 B8
I786 D9
I787 F8
I788 C6
I789 D5
I790 E2
I792 B8
I745 D1
I746 B7
I747 B7
I748 C6
I749 D8
5V3
-18V
18V
-18V
-18V
A8
-18V
-18V
-5V5
-7V
-18V
5V3
-18V
18V
2V6
-18V
-7V
I750 C9
I751 D7
I752 D7
I723 B9
I724 D2
I725 E1
I726 B1
I727 A4
I728 C7
I729 C4
I730 E6
I731 E6
I732 B4
I733 E9
I734 E7
I735 E9
I736 C9
I737 C5
I738 B4
I739 B5
I740 D8
I741 D9
I742 D9
I743 C8
I701 D5
I702 A5
I703 A5
I704 A5
I705 C4
-18V
-18V
18V
I706 C4
I707 C4
I709 D3
I710 E4
I711 B3
I712 A4
I713 D3
I715 A9
I716 D2
I717 A4
I718 B4
I719 E2
I721 B2
I722 B2
7706 B5
7707 B4
7708 B9
9706 B4
9717 A4
-18V
A8
-18V
2V6
F708 F2
F710 F2
F711 A1
F712 A1
F713 B2
F714 B4
F715 A7
F716 A8
F717 C9
F718 C6
F719 F9
F720 F6
F721 F2
F722 F2
F731 F6
F734 F9
F737 F5
F738 F2
F739 F2
F740 F9
F741 F6
I700 D5
3792 B2
3793 B3
3794 B7
3795 B8
3796 C7
OV
AUDIO AMPLIFIER
A8
3797 C8
3798 C5
5701 E3
5702 E2
5703 A3
5707 C1
5708 D1
5711 D4
5712 C4
5715 E9
5716 D9
5720 F7
5721 E8
5722 E6
5723 D6
5725 A9
6701 C5
6745 E1
7700 B3
7701 B5
7702 C8
7703 B5
7704 B4
7705 B5
3730 E6
3731 E9
3732 E8
3733 E7
3734 D9
L
-5V5
18V
OV
-18V
3735 C9
3736 D9
3737 C9
3738 C7
3739 C6
3740 B6
3741 E7
3742 D6
3743 E3
3744 E8
3745 D1
3746 C5
3747 B9
3748 A5
3749 A6
3750 F2
3751 F6
3752 F9
3755 F5
3760 E3
3790 B3
3791 B2
3701 E5
3702 A5
3703 A5
3704 A5
3705 B2
A3,A8
3706 D5
3707 C5
3708 E5
3709 E4
3710 D3
3711 C4
3712 E2
3713 C6
3714 B5
3715 B5
3716 B5
3717 F3
3718 F3
3719 E9
3720 E6
3721 B1
3722 C1
3723 B1
3724 E1
3725 D2
3726 E1
3727 E4
3728 F8
3729 F7
2758 F7
2759 E7
2760 C6
2761 C9
2762 B7
A8
SUBWOOFER
2763 B7
2777 D1
2778 B4
2779 D2
2780 D4
2781 D4
2782 D6
2783 D9
2784 E6
2785 E9
2786 A3
2787 A7
2788 D1
2789 D1
2790 D1
2791 E9
2792 D9
2795 D6
2797 D9
2798 D9
2718 E2
2719 E4
2720 B2
2721 B1
2722 C1
R
CENTRE
A8
2723 E6
2724 D1
2725 E9
2726 D2
2727 E2
2728 D2
2729 F2
2740 F8
2741 E7
2742 E7
2743 E7
2744 E8
2745 E8
2746 E8
2747 D9
2748 D9
2749 B8
2750 C8
2751 A9
2753 B7
2754 B7
2755 C7
2756 C6
2757 D6
4
0045 E5
1735 E2
1737 F9
1738 F6
2702 B3
2704 B2
2705 A6
2706 B3
2707 B2
2708 A2
2709 C5
2710 C4
2711 E1
2712 D4
2713 A6
2714 D3
2715 E3
2716 D3
2717 F3
C
D
E
F
0044 F8
123
A8
98765
4123 98765
A
B
C
D
E
F
A
B
I721
A61
22n
2786
220R
3727
I753
0044
3722
68K
1n
0045
2725
56K
3794
10K
I761
3742
1n
2759
2748 100n
220n
2782
A57
I733
4K7
3737
A58
I776
OSC8
OUT13
OUT223
STBY-MUTE
6
T111
T215
VREG 25
5708
83R
16
-VCC1 1
-VCC2
2
-VCC3
24
BOOT15
BOOT221
CURREF
14
FEED1
7
FEED2
9
FEED3
17
FEED4
19
GND 13
IN1 10
IN2 18
NC
20
220n
7702
TDA7490
+5V 12
+VCC1
4
+VCC2
22
-5V
F717
2720
220n
2753
20
NC
8OSC
3OUT1
23 OUT2
6
STBY-MUTE
11 T1
15 T2
25VREG
220R
3724
+VCC2
16-5V
1-VCC1
2
-VCC2
24
-VCC3
5 BOOT1
21 BOOT2
14
CURREF
7
FEED1
9
FEED2
17
FEED3
19
FEED4
13GND
10IN1
18IN2
TDA7490
7700
12+5V
4
+VCC1
22
I737
I757
F739
220n
2708
2K7
3790
220R
3719
220R
3720
3701
10K
I745
3745
1K
220n
2781
2727
1n
2754
F721
1n
2746
2u2
2709
470p
I739
I792
I781
I748
I707
EH-B
1738
1
2
3
2714
33n
2723
1n
100n
2751
5725
83R
3730
220R
2744
3723
83R
5723
33n
10K
3712
56K
I724
3791
2K7
3709
220R
F711
F720
I730
100n
2712
2750
100n
2717
2716
330p
1n
2702
680n
I728
I790
I763
3710
22K
3746
22K
I756
F708
4u7
2778
2705
470n
2706
100n
100K
3728
BC847B
7705
1737
EH-B
1
2
3
F737
I786
470p
2710
3708
56K
8R2
3738
2726
33n
1n
2755
I778
BAS216
6701
56K
3736
F718
68u
5720
470p
I731
5716
83R
2760
330p
I704
F722
2728
I746
470p
2756
120K
3734
2784 220n
I755
2741
22p
3732
7707
BC847B
2788
100p
22K
I736
220K
3760
83R
5712
A62
I760
I719
3797
2K7
I779
I788
5722
I741
I703
83R
470p
2721
I759
I711
7701
BC847B
22K
F740
I787
3733
F741
BC857B
7706
I777
100n
2757
5711
83R
3725
3711
120K
220n
2792
22K
2779
220n
2u2
2749
3703
33K
F738
I738
I799
2783
220n
I747
100K
3717
F713
5721
I762
I775
68u
2724
100n
I751
220n
2777
I722
3702
10K
F714
470n
2713
3715
47K
2704
1n
680n
2758
I732
I727
3721
4K7
I723
I726
2711
2780
220n
100p
2797
1n
330p
2742
I705
3792
10K
I718
470n
220R
3726
2740
I713
22p
2718
I742
I750
F716
68K
3707
7703
BC847B
2729
680n
3713
1K2
I702
5702
68u
2715
1n
I712
I715
3747
47K
BC847B
7708
A56
I758
3798
15K
22n
2787
2785
220n
I754
3750
2K2
100K
3729
I749
I795
I752
I735
5701
68u
1n
2719
83R
5707
10K
3704
2K2
3751
I780
3752
2K2
5703
3735
68K
4K7
3740
30R
I701
3741
10K
100n
2707
I717
3705
8R2
F734
9706
3731
220R
9717
I706
BC847B
7704
2K2
3743
I716
47K
3716
68K
3739
F731
I743
3706
4K7
83R
5715
220n
2791
3793
10K
33n
2743
F712
I740
F715
A59
1
2
3
4
I710
I700
EH-B
1735
I729
I789
F719
F710
3795
10K
6745
BZX384-C10
I725
470p
2761
100p
2789
2747
470p
I734
3755
2K2
100n
2763
330p
2745
100K
3744
A60
100p
2798
100p
2790
I798
I709
2795
100p
2762
220n
3718
100K
470R
3749
3796
2K7
3748
470R
47K
3714
+16V+19V
PROT1
-Vf21
A63
2722
470p
-16V-19V
-Vs
-Vf2
-Vf11
-Vf1
-Vf21
-Vf2
-Vf2
-Vf11
-Vf1
PROT_AUDIOSUPPLY
+16V+19V
-Vf21
-Vf1
-16V-19V
POR
-16V-19V
+16V+19V
PROT1
PROT1
-Vs
+16V+19V
PROT1
PROT1
-Vf11
+16V+19V
+16V+19V
AUDIO-R
-Vf2
AUDIO-SW
AUDIO-C
SOUND-ENABLE
-16V-19V
AUDIO-L
-Vs
A57
20V / div AC
2us / div
PM3394B
A59
10V / div DC
2us / div
PM3394B
A58
200mV / div DC
2ms / div
A56
200mV / div DC
2ms / div
CL 36532008_024.eps
070503
8204 000 8279.3
15W/8
15W/8
15W/8
15W/8

Related product manuals