EasyManua.ls Logo

Philips 36PW9618 - SSB: PIP (Muppet)

Philips 36PW9618
172 pages
Print Icon
To Next Page IconTo Next Page
To Next Page IconTo Next Page
To Previous Page IconTo Previous Page
To Previous Page IconTo Previous Page
Loading...
Circuit Diagrams and PWB Layouts
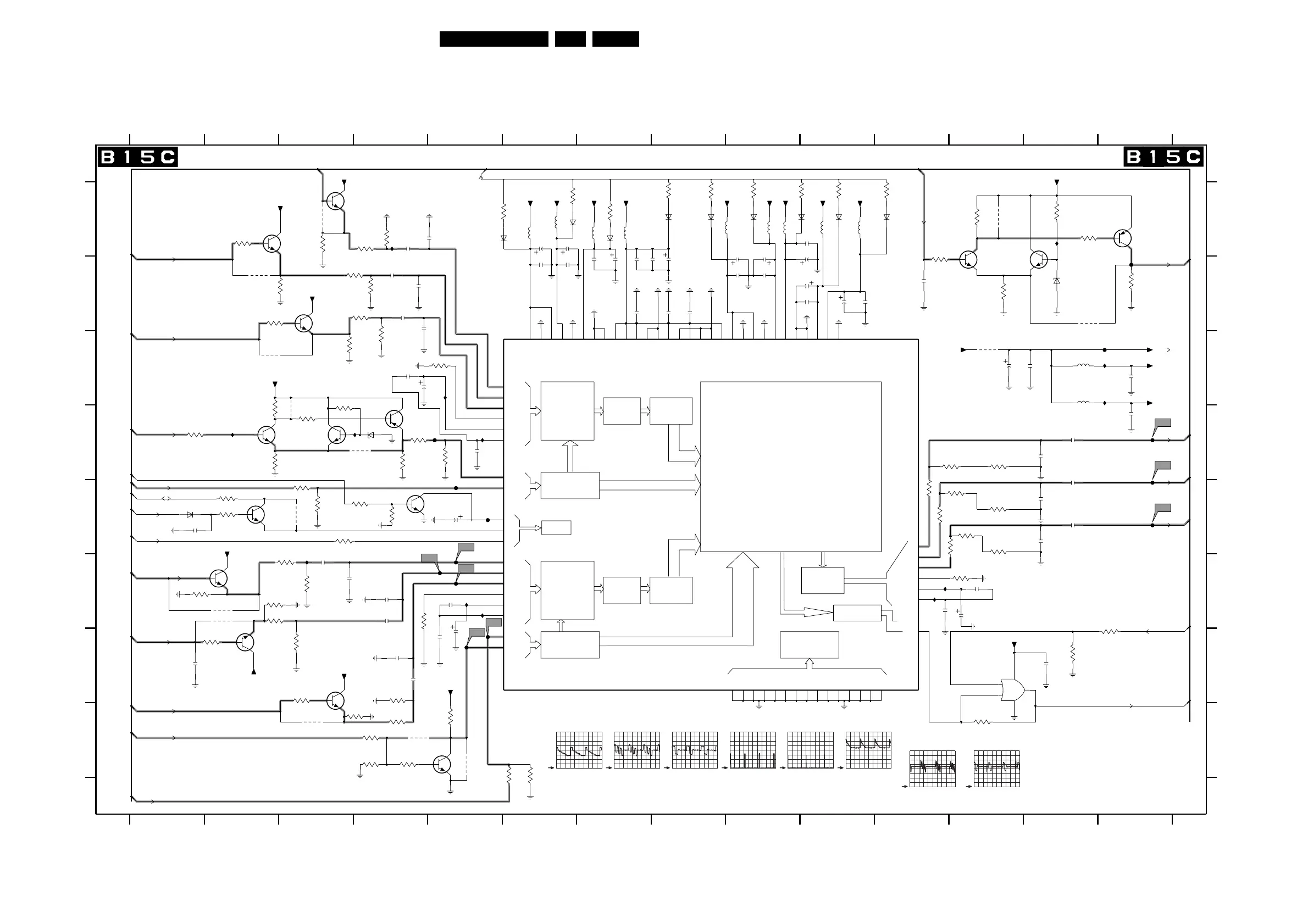
79EM6E 7.
Small Signal Board: PIP (Muppet)
PFB1
500mV / div DC
20µs / div
PFA2
500mV / div DC
20µs / div
FPA9
500mV / div DC
20µs / div
FPA8
500mV / div DC
20µs / div
FPA7
500mV / div DC
20µs / div
FPA5
1 V / div DC
5ms / div
FPA4
1 V / div DC
20µs / div
FPA3
500mV / div DC
20µs / div
LINE MEMORY
DISPLAY
CONTROL
PROCESSING
MUPPET
OR GATE
CLAMP
AND A/D
CONVERTER
PLL AND CLOCK
GENERATION
H/V FILTER LINE MEMORY
TEST
CONTROL
DAC
GENERATION
PLL AND CLOCK
CONVERTER
AND A/D
IIC BUS
CONTROL
CLAMP
H/V FILTER
RES
81
RES
FPA9 E14
23
7PA7 F2
7PA8 G2
7PA9 G3
7PB0 H5
5467
7PB3 B13
6PA2 B13
B15b
B14a
IPA8 D5
IPA9 F5
IPB0 F5
IPB1 A13
9PA5 F2
RES
9PB3 A3
9PB5 A12
9PB4 D3
FPA0 E5
9PA6 H3
1V2
7PB5 E4
7PB6 A3
9PA0 B2
9PA1 C3
9PA4 F2
5PA0 A6
FPB0 C14
FPB1 F5
FPB2 E5
IPA1 C14
IPA3 C14
IPA5 F11
IPA6 F11
9PA7 H4
9PA8 H5
9PB1 B13
9PB2 C12
H
7PA6 C5
A
B
C
D
7PB1 G12
7PB2 B12
G
3PF6 D12
6PB1 A5
6PB2 A6
6PB3 A7
6PB4 A8
6PB5 A8
6PB6 A9
6PB7 A9 IPB2 D2
IPB3 D4
IPB4 A4
IPB5 F3
RES
6PB9 A11
7PA0 A3
7PA1 B3
7PA2 D2
7PA3 D3
7PA4 D4
7PA5 E2
7PB4 A14
FPA2 F5
FPA3 F5
FPA4 G5
FPA5 G5
9PA2 D4
9PA3 E3
FPA8 D14
3PD5 H4
5PA1 A6
5PA2 A7
5PA3 A7
5PA4 A8
5PA5 A9
5PA6 A9
5PA7 A10
IPA7 C5
B6a
RES
5PA9 C13
E
F
6PA1 E1
3PB8 E3
3PF7 D12
3PF8 E12
3PF9 E12
3PG0 E12
3PG1 E12
3PG2 A3
3PG3 B2
6PB8 A10
B15b
B15b
B15b
B15c(2x)
B15a
B15a
B15a
3PG5 F2
3PG6 H4
3PH1 A6
FPA1 D5
3PH3 A7
3PH4 A8
3PH5 A8
3PH6 A9
FPA6 B14
FPA7 D14
3PH9 A11
2PF8 G5
3PD6 H4
3PD7 H6
3PD8 H6
3PD9 D5
3PE0 A11
3PE1 A12
3PE2 B12
5PA8 A10
B6a
RES
PIP (MUPPET)
RES
RES
3PE4 A13
B6a
3PE9 E11
3PF0 E11
3PF1 F14
3PF2 E11
5PB0 C13
6PA0 D4
3PF5 E4
2PE1 D13
3PB9 E2
3PC0 E3
3PC1 E3
3PC2 F3
3PC3 F3
3PC4 F1
3PC5 E4
3PG4 C3
B15a
B15b
3PH2 A6
3PC8 F2
3PC9 G3
3PD0 G3
3PD1 G4
3PH7 A10
3PH8 A10
3PD4 H5
2PC1 B6
2PF9 F12
3PA0 A2
3PA1 A4
3PA2 A4
3PA3 B4
3PA4 B4
3PA5 H12
3PE3 A13
RES
RES
RES
RES
RES
3PA7 B4
3PA8 B2
3PA9 C5
3PE5 B14
3PB1 D2
3PB2 D1
3PB3 D3
3PB4 D2
3PF3 G13
3PF4 F12
3PB7 E2
14
2PE2 E13
2PE3 E13
2PE4 F11
2PE5 F12
2PE6 G13
2PE7 E13
2PE8 D13
3PC6 F4
B6a
B15a
RES
RES
3PC7 G22PF1 C12
2PF2 C13
2PF3 F3
3PD2 H4
3PD3 H4
2PF7 C4
9
2PC2 B7
2PC3 B7
2PC4 B7
2PC5 B7
2PC6 B8
2PC7 B7
2PC8 B8
3PA6 C4
RES
RES
2PD0 A9
2PD1 B9
2PD2 A9
3PB0 C3
2PD4 A10
2PD5 A10
2PD6 B10
2PD7 B10
3PB5 D4
3PB6 D4
2PE0 B11
2PA8 E1
A
B
C
D
E
F
G
2PE9 D13
RES
2PB2 F4
2PB4 G4
2PB5 G1
2PB6 G5
2PB7 G4
2PF5 C14
2PF6 D14
2PC0 A6
2PA0 A4
10 11 12 13 14
12
2PC9 B8
RES
RES
RES
45
2PD3 B9
78910
2PD8 B10
2PD9 B10
11 12
2PA9 E5
2PB0 F3
2PB1 F4
2V7
H
B15b
B15b
3V2
RES
2PB3 F5
13
2PB8 A6
2PB9 B6
2PA1 A4
2PA2 B4
2PA3 B4
2PA4 B4
2PA5 B5
2PA6 D5
2PA7 C4
3
RESRES
RES
RES
0V2
0V
1V0
1V0
2V7
RES
6
RES
2PC6
10u
7PB4
BC857BW
7PB3
BC847BW
100R
3PA1
RES
9PA6
6PA2
BZX384-C3V9
2PD1
100n
+5VPIP
2PF2
100n
+3VD
680R
3PG2
7PB6
BC847BW
3PE3
1K5
470R
3PB1
RES
9PA0
5PA9
30R
RES
3K3
3PD8
680R
3PG5
3PF2
270R
2PC9
100n
9PA7
47p
2PB5
3PB4
1K5
1K5
3PE2
1u
2PB0
3PA9
39K
100R
3PB7
16
10u
2PA9
BC847BW
7PA0
1u
2PA0
100R
3PC1
IPA7
150p
2PA1
1610u
2PF8
5PA5
12u
2PD0
10u
1610u
2PF9
9PB5
9PA3
100n
2PB7
220R
3PA0
12u
5PA7
3PA6
39K
3PA8
220R
+5VPIP
10K
3PD6
RES
3PD0
220R
BC847BW
7PB0
+3VD
3PE5
1K
2PA2
100n
BC847BW
7PB5
100R
3PA7
+3V
39K
3PA2
RES
10u
2PC3
1K
3PB5
220R
3PC7
FPB0
100R
3PD2
1K2
3PB6
100n
2PD9
BC847BW
7PA5
RES
10u
2PD8
+5VPIP
100n
2PC4
39K
3PA4
220R
3PB3
+3.3V
RES
IPA9
2PA3
150p
560R
3PG0
2PC7
100n
2
1
4
5
3
2PC5
100n
BC847BW
7PA3
7PB1
74HC1G32GW
3PE9
330R
BC857BW
7PA4
3K3
3PC0
100n
2PE8
9PA2
2PE7
100n
FPA1
2PF5
100n
BC847BW
7PB2
3PC4
680R
3PB8
1K8
+3V3_SIM
2PA7
100n
IPB0
3PH1
47R
4K7
3PC5
IPA8
1K
3PF5
2PD6
10u
100R
3PF7
RES
9PA4
FPA0
47p
2PE3
IPB1
4K7
3PD4
7PA9
BC847BW
+3VD
3PD9
3K3
150p
2PB1
1u
2PE9
+3V
+5VPIP
2PB3
100n
9PA8
RES
0u82
5PA4
2PE5
100n
120R
3PF0
820R
3PF8
120R
3PF9
68R
3PG1
12u
5PA8
2PD7
100n
3PB0
1K5
IPB2
2PC1
100n
3PC2
100R
+5VPIP
3PE1
470R
RES
47p
2PE2
3PA5
220R
RES
2PB8
10u
5PA6
12u
IPA6
IPA5
6PB1
BAS316
FPB2
100R
3PA3
+3.3V
2PE6
100n
RES
2PD2
10u
2PF3
150p
150p
2PA5
+3.3V
1K5
3PE0
+5VPIP
1K2
3PD7
BC847BW
7PA8
39K
3PC9
2PE1
47p
6PB5
BAS316
100n
2PE4
2PD3
100n
+3VD
1K8
3PD3
3PD5
3K3
100n
2PC8
Vref_B_MA
80
Vref_B_SA
11
Vref_T_DA
99
Vref_T_MA
82
Vref_T_SA
3PC8
100R
VSSD_RM
61
VSSD_RP
85
VSSD_SA
18
VSSD_T1
19
VSSD_T2
VSSD_T3
30
48
VSSD_T4
49
VSSD_T5
50
VSSD_T6
51
VSSD_T7
62
VSSD_T8
63
VSSD_T9
9
Vbias_DA
97
Vbias_MA
84
Vbias_SA
13
Vref_B_DA
1
VDDD_P2
39
VDDD_RL
42
VDDD_RM
20
VDDD_RP
86
VDDD_SA
7
VSSA_DA
91
VSSA_DP
4
VSSA_MA
77
VSSA_SA
90
VSSA_SP
66
VSSD_D
15
VSSD_DA
96
VSSD_MA
16
VSSD_P1
VSSD_P2
6540
VSSD_RL
41
TCBC
45
TCBD
47
TCBR
43
TCLK
44
TM
6
VDDA_DA
92
VDDA_DP
5
VDDA_MA
3
VDDA_MF
76
VDDA_SA
78
VDDA_SF
89
VDDA_SP
67
VDDD_D
14
VDDD_DA
VDDD_MA
95
17
VDDD_P1
64
SCL
74
SDA
87
SHSYNC
79
SU
81
SV
72
SVSYNC
83
SY
37
T0
36
T1
35
T2
34
T3
33
T4
32
T5
88
T6
T7
93 38
TC
46
NC14
25
NC15
26
NC16
27
NC17
28
NC18
29
NC19
53
NC2
54
NC3
55
NC4
56
NC5
57
NC6
58
NC7
59
NC8
60
NC9
69
PKOFF
75
POR
73
71
DCLK
DHSYNC
94
12
DU
10
DV
70
DVSYNC
8
DY
68
FBL
2
MU
100
MV
98
MY
52
NC1
31
NC10
21
NC11
22
NC12
23
NC13
24
IPB5
SAB9081H
7PA6
IPB4
2PA8
100n
100n
2PF6
+5VPIP
3PH5
47R
+3V
100n
2PB2
47R
3PH6
2PC2
100n
4u7
5PA2
3PG6
680R
6PB7
BAS316
9PB3
3PH7
47R
100n
2PB9
RES
9PB4
3PG3
680R
100n
2PA4
7PA2
BC847BW
30R
5PB0
3PE4
220R
39K
3PC3
10u
2PD5
39K
3PC6
10u
2PF1
3PF6
560R
6PB2
BAS316
9PB1
6PB3
BAS316
+3V
3PH3
47R
BAS316
6PB4
7PA7
BC847BW
47R
3PH4
+5VPIP
100n
2PD4
100n
2PA6
8204 000 8140.8
+3V +3V
3PF1
1K5
6PA1
BAS316
1K5
3PB2
IPB3
BZX384-C3V9
6PA0
BAS316
6PB8
7PA1
BC847BW
2PE0
3n3
+3VD
100n
2PB6
12u
5PA1
3PD1
3PF3
3K3
2PB4
150p
39K
2PF7
10u 16
22K
3PF4
3PB9
3K3
680R
3PG4
2PC0
10u
RES
9PA5
RES
9PA1
9PB2
5PA0
0u82
FPA6
IPA1
5PA3
4u7
3PH2
47R
47R
3PH8
IPA3
6PB9
BAS316
BAS316
6PB6
3PH9
47R
3V3_FAULT_PIP
3V3_FAULT_PIP
3V3_FAULT_PIP 3V3_FAULT_PIP 3V3_FAULT_PIP 3V3_FAULT_PIP 3V3_FAULT_PIP 3V3_FAULT_PIP
3V3_FAULT_PIP
V-HIP-OUT
FBLK
Y-HIP-OUT
HA50-PIP
PIP_RESET
IN-V50
HA
IN-U50
S-SDA
HA
U-HIP-OUT
MUPPET_BLK
HA
S-SCL
IN-Y50
DU
DV
DY
VS-HIP-OUT
VA50-PIP
HS-HIP-OUT
CL 36532008_049.eps
070503
FPA7
FPA8
FPA2
FPB1
FPA3
FPA5
FPA4
FPA9

Related product manuals