EasyManua.ls Logo

Philips 36PW9618 - 6. Wiring Diagram, Block Diagrams and Overviews; 6.1 Wiring Diagram

Philips 36PW9618
172 pages
Print Icon
To Next Page IconTo Next Page
To Next Page IconTo Next Page
To Previous Page IconTo Previous Page
To Previous Page IconTo Previous Page
Loading...
Wiring Diagram, Block Diagrams and Overviews
35EM6E 6.
6. Wiring Diagram, Block Diagrams and Overviews
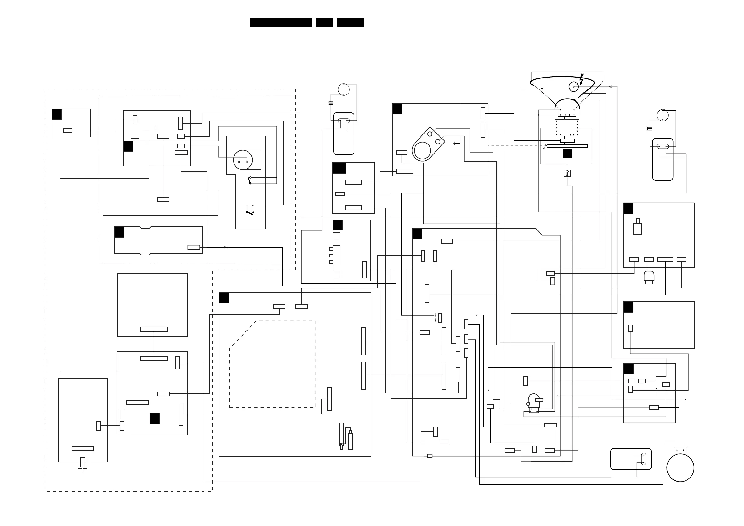
Wiring Diagram
CL 36532008_002.eps
060503
CRT PANEL
(COMPONENT VIEW)
CRT
SOCKET
F
TOP CONTROL PANEL
DVD ENGINE
LCD
DISPLAY
LCD
BOARD
MOUNTED ON TOP COVER
ONLY FOR TDL EXECUTIONS
EJECT
BUTTON
1264
P
L
A
HORIZONTAL
DAF PANEL
11P
1P
1434
1940
8440
8955
8936
3P
BLACK
RED
7P
1483
8483
1435
32"
8502
8202
8241
8492
1491
8625
8737
8417
8693
8418
1317
(FOR 36" ONLY)
(FOR 36" ONLY)
(FOR 36" ONLY)
8424
8206
1424
3P
2P
1620
1620
1502
1207
8346 (only for not TDL sets)
1505
2P
2P
1498
1492
1492
1625
2P
2P
1P
1147 1146
1417
1499
LOT
1491
1491
1417 1418
2P
1419
1693
1693
1497
I
1435
8194
8193
CRT PANEL
F
LSP(LARGE SIGNAL PANEL)
4P
7P
1424
5P
5P
2P
2P
2P
8335
2P
4P
17P
7P
8X
8X
5P
1120
1120
N.C.
5P
30P
30P1800
24P
FM TUNER
30P
30P
40P40P
TUNER1
TUNER2
1U02
7P
1U02
5P
1170
1S02
1S15
40P
9P
3P
11P11P
40P
1206
1735
1946
1945
1738
1205
1952
1953
8192
1I11
1250
1260
1253
8253
8251
8250
SCREENED
AREA
8260
8120
114t
17P2X
3P
3P
1204
8264
1206
1201
1260
1264
3P
1245
24P
1203
8245
8003
8004
8001
8209
2P
BLUE RED
MOTOR
MOTOR ASSY
SWITCH
SWITCH
2P
1207
8005
4P
1327
SIDE
I/O PANEL
O
1936
1326
1328
HEADPHONE
SVHS
RIGHT (RED)
LEFT (WHITE)
CVBS (YELLOW)
11P
3P
3P
1737
1936
1940
1955
3P3P
5P
5P
3P
3P
BLUE
BLUE
TWEETER
RIGHT
SPEAKER
1440
AUTO
SCAVEM
SC
3P
1940
1955
11P
11P
RED
BLACK
EHT
FRAME
ROTATION
COIL
AQUADAG
DEGAUSSING COIL
SCAVEM
COIL
CRT
DEFLECTION
COIL
PANEL
YELLOW GREY
INTERFACE
T
RADIO
PANEL
K
SSB
B
8205
BLACK/
WHITE
BLACK
CENTRE
SPEAKER
SUB
WOOFER
02010202
0241 0245
2P
0317
MAINS SWITCH PANEL
E
DC SHIFT
(OPTIONAL)
G
MAINS
CORD
MAINS
SWITCH
2P
2P 3P9P
8190
BROWN/BLACK
BROWN
LEFT
SPEAKER
TWEETER
3P
1943
compair
interface

Related product manuals