EasyManua.ls Logo

Philips 36PW9618 - Page 70

Philips 36PW9618
172 pages
Print Icon
To Next Page IconTo Next Page
To Next Page IconTo Next Page
To Previous Page IconTo Previous Page
To Previous Page IconTo Previous Page
Loading...
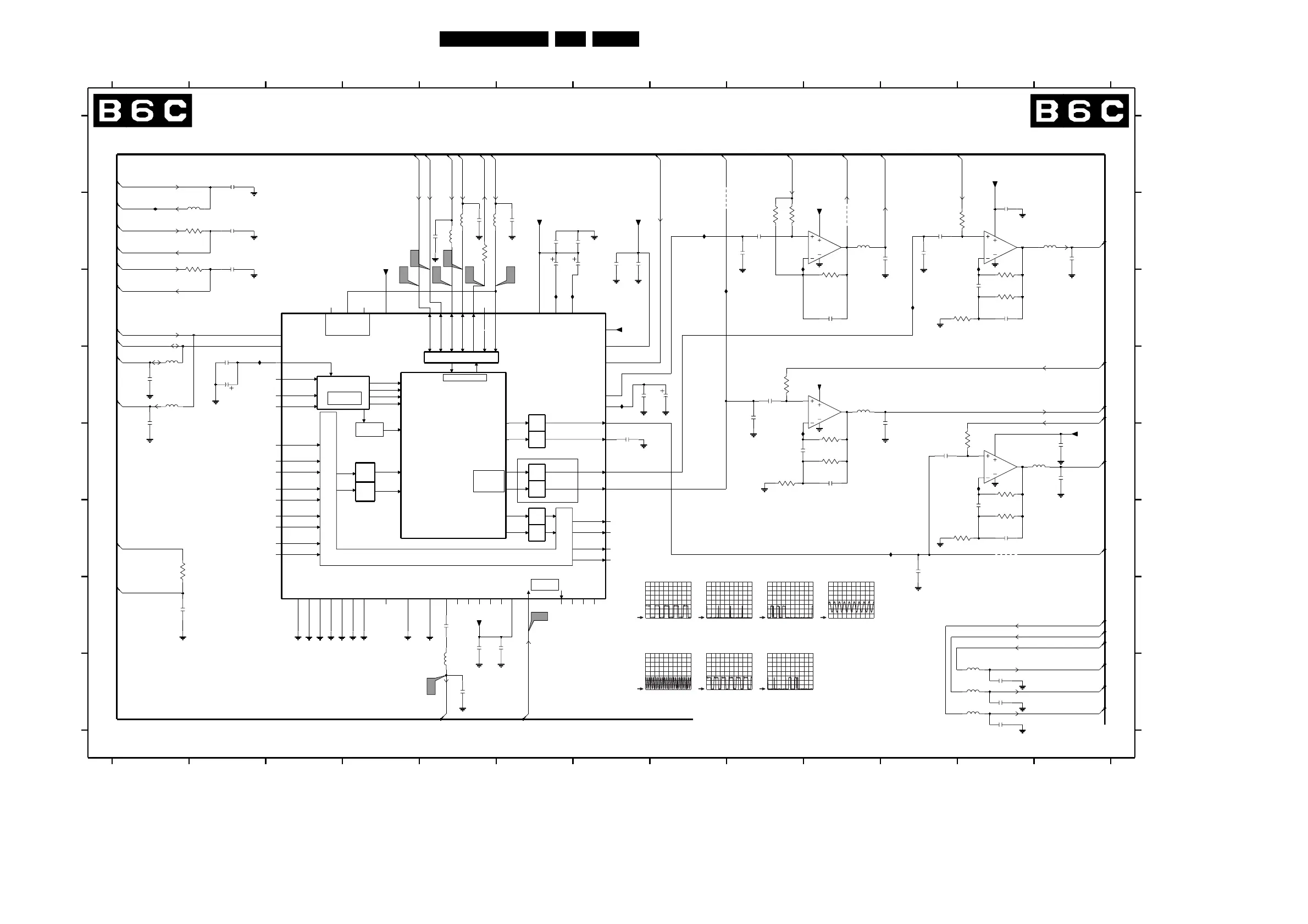
70EM6E 7.
Circuit Diagrams and PWB Layouts
Small Signal Board: Dolby Prologic Processor
A/D
DECODER
NICAM
Switching Facilities
IDENT
HEADPHONE R
SCART-L
SCART-R
SCART-R
SCART-L
D/A
D/A
LOUDSPEAKER R
SCART
D/A
SCART 4
A/D
SCART 2
D/A
LOUDSPEAKER L
D/A
DSP
I2SL/R
I2S INTERFACE
I2SL/R
FM1
HEADPHONE L
FM2
SCART 3
D/A
IDENT
LOUDSPEAKER
DEMODULATOR
NICAM B
NICAM A
HEADPHONE
SCART 1
AUDIO PLL
4
D
E
F
G
2AE0 H12
H
A
B
C
D
E
B6a
1 2 3 4 5 6 7 8 9 10111213
321
2AL1 B9
5
B6a
12 13
A
B
C
B6b
2AD8 H12
2AD9 B2
2AM6 F12
2AE1 H12
F
G
H
2AB9 D1
2AC0 E1
2AD7 B2
2AN6 D8
2AK5 B6
2AK6 D2
2AK7 D2
2AK8 B6
2AK9 B6
2AL0 B12
3AA4 C10
2AL2 B11
10 118967
B14b
B1
2ALA F11
2AM0 C10
2AM1 E13
2AM2 E11
2AM3 E7
2AM4 E13
2AM5 D9
5A23 D1
2AM7 D9
2AF2 A2
2AK0 G5
2AK1 G6
2AK2 B7
2AK3 B7
2AK4 B7
B6b
B6a
2AN4 B5
2AN5 D7
B6a,c
2AN7 G5
2AN8 B6
2AN9 H5
3A70 B2
3A71 B2
3AA0 B9
3AA1 B12
3AA2 F1
B6b
3AA5 C12
2AL3 B9
2AL4 B11
2AL5 B13
2AL6 E11
2AL8 C12
2AL9 C12
7A62-B D10
3AB5 F12
3AB6 E10
3AB7 F12
3AB8 E10
3AB9 E9
3AC8 B5
B14b,d
5A24 D1
2AM8 B11
2AM9 F12
2AN0 E9
2AN1 E10
2AN2 G1
2AN3 B5
0V2
IAA6 C11
5A62 B13
5A63 B10
5A64 B5
5A65 B5
5A66 B5
B6a
3AA6 B9
3AA7 C12
3AA9 C12
3AB0 E12
3AB2 D9
3AB3 E12
5A67 H5
7A61-A B12
7A61-B B10
7A62-A E12
7A63 C3
9A60 B9
9A61 F12
9A65 B10
IAA0 B1
IAA1 E12
IAA2 B8
B6a,c
B6a,c
5A31 H12
5A32 H12
5A33 H12
5A37 B2
5A60 E13
5A61 D10
3V8
6V5 6V5
6V5
6V5
B14d
B5a
B14d
B5a
IAA3 E9
IAA4 C9
IAA5 D2
IAB2 C12
B6a
B6a
B6a,c
DOLBY PRO LOGIC PROCESSOR
IAB1 C9
B6a
B14b,d
B6b
B6a
B1
2ALA
1n
IAA7 F11
IAA8 C6
IAA9 C7
IAB0 D7
2AK1
1n
100p
2AL6
2AM9
33p
LM833D
7A62-B
5
6
7
8
4
47K
3AA0
+5DB
15K
3AA9
7A61-A
LM833D
3
2
1
8
4
100n
2AM6
IAA2
5A60
100MHZ
3AC8
100R
5
6
7
8
4
3AB7
6K8
2AM2
100n
LM833D
7A61-B
6K8
3AA6
33p
2AM0
A
1u
2AL1
2AF2
100p
+5DA
2AM7
1n
2AM3
1n
2AL5
100p
3A70
100R
2AD7
2AD9
1n
1n
2AL3
1n
1u
2AK2
IAA4
2AL8
1u
9A60
10u
2AN6
100MHZ
5A62
1u
2AK4
+5DB
5A31
100MHZ
3AB0
47K
5A61
100MHZ
2AM5
1u
+11V_AUD
8204 000 8286.3
3AB6
100K
5A33
100MHZ
2AD8
10p
IAA0
100MHZ
5A32
5A67
100MHZ
9A61
47K
3AA4
100n
2AN5
1u
2AL2
A
IAA7
5A66
100MHZ
100MHZ
5A65
2AN8
10p
3AB8
18K
10p
2AC0 2AB9
10p
5A23
100MHZ
100MHZ
5A24
10n
2AN7
IAA5
100n
2AL0
IAA6
IAA9
2AK5
IAA8
10u
2AK8
1n
2AM8
100p
2AN3
10p
10p 2AN4
5A37
100MHZ
4
LM833D
7A62-A
3
2
1
8
2AE1
10p
3A71
100R
10p
2AE0
A
3AB2
47K
3AB3
100K
IAA1
A
47K
3AA1
33p
2AL9
A13
A14
2AK9
10u
A9
A10
A11
A12
3AB9
15K
100p
2AM4
2AN1
33p
1n
2AL4
1n
2AK3
18K
3AA7
IAB1 IAB2
IAB0
100MHZ
5A64
2AN9
10p
1u
2AN0
+11V_AUD
2AK0
1u
IAA3
2AK6
100n
100MHZ
5A63
+11V_AUD
A15
A16
100R
3AA2
2AN2
1n
3AA5
3AB5
68K
SC4-IN-R
STANDBYQ
63
53
TESTEN
56
TP1
27
VREF1
19
VREF2
46
VREFTOP
54
XTAL_IN
55
XTAL_OUT
100K
NC3
13
NC4
22
NC5
24
NC6
16
RESETQ
44
SC1_IN_L
45
SC1_IN_R
29
SC1_OUT_L
28
SC1_OUT_R
26
SC2-OUT-L
25
SC2-OUT-R
41
SC2_IN_L
42
SC2_IN_R
38
SC3-IN-L
39
SC3-IN-R
35
SC4-IN-L
36
DACM_L
DACM_R
20
11
DVSS
10
DVSUP
1
I2C_CL
2
I2C_DA
3
I2S-CL
I2S-CL3
14
I2S-DA-IN1
6
I2S-DA-IN2|3
12
I2S-DA-OUT1
54
I2S-WS
I2S-WS3
15
47
MONO_IN
58
NC1
59
NC2
64
ANA-IN2+
51
ANA_IN-
50
ANA_IN1+
43
ASG0
ASG1
4037
ASG2
57
AUD-CL-OUT
48
AVSS
49
AVSUP
CAPL-A
30
CAPL-M
32
61
D-CTR-IO0
60
D-CTR-IO1
18
DACA-L
17
DACA-R
23
DACM-SUB
21
7A63
DPL4519G
ADR-CL
9
ADR-DA
7
ADR-WS
8
ADR_SEL
62
34
AGNDC
33
AHVSS
31
AHVSUP
52
10u
2AK7
+5DB
2AM1
100n
9A65
SEL_IN_1
SEL_IN_2
I2S-IN-F
I2S-MSP-CLK
I2S-MSP-OUT
I2S-BO-OUT
SEL_IN_1_F
SEL_IN_2_F
I2S-BO-IN
I2S-BO-WS
I2S-BO-CLK
I2S-MSP-WS
SYS-RESET-MAS
SYS-RESET
SYS-CLK1
I2S-DD-OUT
I2S-DD-WS
I2S-DD-CLK
SDA-F-DD
SCL-F-DD
+8VC
SCL-F-AUD
SDA-F-AUD
REF-AUD
REF-AUD
SURR-L
SURR-R
REF-AUD
SUBW
REF-AUD
AUDIO-C
I2S-DPL-OUT
+11V_AUD
MSP-CENTER
MSP-SURR
AUDIO-SW-NF
I2S-DPL-CLK
I2S-DPL-WS
SYS-RESET
SYS-CLK0
CL 36532008_039.eps
070503
B6b
B6a
B6b
B6a
B6a
B6a
B6b
A16
1 V / div DC
50ns / div
A14
2 V / div DC
2µs / div
A13
2 V / div DC
2µs / div
A12
2 V / div DC
50ns / div
2 V / div DC
1µs / div
A11
2 V / div DC
200ns / div
A10
A9
2 V / div DC
10µs / div

Related product manuals