EasyManua.ls Logo

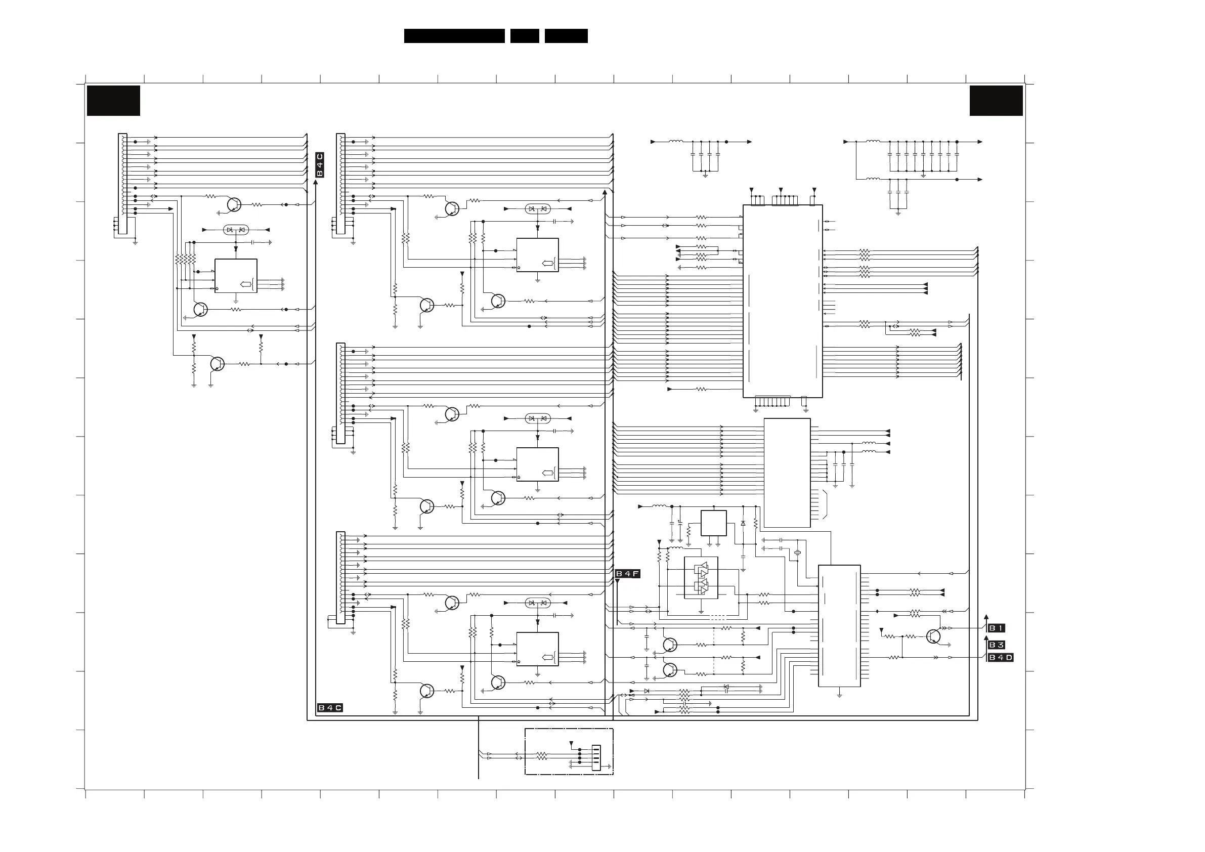
Philips 42PFL5403D/85 - SSB: MT5382-HDMI & Mux (B4 E)

Philips 42PFL5403D/85
96 pages
Print Icon
To Next Page IconTo Next Page
To Next Page IconTo Next Page
To Previous Page IconTo Previous Page
To Previous Page IconTo Previous Page
Loading...
Circuit Diagrams and PWB Layouts
49LC8.1U LA 7.
SSB: MT5382-HDMI & Mux
SCL
ADR
0
1
2SDA
WC
SCL
ADR
0
1
2SDA
WC
SUB
ER
GND
VOUT
VDD
SCL
ADR
0
1
2SDA
WC
GPIOC
GPIOD
GPIOE
OSC
DS1
4
5
6
1
2
3
4
5
6
7
0
1
2
3
4
5
6
7
VDD
0
1
2
3
CL
DA
NRST
0
1
2
3
4
5
0
GPIOA
GPIOB
1
2
3
4
5
6
VSS
I
O
7
0
0-
A
1+
LSCL
D
2+
2-
R0X
0+
DSCL
RESET
C-
0
2-
2+
1-
C+
C+
C-
2-
DGND
AVCC33
2+
1-
0+
DVC C18
AGND
R1X
1
C+
C-
0+
0-
1+
1-
2+
2-
R2X
TX
EPSEL1
LSDA
EPSEL0
CEC
TPWR
I2CSEL
INT
RSVDL
2
0
1
2
DSDA
0
RPWR
2
1
0
HPD
2
1
TSDA
EXT_SWING
AVC C18
HPDIN
1+
0-
0+
C-
C+
TSCL
I2CADDR
0-
1+
1-
SCL
ADR
0
1
2SDA
WC
HDMI
+3V3_SW
1E01 A1
1E02 A5
1E03 E5
1E04 H5
1E06 L9
1E07 H12
2E01 C3
2E02 G13
2E03 G13
2E04 C8
2E06 G14
2E07 B14
2E08 B14
2E09 B14
2E10 B15
2E11 B15
2E12 B15
2E13 B15
2E14 B15
2E15 B15
2E16 B14
2E17 B14
2E18 B14
2E19 B11
2E20 B11
2E21 B11
2E22 B11
RES
RESERVED
HDMI 2
&
123 45678 910111213 14 15 16
123 45678
NC
NC
NC
NC
9 10111213 14 1
51
6
A
B
C
D
E
F
G
H
I
J
K
L
A
B
C
FE09
1K0
D
E
F
G
H
I
J
K
L
2E23 H11
2E24 H10
2E25 H12
2E26 K11
2E27 F8
2E28 J8
2E29 H12
2E32 I12
2E33 K11
2E35 J10
2E36 J10
3503 I14
3504 L8
3505 L8
3507 I14
3508 I14
3509 E14
3510 E14
3511 J14
3512 J14
3513 J11
3514 J12
NC
TO AUDIO
HDMI 1
TO FLASH&NVM
NC
ISP PROGRAMMING
3515 J11
3516 J12
3517 J14
3518 J15
3E01 C7
3E02 C7
3E03 I10
3E04 I10
3E05 B2
3E06 C3
3E07 D2
3E08 D2
3E09 D2
3E10 D2
3E11 D2
3E12 D3
3E13 E2
3E14 E2
3E15 E3
3E16 E4
3E17 C11
3E19 B6
3E20 B7
3E21 C6
TO FLASH&NVM
NC
3E22 C6
3E23 H12
3E24 H11
3E25 J12
3E27 D6
3E28 D6
3E29 D7
3E30 D7
3E33 F6
3E34 F7
3E35 G6
3E36 G6
3E37 C7
3E38 D8
3E39 G7
3E40 G7
3E41 G6
3E42 H6
3E43 H7
3E44 G7
3E47 I6
3E48 I7
3E49 J6
3E50 J6
3E51 G7
3E52 H8
3E53 J7
3E54 J7
RES
NC
RES
TO ANALOG/IOs
RES
3E55 J6
3E56 K6
3E57 K7
3E58 K7
3E59 C11
3E60 C11
3E61 C11
3E62 J7
3E63 D11
3E64 F11
3E65 K8
3E66 C14
3E67 C14
3E68 C14
3E69 D14
3E70 D14
3E71 D14
3E72 D14
3E73 E14
TO DC-DC
3E88 K11
3E89 K11
3E90 I12
3E92 K11
3E93 I12
3E94 K11
3E95 C11
3E96 C11
3E97 K11
3E99 J12
4E01 J11
4E02 J11
4E03 J11
4E04 J11
5E01 A14
5E02 B14
5E03 A10
5E04 H10
5E05 G14
5E06 G14
5E08 H11
6E02 C3
6E05 K10
6E06 K11
6E11 C8
6E12 F8
NC
RES
RES
6E13 I8
6E14 H12
7A01-7 F12
7E01 D3
7E02 C9
7E03 C3
7E04 D3
7E05 E3
7E06 C7
7E07 D8
7E08 G9
7E09 D6
7E10 F7
7E11 H8
7E12 J9
7E13 H6
7E14 I7
7E15 K8
7E17 K6
7E18 B12
7E23 I13
7E24 H11
NC
7E25 J11
7E26 J11
7E27 J15
7E28 H11
FE01 A1
FE02 B1
FE03 B1
FE04 C1
FE05 C1
FE06 A5
FE07 B5
FE08 B5
FE09 C5
FE10 C5
FE11 E5
FE12 F5
FE13 F5
FE14 F5
FE15 F5
FE16 I5
FE17 I5
FE18 I5
FE19 I5
FE20 J5
FE26 A15
RES
MT5382 - HDMI & MUX
FE27 B15
FE28 A11
FE31 G13
FE32 D2
FE33 C7
FE34 G7
FE35 J8
FE36 L9
FE37 K11
FE38 K11
FE39 L9
FE40 L9
FE41 L9
FE42 I14
FE43 I14
FE44 B1
FE45 C2
FE47 C4
FE48 C7
FE49 F7
FE50 J8
FE51 H10
FE52 D4
FE53 E4
FE54 E8
FE55 H8
FE56 K8
RES
RES
NC
FE57 I13
FE58 J13
FE59 J13
IE06 I14
RES
NC
NC NC
NC
HDMI (SIDE)
RES
HDMI 3
TO LVDS
RES
RES
NC
FE52
2E02
FE19
100n
100R3505
9
2021
2223
2425
26
17
18
19
2
3
4
5
6
7
8
1
10
11
12
13
14
15
16
1E03
DC1R019WBER220
+1V8_SW
+5V_HDMI_3
22K
3E30
FE36
BC847BW
7E15
+5VHDMI_2
47K3E65
+5V_SW
+3V3STBY
1
2
3
6
5
84
7
M24C02-WMN6
EEPROM
Φ
(256x8)
7E01
BC847BW
7E17
2E24
+1V8HDMI_AMUX
10n
10K
FE01
3E24
3E62
10K
BC847BW
7E27
+5V_HDMI_1
FE59
100K
+1V2
FE58
3E14
BC847BW
7E10
5
6
7
8
9
2021
2223
2425
26
13
14
15
16
17
18
19
2
3
4
1
10
11
12
+5V_HDMI_1
1E02
DC1R019WBER220
+3V3_SW
7E05
BC847BW
100R3E70
3E17 10K
3E56
100K
3E73 100R
100R3E68
3E48
2K2
+3V3_SW
7E11
BC847BW
3E06
2K2
+5V_SW
FE41
FE44
3E71 100R
25
26
4
5
6
7
8
9
2021
2223
24
11
12
13
14
15
16
17
18
19
2
3
1E01
1
10
+5VHDMI_SIDE
DC1R019WBER220
IE06
3E60 10K
FE18
FE32
10K3509
100R
3E36
3E44
22K
3E41
+5V_HDMI_2
1K0
2E32
100n
2
5
4
+3V3STBY
BD45275G
7E24
Φ
1
3
BAT54C
12
3
6E11
FE20
100K
3E42
4E01
FE35
FE11
3E21
100R
3E72 100R
FE28
100R
3E59
+5V_HDMI_Mux
+5V_HDMI_SIDE
+5V_HDMI_2
BC847BW
7E14
1K0
3E55
+5V_SW
2E10 100n
10u2E07
3E35
100R
3E33
100R
2E33 100p
2
3
6
5
84
7
2E36
100n
EEPROM
Φ
(256x8)
7E02
1
100R
M24C02-WMN6
3504
3E02
47K
10K
3E99
47K
3E39
100R
3E22
+1V8HDMI_AMUX
4E02
FE57
FE39
100R3E66
+5VHDMI_3
FE37
3E37
10K
3E53
47K
36
43
4
3
1
2
30
29
28
44
42
41
40
39
38
37
16
15
14
13
12
35
34
33
32
31
11
10
9
8
7
6
5
19
18
17
21
20
27
26
25
24
23
22
Φ
7E23
WT61P7-RG440WT
100n2E01
+5VHDMI_SIDE
3E19
100R
75
78
77
7
8
4
5
1
2
10
11
65
64
68
67
59
58
13
32
52
72
42
41
45
44
48
47
39
38
62
61
15
14
22
21
25
24
28
27
19
18
50
70
33
73
12
16
36
56
76
79
35
55
63
54
53
34
74
31
51
71
30
66
80
6
17
29
37
49
57
69
23
43
SWITCH
HDMI
Φ
3
9
20
26
40
46
60
+1V8HDMI_DMUX
7E18
SII9185ACTU
1K0
3E29
FE56
2E09 100n
47K
+3V3_SW
3E52
100n
+5VHDMI_1
2E18
+3V3STBY
2E19 10u
+5V_SW
3510 10K
+3V3HDMI_AMUX
+3V3STBY
2E20 10u
+5V_HDMI_2
3E16
22K
1
3
2
7E25
BC847BW
3E05
100R
FE42
+3V3STBY
30R5E01
+3V3STBY
3E69 100R
3E09
47K
47K3E12
+5V_HDMI_1
4K73E63
2E03 10u
100n2E27
3E11
10K
3E40
47K
1K0
3E15
3E88 10K
22R3E90
3E93 22R
+5V_HDMI_3
+5V_SW
FE13
2E28 100nFE50
1K0
5
84
7
3E13
7E12
1
2
3
6
FE43
M24C02-WMN6
EEPROM
Φ
(256x8)
FE54
10u2E16
22K
3E58
47K
3E10
BC847BW
7E03
100n
+5V_HDMI_SIDE
2E13
BC847BW
7E13
FE51
2E22 100n
FE49
7E06
BC847BW
100n
12
3
2E21
6E13
BAT54C
AE7
RX2_C
AF4
RX2_CB
AE4
FE47
AE11
RX1_C
AF8
RX1_CB
AE8
RX2_0
AF5
RX2_0B
AE5
RX2_1
AF6
RX2_1B
AE6
RX2_2
AF7
RX2_2B
AE15
RX0_C
AF12
RX0_CB
AE12
RX1_0
AF9
RX1_0B
AE9
RX1_1
AF10
RX1_1B
AE10
RX1_2
AF11
RX1_2B
AD6
OPWR1_5V
AB7
OPWR2_5V
AC6
RX0_0
AF13
RX0_0B
AE13
RX0_1
AF14
RX0_1B
AE14
RX0_2
AF15
RX0_2B
AD12
AVSS33_H1
AC9
AVSS33_H2
AC10
AVSS33_H3
AC11
AVSS33_H4
AD9
AVSS33_H5
AD10
AVSS33_H6
AD11
EXT_RES
AC8
OPWR0_5V
7A01-7
MT5382
AVDD12_CVCC
AB8
AVDD33_H1
AC12
AVDD33_H2
1E07
FE03
12M0
FE26
FE27
10K3E61
6.3V
22u
5E02
2E23
+1V8HDMI_DMUX
30R
FE15
FE31
30R5E06
5E04
+3V3STBY
30R
4K73508
3E38 47K
FE08
2E14 100n
BAS316
6E05
100R
3E47
10K
2E08 10u
3E23
3E67 100R
12
3
BAT54C
6E12
FE04
FE12
2E26 10n
100R
3E07
FE34
3E27
1K0
3E28
100K
2K2
3E20
22p
2E29
FE05
100R
3E49
3512
100R
3E50
100R
+5V_HDMI_3
+5V_SW
10K
3516
3514
10K
10K
3518
FE48
100R
BC847BW
7E04
3E89
+3V3STBY
5E05 30R
3517
10K
FE14
100n2E17
3515
10K
3
+5V_HDMI_1
6E02
BAT54C
12
1
2
3
4
56
B4B-PH-SM4-TBT(LF)
1E06
3507
4K7
7E09
BC847BW
+5V_SW
3E97
FE40
10K
30R5E03
3E57
1K0
FE07
+1V8HDMI_AMUX
FE33
22R3E96
+5VHDMI_2
FE53
FE55
FE16
100R3503
1
2
3
6
5
84
7
7E08
(256x8)
Φ
EEPROM
M24C02-WMN6
+5VHDMI_3
10K
3513
2E11 100n
4E04
22p
+5V_HDMI_Mux
2E25
5
6
7
8
9
2021
2223
3E08
100R
12
13
14
15
16
17
18
19
2
3
4
1E04
1
10
11
2K2
3E34
DC1R019JBAR190
3E25
+5VHDMI_1
+3V3HDMI_AMUX
10K
FE38
3E01
47K
100n
100n
2E35
2E15
10K
3E51
3E64 470R
4E03
FE06
10K
3E04
10K
3E03
30R
5E08
NC
1
SCL02 SCL1 7
SDA03SDA1 6
VCC
8
7E28
PCA9515A
EN5
GND
4
+3V3STBY
22R3E94
1
3
2
BC847BW
7E26
FE10
BC847BW
7E07
3E54
3511 4K7
47K
3E43
22R3E95
6E14
BAS316
27K
FE02
3E92
2E06 100n
2E12 100n
+5V_HDMI_SIDE
FE17
+3V3STBY
FE45
2E04 100n
BZX384-C6V86E06
SCL
SDA
DDC_SCL_3
DDC_SDA_3
RX3_2n
RX3_1p
RX3_1n
RX3_0p
RX3_0n
RX2_0p
RX2_0n
RX3_2p
RX3_Cp
RX3_Cn
CEC
RX2_Cn
CEC
DDC_SCL_2
DDC_SDA_2
RX2_2n
RX2_1p
RX2_1n
DDC_SDA_1
DDC_SCL_1
CEC
RX1_Cn
RX1_Cp
RX1_2p
RX2_2p
RX2_Cp
STANDBYn
RX1_0n
RX1_0p
RX1_1n
RX1_1p
RX1_2n
CEC
IR
DDC_SCL_HDMI_SIDE
STANDBY
POWER_DOWN
RX1_Cp
RX1_Cn
RXMux_2p
RXMux_2n
RXMux_1p
RXMux_1n
RXMux_0p
RXMux_0n
RXMux_Cp
RXMux_Cn
RX1_2p
RX1_2n
RX1_1p
RX1_1n
RX1_0p
RX1_0n
FAST_PLOP
STBY_SDA
STBY_SCL
INT_CEC
KEYBO
ARD
DDC_SDA_HDMI_MUX
DDC_SCL_HDMI_MUX
HDMI_HPD_3
HDMI_HPD_SIDE
RXD_WT
TXD_WT
STBY_SDA
STBY_SCL
LED1
LED2
DDC_SDA_HDMI_2
DDC_SCL_HDMI_2
DDC_SCL_SIDE
DDC_SDA_SIDE
EDID_WE
DDC_SCL_HDMI_3
DDC_SDA_HDMI_3
EDID_WE
EDID_WE
DDC_SDA_HDMI_SIDE
DDC_RESET
HDMI_HPD_2
RX3_1n
RX3_2p
RX3_2n
DDC_SCL_HDMI_3
RXSide_0p
RXSide_0n
RXSide_1p
RXSide_1n
RXSide_2p
RXSide_2n
RX3_Cp
RX3_Cn
RX3_0p
RX3_0n
RX3_1p
CEC
SDA
SCL
HDMI_RESET
DDC_
SD
A_HDMI_SIDE
DDC_SDA_HDMI_3
DDC_SDA_HDMI_2
DDC_SCL_HDMI_SIDE
DDC_SCL_HDMI_2
DDC_RESET
RXSide_Cp
RXSide_Cn
RXMux_0p
RXMux_Cn
RXMux_Cp
RX2_2n
RX2_2p
RX2_1n
RX2_1p
RX2_0n
RX2_0p
RX2_Cn
RX2_Cp
RXMux_2n
RXMux_2p
RXMux_1n
RXMux_1p
RXMux_0n
RXSide_2p
RXSide_Cn
RXSide_Cp
DDC_RESET
RXSide_0n
RXSide_0p
RXSide_1n
RXSide_1p
RXSide_2n
DDC_SDA_HDMI_1
DDC_SCL_HDMI_1
EDID_WE
HDMI_HPD_1
DDC_RESET
B4E B4E
H_17740_008.eps
210108
3139 123 6359.2

Related product manuals