EasyManua.ls Logo

Philips 42PFL5403D/85 - SSB: MT5382-Analog I;Os (B4 F)

Philips 42PFL5403D/85
96 pages
Print Icon
To Next Page IconTo Next Page
To Next Page IconTo Next Page
To Previous Page IconTo Previous Page
To Previous Page IconTo Previous Page
Loading...
50LC8.1U LA 7.
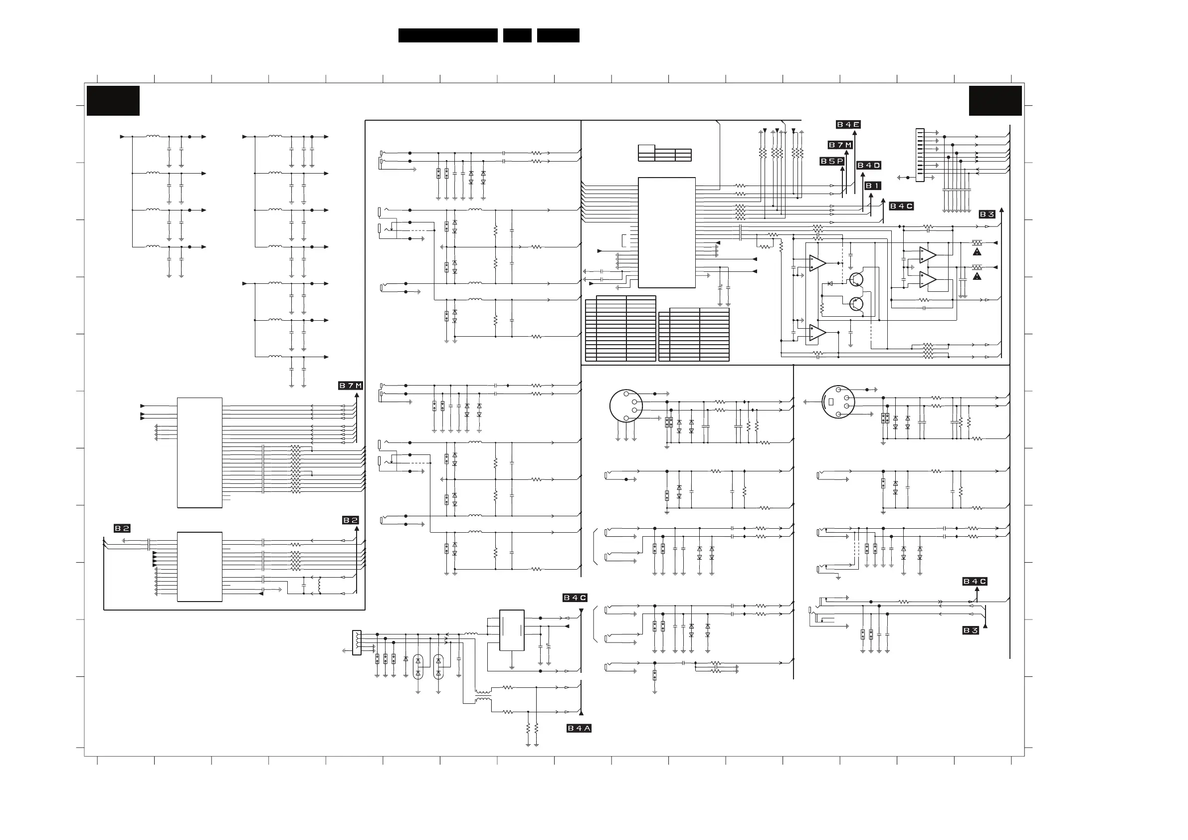
Circuit Diagrams and PWB Layouts
SSB: MT5382-Analog I/Os
1
2
IN
1
2
3
OUT
AV_I N
AUDIO_IN
YPBPR
1
2
I
J
K
1F01-1 B5
1F01-2 D6
1F01-3 A6
1F02-1 F5
1F02-2 H6
1F02-3 E6
1F03 E10
1F04-1 G10
1F04-2 H10
1F04-3 H10
1F05-1 J10
12
+1V1_VGA
3 45678 9
SIDE-AV (RESERVED)
2F87
Y
1%
10 11 12 13 14 15 16
123 45678 910111213 14 15 16
A
B
C
D
1%
6F28
SVHS-TOP
(0)
0R
Y
0R
NC
0R
3F49
0R
0
E
F
G
H
I
J
K
A
B
C
D
E
F
G
H
9
1F08-3
RED
MTJ-032-37BAA-432 NI
1F05-2 I10
1F05-3 J10
1F06 I13
Y
2F85
NC
Y
1F07 E13
1F08-1 G13
1F08-2 H13
1F08-3 I13
1F10 J5
1F12 A15
1F13 K7
2401 H15
2402 H15
2403 F12
2404 F12
2405 G12
2406 H11
2407 H11
2408 I11
2409 I11
2410 J11
2411 J11
2419 B15
2420 B15
2421 B15
2422 B16
2423 B16
2424 B16
2425 B16
2426 J11
2427 F7
2429 J11
RES
Y
3F91
4F05
Y
RES
--
2430 H11
2431 H14
2432 H14
2433 J14
2434 J14
2435 H11
2436 A4
2437 H3
2438 I3
2439 I3
2440 I4
2441 D11
2442 D12
2443 I3
2444 I3
2445 H1
2446 H1
2447 H1
2F04 D4
2F05 D4
2F07 E4
2F08 E4
Y
RES
0
3F51
AOBCK
NC
--
2F09 D15
2F10 E4
2F11 E4
2F12 C15
2F13 A2
2F14 A2
2F15 B7
2F16 B2
2F17 B2
2F18 B7
2F19 C2
2F20 C2
2F21 J8
2F22 J9
2F24 A4
2F25 A4
2F26 F7
2F27 B4
2F28 B4
2F30 C4
2F31 C4
2F33 C4
2F34 C4
RES
--
RES
2F95
0R
2F36 C2
2F37 C2
2F38 C14
2F39 E14
2F41 A7
2F42 A7
2F43 F15
2F44 D8
2F46 F11
2F47 C8
2F49 G11
2F50 C8
2F52 E7
2F53 F7
2F54 G15
2F55 I8
2F57 F15
2F58 G8
2F60 F11
2F61 G8
2F63 F3
2F64 G3
2F65 G3
2F66 G3
2F67 G3
3F92
TO DISPLAY
Y
R
2F68 G3
2F69 G3
2F70 G3
2F71 G3
2F72 G3
2F73 G3
2F74 G3
2F75 H3
2F76 H3
2F77 H3
2F78 H3
2F79 I3
2F80 C9
2F81 D9
2F82 C12
2F83 C12
2F84 C12
2F85 C12
2F86 C13
2F87 C13
2F88 D13
2F91 E13
2F92 C14
2F93 C14
--3F96
1%
--
AV3
RES
Y
R
--
1%
2F94 D16
2F95 D16
2F96 F16
2F97 G15
2F98 J7
2F99 F15
3401 I4
3402 I4
3408 B12
3409 B12
3412 H16
3413 H16
3F01 A8
3F02 A8
3F03 D7
3F04 E8
3F97
Y
Y
TO FLASH&NVM
RES
Y
TO FLASH&NVM
Y--
3F07 C7
3F08 C8
3F09 G4
3F11 C8
3F12 G8
3F14 I7
3F15 I8
3F18 G7
3F19 G4
3F20 G4
3F22 H7
3F23 G4
3F25 F4
3F26 G4
3F27 G4
3F28 G4
3F29 G4
3F30 G4
3F31 H4
3F32 H4
3F33 H4
--
Y
L
Y
Y
Y
4F04
Y
3F34 H4
3F35 E8
3F36 F8
3F37 B13
3F38 B12
3F39 B12
3F40 B12
3F41 G4
3F43 B12
3F44 B12
3F45 B12
3F46 C13
3F47 C13
3F48 C12
3F49 C13
3F50 C13
3F51 E15
3F52 E15
3F53 E13
3F54 E15
3F55 E15
CVBS
--
Y
1%
Y
--
3F56 C15
3F57 D15
3F58 F11
3F59 F11
3F60 F12
3F61 F12
3F62 G11
3F63 G12
3F64 H12
3F65 H12
3F66 I12
3F67 I12
3F68 J11
3F69 J11
3F70 F15
3F71 F15
3F72 F16
3F73 F16
3F74 G15
3F75 G4
3F76 F12
3F77 H12
3F78 F16
3F79 K7
3F80 K7
3F81 K8
3F82 K8
3F83 G16
3F84 B13
3F85 B13
3F86 H16
3F91 C16
3F92 C16
3F93 B12
3F94 B12
3
F95 I14
3F96 C12
3F97 D13
3F98 B12
4F01 H14
4F02 H14
4F03 C13
4F04 C13
4F05 D14
4F07 C6
4F08 G6
5F01 D3
5F02 D3
5F03 E3
5F04 A1
5F05 B1
5F06 A3
5F07 B3
5F08 B3
5F09 C3
Y
Y
--
AV2
RES
NC
2F84
1W BATH-RM
PC-AUDIO
7F03-1
5F10 C1
5F13 D7
5F15 B7
5F17 D7
5F19 H7
5F21 F7
5F23 H7
5F24 J7
5F25 B1
5F31 I4
6F01 B7
6F02 B7
6F03 D7
6F04 C7
6F05 C7
6F06 F7
6F07 F7
Y
0R
CVBS
TO DC/DC
Y
3F54
FROM MJC
MT5382 - ANALOG I/Os
2F86
TO PROIDIOM
RES
SIDE-AV
6F08 H7
6F09 G7
6F10 G7
6F11 F11
6F12 F11
6F13 G11
6F14 H11
6F15 H11
6F16 J11
6F17 J11
6F18 F14
6F19 F15
6F20 G14
6F21 H15
6F22 H15
6F25 J6
6F26 J6
Y
4F03
FROM CLASS-D MUTING
3F55
3F50
HEADPHONE
1%
Y
SPDIF
(1)
RES
USB
6F27 J6
6F28 D13
7A01-10 H2
7A01-11 B10
7A01-9 F2
7F01 I8
7F03-1 C13
7F03-2 E13
7F04-1 C15
7F04-2 D15
7F05 D14
F424 F14
F442 F14
F443 G14
F444 H14
F445 H15
F446 I14
RES
TO CLASS-D
RES
1%
FROM TUNER
NORM
F447 I14
F448 I14
FF02 D4
FF03 D4
FF05 A2
FF07 B2
FF09 A4
FF11 B4
FF12 C4
FF13 C2
FF14 B6
FF15 F6
FF16 F10
FF17 G10
FF18 F11
FF19 H10
FF20 H10
FF21 I10
FF22 I10
FF23 J10
FF25 A6
FF26 A6
FF27 D6
FF28 B6
FF29 D6
FF30 C6
Y
1W BATH-RM
Y
RES
( ) DEFAULT VALUE
--
7F05
FF31 E6
FF32 F6
FF33 H6
FF34 G6
FF35 H6
FF36 G6
FF37 J6
FF38 J6
NC
SVHS-SIDE
3F48
Y
--3F53
FF39 J6
FF40 I8
FF41 J8
FF42 A15
FF43 A15
FF44 A16
FF46 A16
FF47 B15
FF49 E10
FF50 G10
FF51 E14
IF24 E8
IF27 J11
IF28 I12
IF29 I12
IF30 H12
IF31 H12
IF32 G12
IF33 F12
IF34 F12
IF38 H16
0R
0R
IF39 H16
IF40 E13
IF41 D13
IF42 D13
IF43 C13
IF44 C13
IF45 C15
IF46 D14
S401 B6
S402 B7
S403 D7
S404 C7
S405 C7
S406 F6
S407 F7
S408 H7
S409 G7
S410 G7
S411 F10
S412 F11
S413 G10
S414 H10
S415 H10
S416 J10
S417 J10
S41
8 J10
S419 F14
S420 F14
S421 G14
RES
ICE
L
Y
0R
L
RES
TO HDMI
S422 H14
S423 H14
S427 J5
S428 J6
S429 J6
S430 J14
S431 J14
2F94
R
0R
RES
AOLRCK
Y
Y
HEADPHONE
HEADPHONE
0R
0R
7F03-2
Y
Y
RES
Y
3F52
Y
--
TO POWER&TUNER
AV1
1%
NC
TO PROIDIOM
RES
TO FLASH&NVM
RES
Y
Y
Y
MODE
2F91
Y
2F88
TRAP
100R
F443
+2V5
3F44
3F08
S417
2F98 10u
F442
10n2F68
PESD5V0S1BA
30R5F05
6F01
-12VAudio
10u2F52
10K3F37
3F79
1F05-1
BLACK
YKC21-5637
1
2
+3V3_REFP
+1V1_RGBFE
PESD5V0S1BA
6F07
FF03
3F28
FF35
4u72F31
+3V3_SW
33p
2411
270n
5F31
FF28
1F08-1
YELLOW
MTJ-032-37BAA-432 NI
1
2
3F38 10K
FF11
FF30
100n2F21
S403
S428
17
7
8
11
1F01-1
MTJ-505H-01 NI LF
GREEN/BLUE
1%
47R3F63
22K3413
100R
3F69
100n2F07
S405
F445
IF45
100R3F34
5F02 30R
10u2F42
3F86
10u2409
S420
FF32
3F76
F448
PESD5V0S1BA
6F14
4F01
3
21
8 4
LM358D
7F04-1
2441 6.3V
22u
100n2F94
3409 100R
+2V5_VFE
6F04
PESD5V0S1BA
22K3F67
6F17
PESD5V0S1BA
IF27
2
3
4
7
5
6
5F06 30R
MDC-066H-A LF
1F03
1
+2V5_REF
+1V2
3F95 100R
2F70 10n
100n2F36
2421
100p
IF44
100n2410
100n2F33
FF27
2F99 47p
2F38
100n
5F13
60R
5F19
FF51
60R
PESD5V0S1BA
FF05
IF24
6F03
4F03
100R3F31
BAS316
6F28
2401 10u
FF22
3F12
1F02-2
RED
MTJ-505H-01 NI LF
9
15
S416
2432
1n0
10n2F65
100R3F29
5F01
6F16
PESD5V0S1BA
30R
10R3F91
30R5F24
YKC21-6040N
WHITE
1F04-2
3
4
FF14
+1V1_RGBADC
33p2F91
1F04-3
5
6
YKC21-6040N
RED
IF43
S414
IF38
3401 100R
2438
+1V1_RGBADC
10n
5F09 30R
6F20
PESD5V0S1BA
3F15
3F71 27R
3F40 10K
6F05
PESD5V0S1BA
+3V3_DAC
2F18
1n0
2F92
100p
5F21
60R
2404 47p
2F27 100n
2F77
2435
1n0
47n
1u02447
3F82 15K
+3V3_SW
3F80
+2V5_VFE
FF46
3F58 27R
6F10
PESD5V0S1BA
FF38
5F25 30R
2F25 4u7
22K3F46
47p
2F85
470n
2F09
100p
2F87
F446
FF20
100n2F19
3F54 33R
3F84 10K
6F06
5F17
60R
PESD5V0S1BA
30R5F08
100R3F30
10n2439
2F73 10n
1%
75R3F14
4u72F11
2F58 22p
5
6
7
84
FF12
LM358D
7F04-2
PESD5V0S1BA
2F374u7
6F02
IF40
S404
FF47
FF39
IF32
60R
5F15
22K
1
2
4
3
3F48
DLW21S
1F13
10u2408
100R3F27
100n2F80
2
3
4
56
1F10
1
470n
2F83
292303-4
+3V3_SW
4
EN_
GND
1
2
3
OC_
5
6
7
8
TPS2041BD
7F01
S409
IF42
IF41
4u72F28
2F49 33p
IF33
47p2F12
PESD5V0S1BA
6F19
S429
6F13
PESD5V0S1BA
4u72F17
+3V3_DIG
4
S412
1F05-2
WHITE
YKC21-5637
3
+3V3_ADC
2F15
+3V3_REFP
1n0
47p2403
FF36
47K
3F96
2F54 33p
3F52
7
8
33R
YKC21-6040N
YELLOW
1F04-1
+3V3_ADC
1u02445
2F88
100p
3F74 27R
1n0
2430
100p
2424
S419
22K
47R3F61
3F02
4
+3V3_ADC
TL082ID
7F03-2
5
6
7
8
68R3F20
S406
22p
2F50
47n2F76
AE25
SC0
AE24
SC1
AF26
SY0
AF25
SY1
AB25
VINDC
AC24
VIN_ATV
AB24
VIP_ATV
AD25
CVBS2
AE26
CVBS3
Y22
D2SA
Y24
DVDD25_VADC
GND_CVBS
AD24
AF24
GND_SV
AC25
GND_TUNER
AB23
NC_V25
AA22
AVSS_CVBS_IF2
AB22
AVSS_CVBS_IF3
W23
AVSS_CVBS_IF4
Y23
AVSS_CVBS_IF5
AC23
AVSS_CVBS_IF6
AD23
AVSS_CVBS_IF7
CVBS0
AC26
AD26
CVBS1
7A01-10
AA24
AVDD25_REF
AA25
AVDD25_VADC
AVDD25_VFE
AA23
W22
AVSS_CVBS_IF1
MT5382
2F66 10n
IF39
FF44
PESD5V0S1BA
6F11
PESD5V0S1BA
6F09
2F57 33p
FF23
22p2F55
33p2F46
+2V5_DVAD C
+2V5_REF
S421
120K3F50
30R5F03
S431
10n2F71
+3V3_SW
47p2F97
3F53 120K
6
4
5
1F08-2
WHITE
MTJ-032-37BAA-432 NI
7
8
11
3F68
100R
GREEN/BLUE
MTJ-505H-01 NI LF
1F02-1
17
2F84
470n
3F41 68R
100n2F24
F447
2F16 100n
3402 100R
3F65 22K
FF50
2437 47n
4F07
3F01 22K
3F78
+2V5_VFE
3F49
22K
1
3
4
2
3F36 22K
1F07
YKF51-5564
5
+1V1_VGA
2F26
1n0
10K3F85
60R
5F23
22K
FF13
3F47
10K3408
PESD5V0S1BA
6F22
1%
47R3F72
2429
FF21
1n0
27R3F62
FF37
100p
2420
27R3F70
3F04
47p2405
3F56 56K
+2V5_AVADC
+3V3_DIG
S413
4F08
S430
56K3F57
13
3F51 33R
2
3
4
5
6
7
8
9
12
B11B-PH-SM4-TBT(LF)
1F12
1
10
11
2442
+3V3_DAC
100n
68R3F23
100p
1%
2419
75R3F22
3F09 68R
PESD5V0S1BA
6F18
3F66 22K
2F08 4u7
AVSS33_ADAC0_2
H22
AVSS33_ADAC1
N22
AVSS33_DIG
H26
REFN_AADC
H25
REFP_AADC
H24
VMID_AADC
AVD D33_ADAC0
H23
AVD D33_ADAC1
P23
AVD D33_DIG
J22
AVSS33_AADC1
K22
AVSS33_AADC2
L22
AVSS33_AADC3
M22
AVSS33_AADC4
G23
AVSS33_ADAC0_1
G24
B24
AOSDATA2
A25
AOSDATA3
B25
AOSDATA4
G25
AR1
F25
AR2
B22
ASPDIF
N23
AVDD33_AADC
F24
F26
AL1
E26
AL2
C22
ALIN
A23
AOBCK
B23
AOLRCK
A24
AOMCLK
D22
AOSDATA0
C23
AO
SDA
TA1
L23
AIN4_L
L24
AIN4_R
L25
AIN5_L
L26
AIN5_R
M23
AIN6_L
M24
AIN6_R
M25
AIN7_L
M26
AIN7_R
J23
AIN0_L
J24
AIN0_R
J25
AIN1_L
J26
AIN1_R
K23
AIN2_L
K24
AIN2_R
K25
AIN3_L
K26
AIN3_R
MT5382
7A01-11
G26
ADAC_VCM
2F4333p
75R3F07
FF49
1%
4F02
15K3F81
5F10 30R
6F25
BZX384-C6V8
1n0
2427
2436 100n
S427
Gnd_CVBS_OUT
6
2
4
2
1
8 4
1F01-3
WHITE/RED
MTJ-505H-01 NI LF
TL082ID
7F03-1
3
100p
2F93
4F04
2F344u7
4n72F63
7F05
1
2
3
4
5
F444
IMT1A
9
15
MTJ-505H-01 NI LF
RED
1F01-2
FF02
3F73 47R
1%
5F04 30R
2434
1n0
FF18
2440
22p
S410
2F79 100n
IF31
FF19
2F30 100n2F04 100n
+1V1_RGBFE
IF29
75R
1%
3F03
3F32 100R
75R
1%
3F18
4F05
2F95 100n
2F86 33p
100R3F43
100n2F39
IF34
3F97
4K7
3F19 68R
2F44 22p
S423
IF28
S422
FF25
IF30
2433
10R
1n0
+2V5_AVADC
3F92
10u2F41
10u2406
4u72F05
3F94 10K
47n2F78
100p
2422
6F27
NUP1301ML3
2443 47n
PESD5V0S1BA
6F15
2F60 33p
3F26
FF34
100R
10u2F53
2F20 4u7 2F14 4u7
FF29
FF33
470n
2F82
22K3F64
22p2F47
2F22
100u
16V
S408
FF42
47n2444
3F60 47R
10n2F74
IF46
+5V_SW
1n0
2431
47p2F96
2F75 47n
100n2F13
10u2402
AB17
VSYNC
AE19
Y0N
AF19
Y0P
AF22
Y1N
AD21
Y1P
AE23
PR1P
AD18
RN
AE18
RP
AF17
SOG
AD19
SOY0
AE21
SOY1
AC19
TN1
AC18
TP1
AD17
GN
AE17
GP
AC16
HSYNC
AF20
PB0P
AE22
PB1P
AE20
PBR0N
AF23
PBR1N
AD20
PR0P
AC17
AVDD12_RGBFE
AB18
AVSS12_RGB1
AB19
AVSS12_RGB2
AB20
AVSS12_RGB3
AC20
AVSS12_RGB4
AE16
BN
AF16
BP
AD22
DVDD12_VG A
MT5382
7A01-9
AC21
AVDD12_RGBADC
10K3F39
3F83 47R
1%
27R3F59
6F08
PESD5V0S1BA
S411
F424
2407 10u
4u72F81
2446 1u0
2F10 100n
PESD5V0S1BA
6F21
FF09
+12VAudio
33R3F55
S418
3F33 100R
FF41
30R5F07
FF40
FF07
S415
10n2F67
S402
2425
100p
2F72 10n
3F25
2F64 10n
+2V5_DVADC
S407
FF15
10K3F93
3F35
6F12
PESD5V0S1BA
22K
2F69 4n7
FF16
3412 22K
75R
3F11
1%
68R3F75
YKC21-5637
5
6
1F05-3
RED
22p2F61
FF26
100p
2423
2426
1n0
3F77
S401
FF17
NUP1301ML3
6F26
2
4
10K3F98
MTJ-505H-01 NI LF
WHITE/RED
1F02-3
6
3F45 100R
1F06
1
2
3
4
5
7
8
MSJ-035-10A B AG PPO
FF43
HP_LOUT
HP_ROUT
FF31
GND_CVBS
GND_SV
GND_CVBS
PreAmpL
HP_L
AV2_PbPr_in_Gnd
AV2_Y_in_Gnd
AV1_PbPr_in_Gnd
AV1_Y_in_Gnd
SAV_SC_in
AV3_SC_in
SAV_SY_in
AV3_SY_in
AV3_CVBS_in
SAV_CVBS_in
AV1_Pb_in
AV1_Pr_in
AV1_Y_in
AV2_Pb_in
AV2_Pr_in
AV2_Y_in
GND_SV
AV1_Y_in_Gnd
AV1_Y_in
AV1_Pb_in
AV1_Pr_in
AV2_Y_in_Gnd
AV2_Y_in
AV2_Pb_in
AV1_Lin
AV2_Lin
AV2_Rin
AV2_PbPr_in_Gnd
AV1_PbPr_in_Gnd
HP_ROUT
SAV_SC_in
SAV_L_in
SAV_R_in
HP_LOUT
SAV_SY_in
SAV_CVBS_in
A
V1_L_in
AV1_R_inAV1_Rin
5V
GND_SV
INTERRUPT
INT_CEC
GND_CVBS
PreAmpR
DM
DP
CVBS_OUT
VGA_HSYNC
VGA_R
VGA_G
HP_DETECT
HP_DETECT
VGA_B
VGA_VSYNC
VGA_Bn
VGA_Gn
VGA_Rn
+12Vdisp_DETECT
VGA_SOG
SAV_R_in
SAV_L_in
AV2_Pr_in
USB_OC
USB_PWE
USB_DP
USB_DM
AV3_SY_in
AV3_SC_in
SAV_SY_in
SAV_CVBS_in
ASPDIF
ASPDIF
ANA-DIG_DIM_SELECT
LCD_PWR_ON
FLASH_WE
AV3_R_in
AV3_L_in
SAV_L_in
SAV_R_in
AV2_L_in
AV2_R_in
AV2_R_in
AV2_L_i n
AV1_L_i n
AV1_R_in
PC_L_in
PC_R_in
HP_R
AV3_CVBS_in
AV3_L_in
AV3_R_in
PC_R_in
PC_L_in
SAV_SC_in
VIP_ATV
VIN_ATV
B4F B4F
H_17740_009.eps
210108
3139 123 6359.2

Related product manuals