EasyManua.ls Logo

Philips CDR779 - 4 Mechanical Instructions; Wiring Diagram CDR

Philips CDR779
78 pages
Print Icon
To Next Page IconTo Next Page
To Next Page IconTo Next Page
To Previous Page IconTo Previous Page
To Previous Page IconTo Previous Page
Loading...
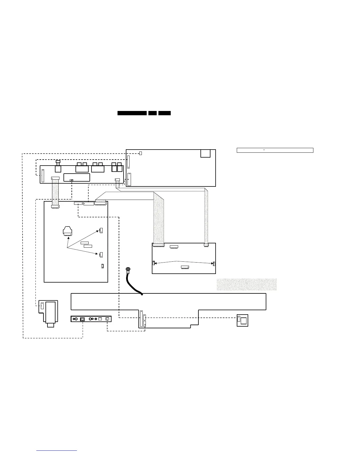
Mechanical instructions
GB 19CDR779 4.
4. Mechanical instructions
Wiring diagram
8002
3104 157
1105
8002
1 VDC2
2VFTD
3 VDC1
4 GROUND
5+5V
6+5V
7GROUND
8GROUND
9GROUND
10 +12V
11 -8V
CWAS 11EH/11EH 240 24S
8003
1 VDC2
2 VFTD
3 VDC1
4 SYS_RESET
5IIC_DATA
6GROUND
7IIC_CLK
8 DISPL_INT
9 GROUND
10 D5V
CWAS 10PH/10EH 440 26S
8004
1 LEFT_HP_OUT
2 GROUND
3 RIGHT_HP_OUT
CWAS 03PH/03PH 440 26S
8001
1 GROUND
2 +12V
3 GROUND
4+5V
5 GROUND
6-8V
7 Doesn't exist
CWAS 06EH/06EH 300 24S
Pin 1 indicated by All Wires are 1/1.
8004
3104 157 11002
8010
3104 157
1148
8003
3104 157 1149
8005
1 GROUND
2 DSA_DATA_CD
3 GROUND
4 DSA_ACK_CD
5 DSA_STR_CD
6 GROUND
7D5V
8 12V_CD
9 GROUND
10 IIS_WS_CD
11 IIS_BCLK_CD
12 GROUND
13 IIS_DATA_CD
14 GROUND
15 DOBM_CD
16 RESET_CD
17 LEFT_IN_CD
18 GROUND
19 RIGHT_IN_CD
20 KILL
21 SYS_CLK_8W
22 GROUND
CWAS FLEX 1mm 22 320 32S
8006
1ON!
2 OFF!
CWAS 02EH/02EH 560 26S
8006
3104 157 1099
8007
1LEFT_CD
2GND
3RIGHT_CD
4GND
5 DOBM_CD
6 GROUND
7 KILL
CWAS FLEX 1.25mm 7 300 32S
8009
3104 157
03881
Flex
Delivered with loader assy.
Cable
Connected to loader assy.
Flex
Delivered with loader assy.
Cable
Connected to loader assy.
8007
3104 157 1132
8005
3104 157 1123
8008
3104 157
11281
8008
1+5V
2 IR_IN
3 GROUND
CWAS 03EH/03EH 240 24S
8009
1LED_ON
2GROUND
CWAS 02PH/02PH 120 26S
Flex
Delivered with loader assy.
8001
3104 157 1168
8010
1 GROUND
2OPT_IN
3 DIG_OUT
4 GROUND
5DIG_IN_2
6DIG_IN_1
7 GROUND
8NC.
9 KILL_MAIN
10 DEEMP
11 MUTE
12 MICPRES_INTCOPY
13 LEVEL_A2
14 LEVEL_A1
15 LEVEL_A0
16 GROUND
17 PST3
18 +5Vd
19 IIS_DATA_ADC
20 IIS_BCLK_MIC
21 GROUND
22
IIS_WS_MIC
23 IIS_DATA_DAC
24 GROUND
25 IIS_BCLK_DAC
26 IIS_WS_DAC
27 GROUND
28 MIC_HPSEL
29 CL11_MIC
30 GROUND
CWAS FLEX 0.5mm 30 130
Texture indicates text on flex
3122 427 21573
3104 128 0661
3104 128 06621
3104 128 0648
3104 128 0598
3104 128 0590
3104 128 0590
3104 128 0590
3104 128 0590
1400
1
7
1401
130
1104
1
3
1101
17
207
205
1
7
1
11
206
1820
1
30
1705
1500
1708
10
1
111
1
22
1000
1220
1330
1200
1400
1
3
1302
1300
1119
1122
1121
1
10
1
3
1
2
1200
1
3
1006
1
11
1002
1001
1
4
1
4
1209
1
7
1208
1
22
1000
130
1
1
1
10
11
4
POWER SUPPLY UNIT
HP
I/O BOARD
MAINBOARD CDR
MAINBOARD CD
HEADPHONE BOARD
DISPLAY BOARD
ON/OFF & STBY LED
IR BOARD
WIRING DIAGRAM CDR779
CL 06532151_001.eps
231100

Related product manuals