EasyManua.ls Logo

Philips CDR779 - CD-Mainboard: Audio (Diagram 1 C)

Philips CDR779
78 pages
Print Icon
To Next Page IconTo Next Page
To Next Page IconTo Next Page
To Previous Page IconTo Previous Page
To Previous Page IconTo Previous Page
Loading...
GB 40CDR779 5.
Block diagrams, Circuit diagrams and PWBs
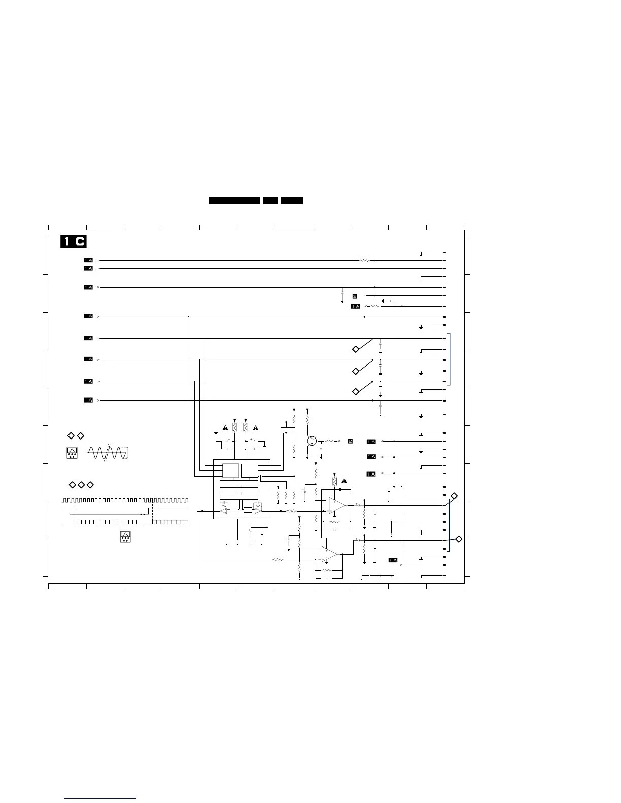
CD main board: Audio part
DIGITAL
INTERFACE
CONTROL
INTERFACE
DAC DAC
VOLUME/MUTE/DE-EMPHASIS
INTERPOLATION
NOISE SHAPER
SYS
CLK
1234567
2203 H6
B
C
D
E
F
G
H
CL16
LASEROFF
CRIN
CL11
SCLK
GND
GND
V4
CFLG
GND
DOBM
WCLK
GND
DATA
GND
1208-22 D11
1208-3 G11
1208-4 H11
1208-5 H11
1208-6 I11
1208-8 B11
1208-9 C11
1209-1 H11
1209-2 H11
3260 I8
1209-3 H11
1209-4 I11
1209-5 I11
1209-6 I11
1209-7 G11
1210-10 A11
1210-11 F11
8 9 10 11
1234567891011
A
2180 F5
2181 F6
2187 F5
2188 F6
2190 F8
2197 H9
2199 H9
2202 H8
F323 F10
2204 H6
2208 H9
2211 I9
2214 I8
2216 G8
2217 G9
2218 B8
I
A
B
C
D
E
F
G
H
I
1208-10 C11
1208-11 C11
1208-12 D11
1208-13 D11
1208-14 A11
1208-2 B11
3241 H7
3242 H9
3243 H8
3245 H8
3248 I7
3254 I7
3256 I9
3258 I7
3263 G8
3271 G8
3361 H7
7120-A G8
7120-B I8
7309 F5
7310 F7
F142 A9
1210-12 F11
1210-13 F11
1210-14 F11
1210-15 F11
1210-16 G11
1210-3 A11
1210-4 A11
1210-5 E11
1210-6 E11
1210-7 C11
1210-8 B11
1210-9 D11
2153 C9
2158 D9
2165 D9
2176 E9
F195 H7
F196 H7
F197 G8
F198 I8
F199 H8
F307 B10
F317 E7
F320 F10
F179 F7
F185 F6
F186 F5
F187 G8
F188 G9
F189 H6
F193 H9
F194 H5
2219 B10
2234 G7
2235 I7
2252 I9
3153 A9
3175 B9
3215 F5
3216 F6
3217 E7
3218 E7
3226 F8
3227 F7
3233 G8
3235 G7
3236 G7
3237 G7
F325 G10
F329 G10
F350 G7
F351 G7
F352 G7
F353 H10
F354 I9
F355 I10
F148 B9
F150 B9
F152 C9
F158 C9
F161 D9
F169 D9
F176 E9
F158
1210-12
12
1u
2203
AGND
47p
2199
100R
3153
+3V3
AGND
47p
2158
2211
47p
AGND
2153
47p
F198
100n
2216
F323
2217
47p
F320
AGND
10
1208-9
9
1208-2
2
1208-10
2181
22u
3216
4R7
2188
100n
F353
F317
22K
3258
22K
3254
1208-8
8
F307
1208-14
14
2252
1n
AGND
AGND
AGND
AGND
AGND
AGND
47p
2218
7120-A
3
2
1
8
4
A3V3
TDA1308T
2202
100p
47K
3245
AGND
CDR99
PB CD MAIN 4236
3104 123 4236
3
F199
1210-15
15
1210-16
16
1208-3
1210-14
14
1210-13
13
7120-B
TDA1308T
5
6
7
8
4
AGND
2219
47p
3241
22K
F189
AGND
1208-6
6
100n
2204
F350
3218
1K
1210-5
5
1208-4
4
1208-5
5
100n
2190
10K
3226
13
VDDA
4
VDDD
14
VOL
16
VOR
VREF-DAC
1215
VSSA
5
VSSD
2
WS
AGND
UDA1320ATS/N2
7309
APPL0
11
APPL1
10
9
APPL2
APPL3
8
APPSEL
71
BCK
DATAI
3
6
F186
A3V3
1209-7
7
F185
2165
47p
AGND
8
1210-7
7
1208-13
13
1210-8
F325
F194
+3V3
3
F195
1210-10
10
1210-3
1210-4
4
3263
2R2
F150
A3V3
A12V
6
3260
47K
3
1209-4
4
1209-6
F354
1209-3
F355
22
F196
F329
11
1208-12
12
1208-22
F152
1208-11
1209-1
1
+3V3
22u
2180
4R7
3215
22K
3233
100n
2187
7310
BC847B
F351
F352
F188
F193
AGND
AGND
47u
2235
47u
2197
2208
47u
10K
32423256
10K
100R
3175
F179
1210-9
9
1210-6
6
3361
100R
F187
F197
3271
100R
2234
47u
2
10K
3227
1209-2
3237
0R
3217
10K
0R
3236
3235
0R
2214
100p
47p
2176
3248
22K
F176
F161
F148
F169
22K
3243
1210-11
11
F142
1209-5
5
CL16
DATA
DATA
WCLK
SCLK
CL11
LASEROFF
DOBM5_CD
CFLG
CRIN
V4
MUTE
DATA_IN
SCLK_IN
WCLK_IN
DOBM5_CD
CD MAIN BOARD - CIRCUIT DIAGRAM 1C
AUDIO PART
CONN. 1208 : TO CDR MAIN BOARD
CONN. 1209 : TO CD OUT BOARD
MSBMSB LSB
0.5uS/DIV
32
WCLK
SCL
DATA
RIGHT CHANNEL
44,1KHz
2,1168MHz
LEFT CHANNEL
20
21
22
20 21 22
ANALOG
OUT
23
24
I
2
S
BUS
0V
TRACK 10 1KHz 0dB
GENERAL PURPOSE TEST
2ms/DIV
5Vpp
23
24
CL 96532086_017.eps
080999

Related product manuals