EasyManua.ls Logo

Philips HTS3440/37 - 1 Technical Specifications and Connection Facilities

Philips HTS3440/37
51 pages
Print Icon
To Next Page IconTo Next Page
To Next Page IconTo Next Page
To Previous Page IconTo Previous Page
To Previous Page IconTo Previous Page
Loading...
EN 2
3139 785 31880
1.
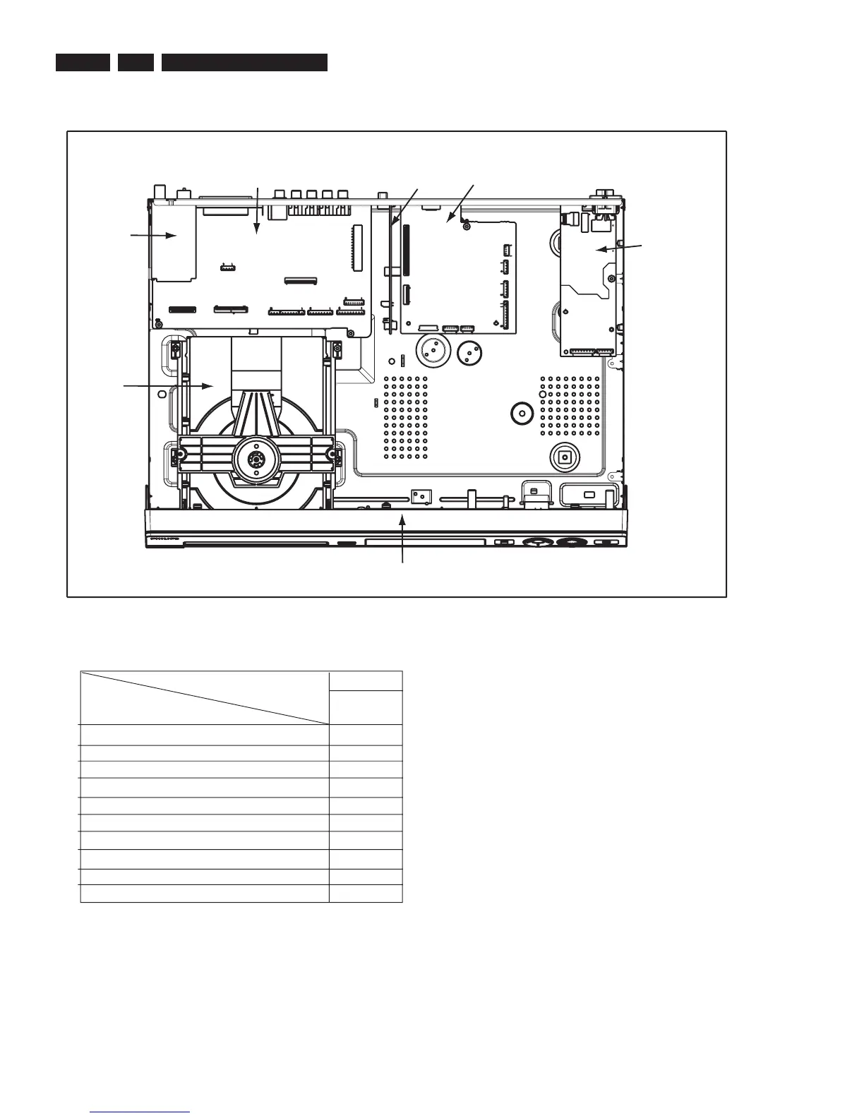
Technical Specifications and Connection Facilities
LOCATION OF PC BOARDS
Progressive Scan
TV-In
Aux-I
n
Y/Pb/Pr (YUV) Component Video Output
S-Video Outpu
t
SCAR
T
VGA
VERSION VARIATIONS
:
Features &
Type /Versions:
/3
7
HTS3440
Digital-In (Coax)
x
x
x
x
x
Coax
CVB
S
x
x
x
PSU
PCBAS 9.1
AV Interface Board
AV Board
Tu
ner
Loader
PCBAS Front Panel
HTS3440

Related product manuals